楼房太贵买不起,但农村有地的绝不担心,在乡下建一栋小别墅不比城里买房香?农村建房虽然比较好,但必须按规矩办事不然就会追悔莫及。今天推荐的别墅是一款="://www.lemeizhai.com/Picture.asp?PicClassID=91" target="_self">三层别墅设计,现代风格从上到下洋溢着青春现代的气息,别墅通风采光极好,房间多。

别墅层数: 三层
别墅风格: 现代
占地面积:84㎡
开 间:9.1m
进 深:9.3m
建筑占地:9.1m×9.3m
建筑面积:223㎡
主体造价:35.0~40.0万
建筑结构:砖混结构



主体设计:

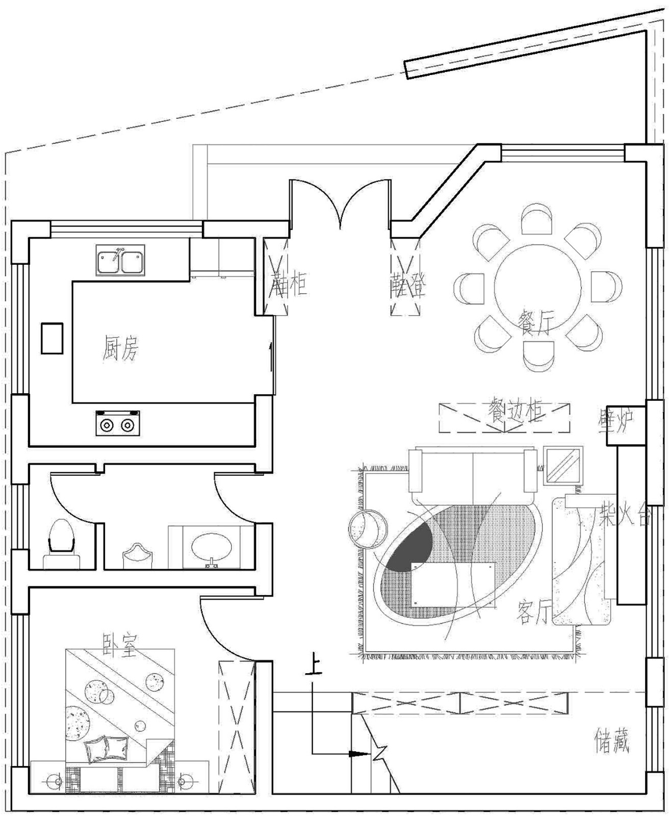
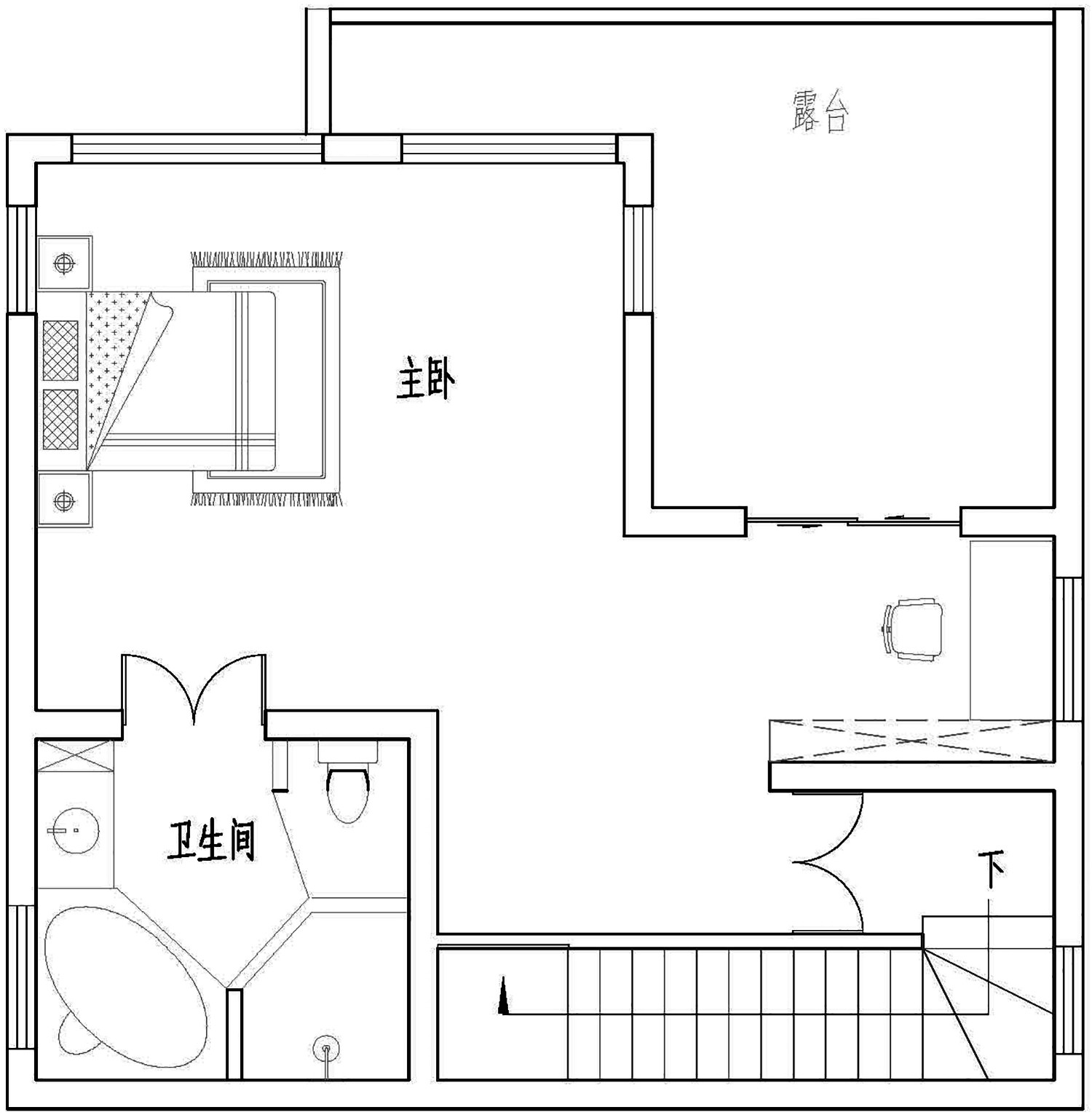
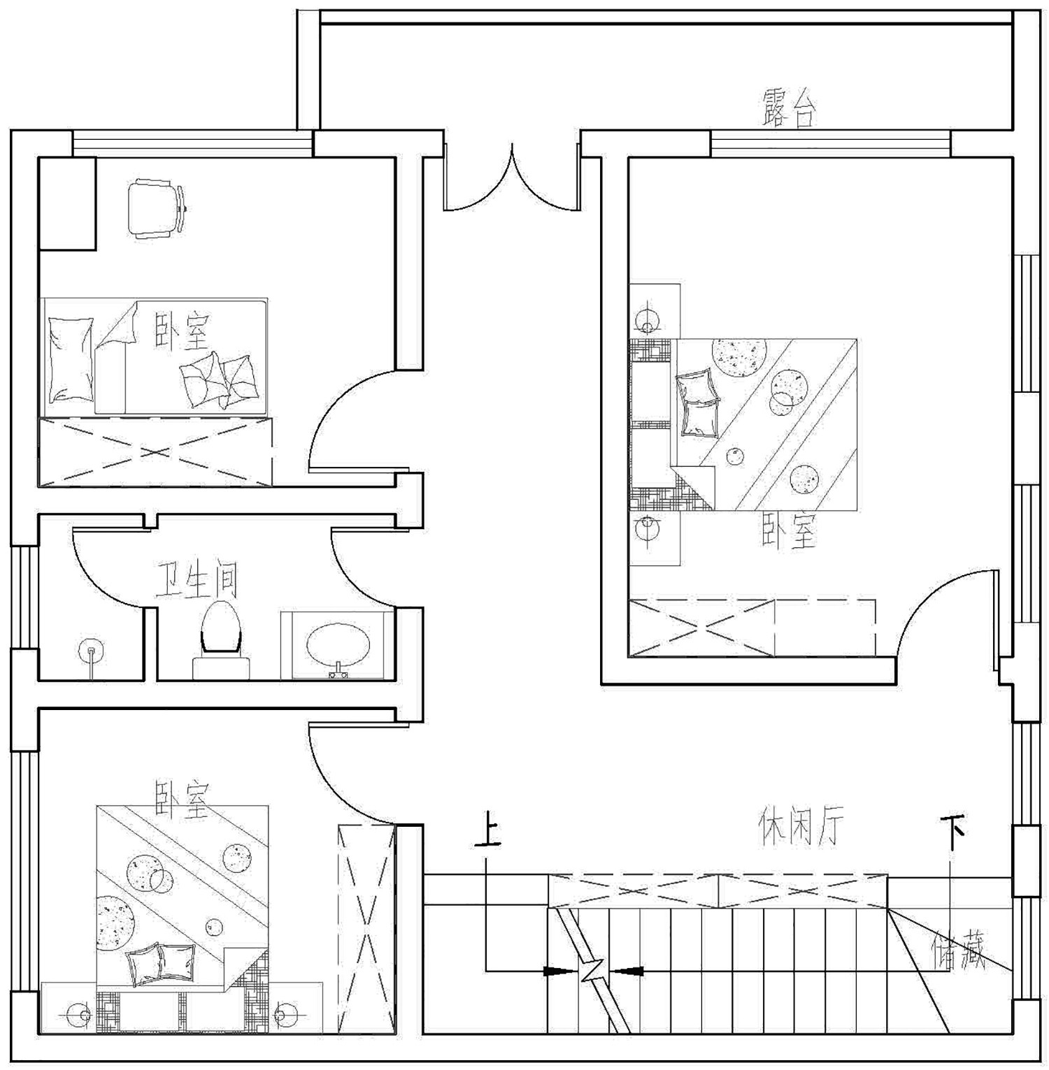
客厅、餐厅、厨房、卧室、公卫、阳台、露台。


。
转载请注明出自轩鼎自建房:://www.lemeizhai.com/