生活环境对人的影响非常大,好的生活环境能让人变得积极心情舒畅,老旧的传统房屋不适合现在的需求了,房间少功能少不保温,新式的房子隔音抗震通风好,住在里面肯定舒服。今天推荐的是吴总私人订制的农村="://www.lemeizhai.com/Picture.asp?PicClassID=91" target="_self">三层别墅设计,简约的三层欧式。
效果图:


别墅层数: 三层
别墅风格: 欧式
占地面积:216㎡
开 间:18m
进 深:12m
建筑占地:18m×12m
建筑面积:490㎡
主体造价:69.0~74.0万
建筑结构:砖混结构
效果图:


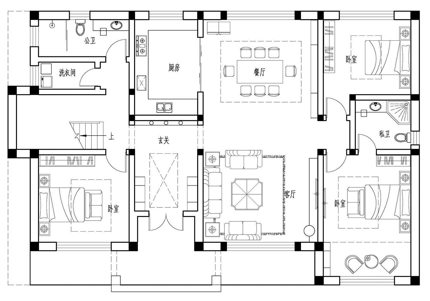
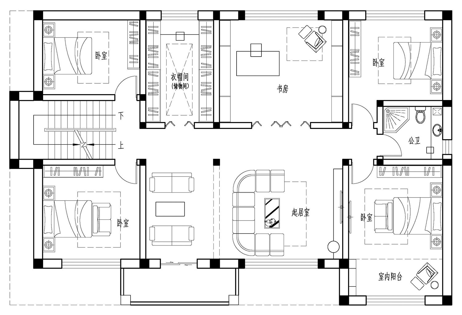
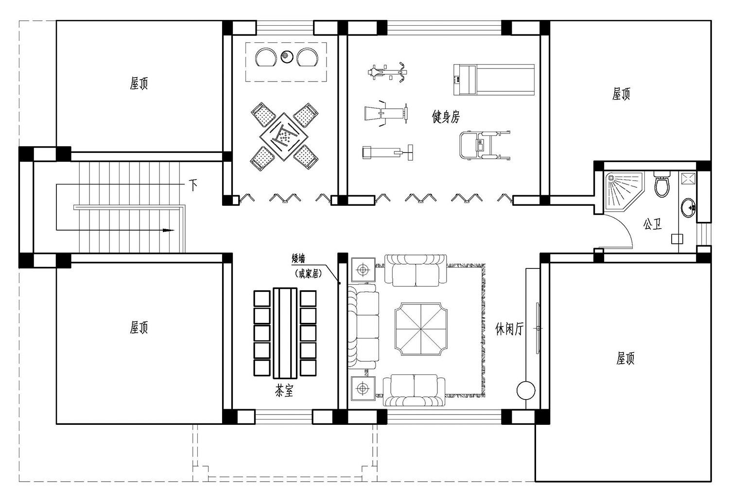
主体设计:进门是玄关,客厅向阳居中,厨房餐厅也在一个地方,卧室在两边,房间多还有健身房。

客厅、餐厅、厨房、卧室、公卫、阳台、露台。

。

转载请注明出自轩鼎自建房:://www.lemeizhai.com/