衣食住行,住虽然不是第一但对我们来说是很重要的,有了稳定的住所内心也会比较安稳,而且现在结婚都要房车钱,儿女结婚都需要房子,没有房子谁跟你结婚啊。今天给大家推荐的是浙江司马先生私人订制的现代="://www.lemeizhai.com/Picture.asp?PicClassID=91" target="_self">三层别墅设计
效果图:

模块化设计充满了年轻气息,底层的外墙是文化石上面两层白色真石漆,现代感非常棒这是一款年轻人喜爱的三层现代别墅。

别墅层数: 三层
别墅风格: 现代
占地面积:159㎡
开 间:13.1m
进 深:12.2m
建筑占地:13.1m×12.2m
建筑面积:395㎡
主体造价:60.0~65.0万
建筑结构:框架结构
效果图:
主体设计:

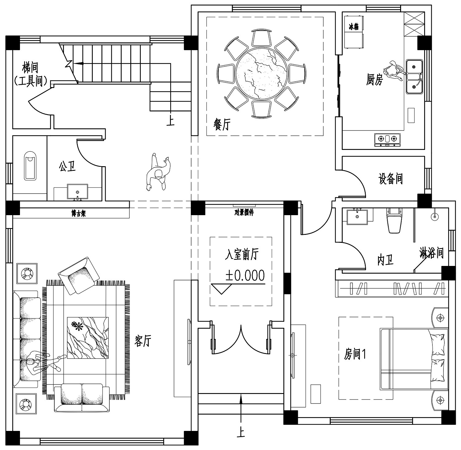
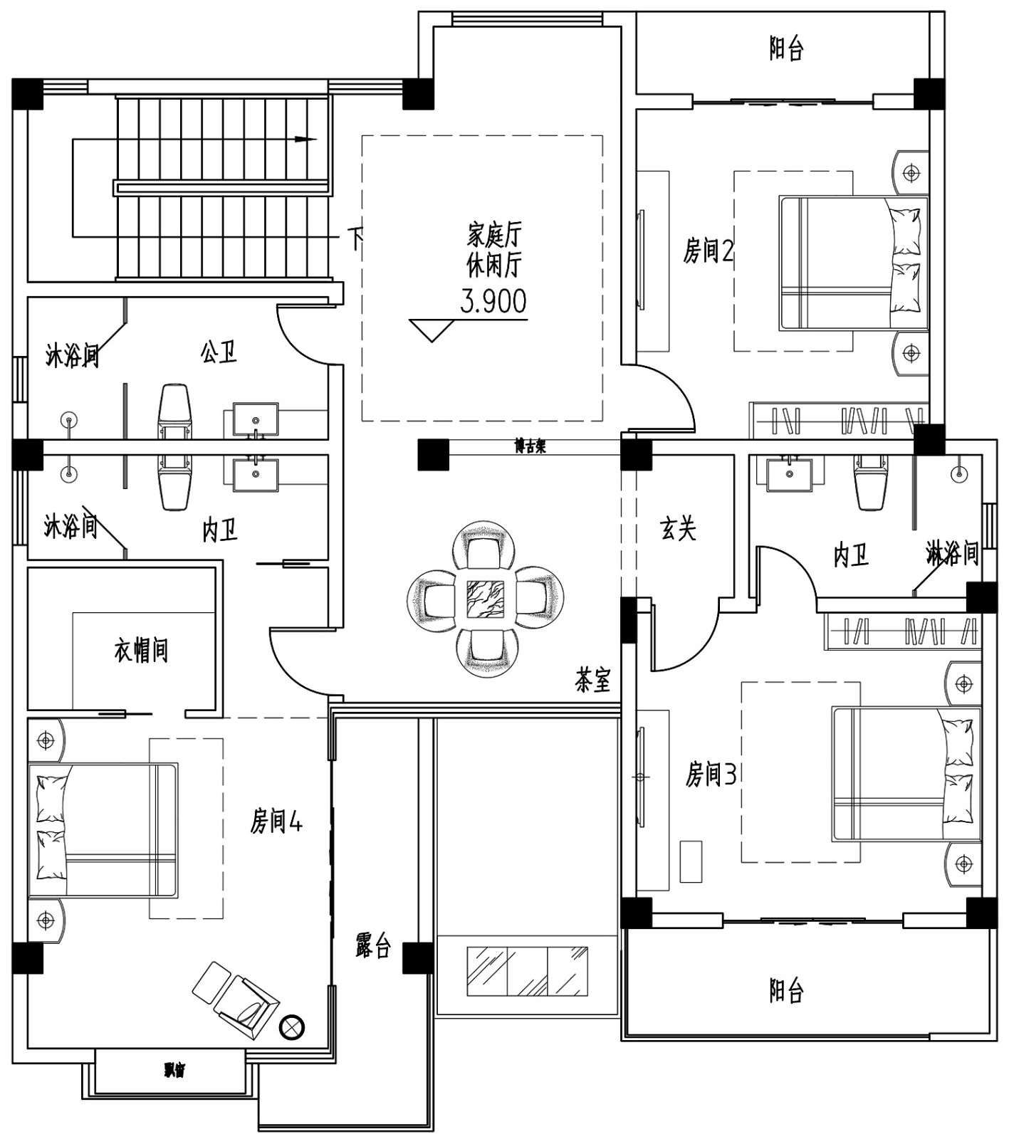
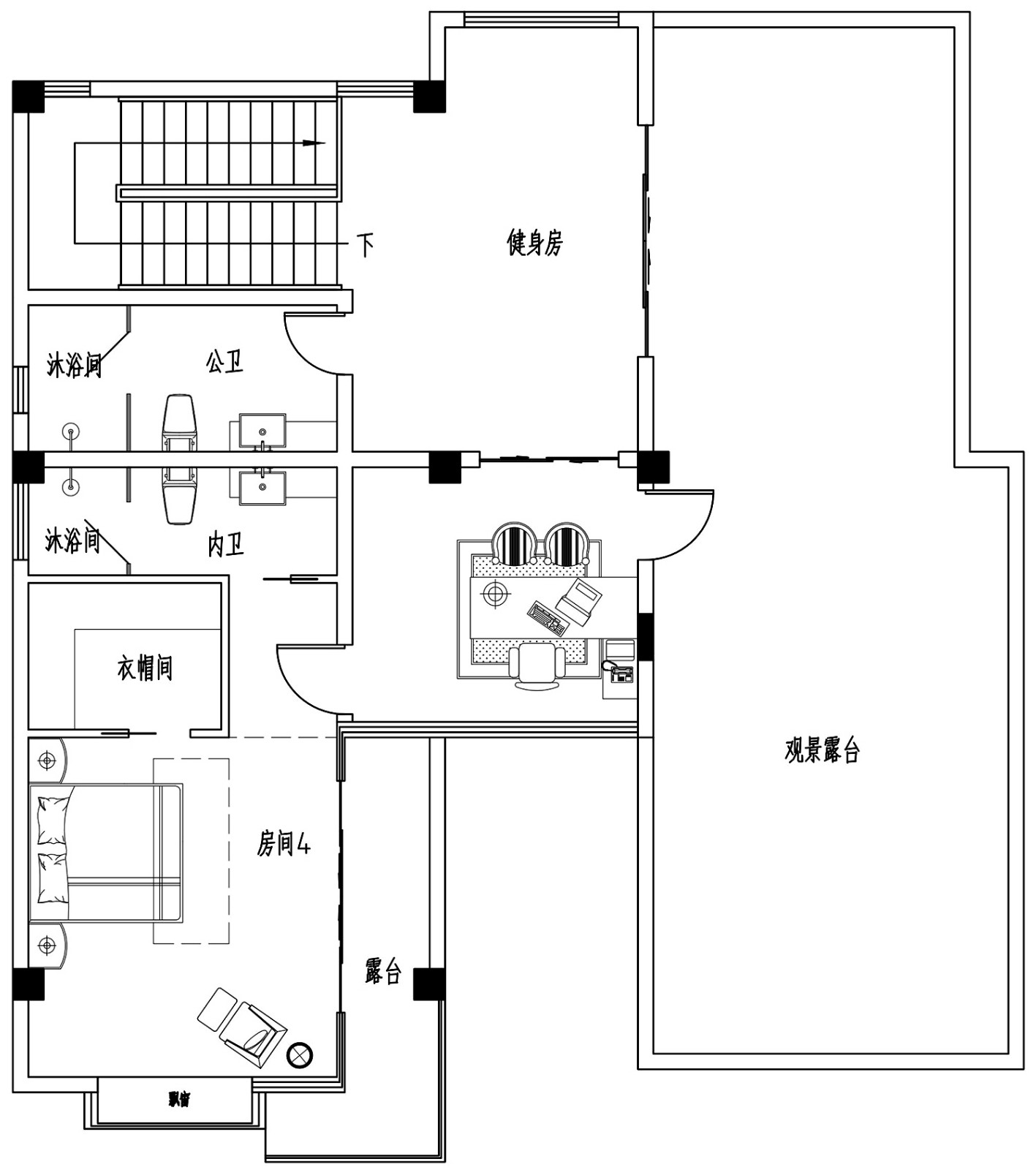
客厅、餐厅、厨房、卧室、公卫、阳台、露台。

。

转载请注明出自轩鼎自建房:://www.lemeizhai.com/