南方比较发达的地区建小别墅的比较多,要是到了那里的农村可能你都不会相信那是农村,小别墅几乎每家都是(部分地区),三层的房子建的比较多。今天给大家推荐安徽芜湖孙总私人订制的="://www.lemeizhai.com/search.asp?SearchType=Software&imageField.x=32&imageField.y=29&SearchKey=%D0%C2%D6%D0%CA%BD" target="_self">农村新中式别墅设计,这套房子肯定是你的菜。
效果图:

这套别墅正面看非常和谐,中国人最讲究和谐之道,天地和谐!

别墅层数: 三层
别墅风格: 新中式
占地面积:336㎡
开 间:24.9m
进 深:13.5m
建筑占地:24.9m×13.5m
建筑面积:862㎡
主体造价:155.0~160.0万
建筑结构:砖混结构
效果图:


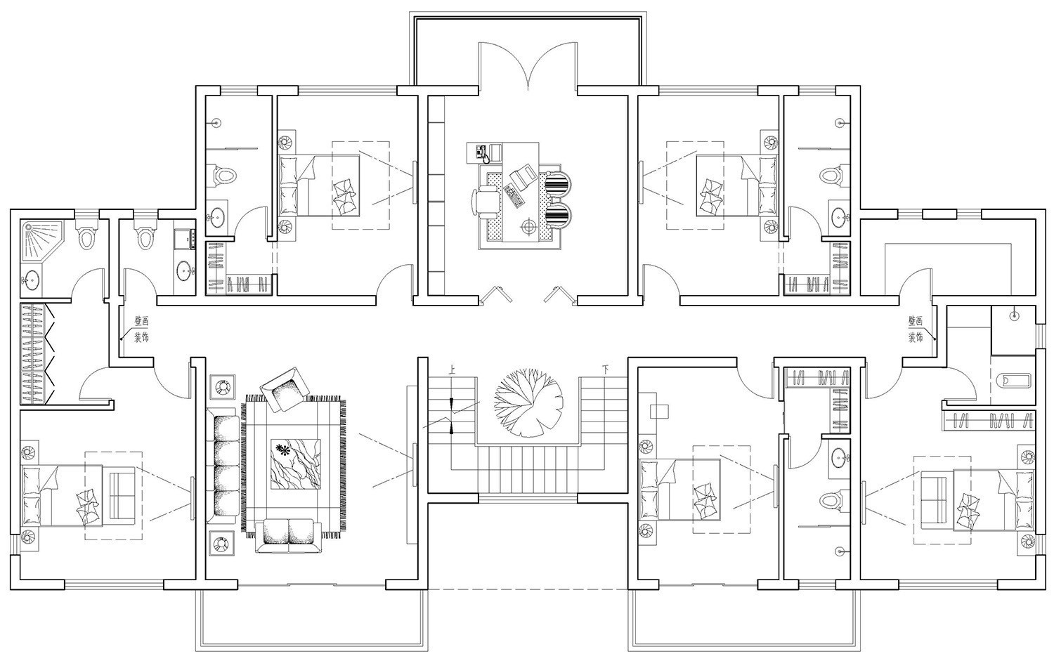
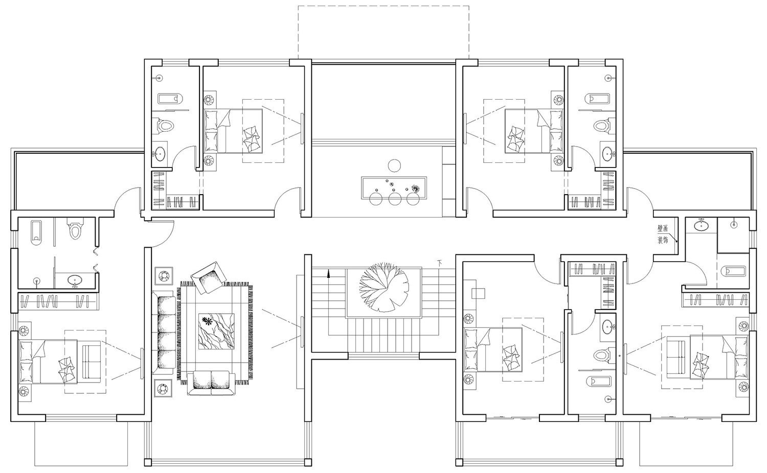
主体设计:。

客厅、餐厅、厨房、卧室、公卫、阳台、露台。

。

转载请注明出自轩鼎自建房:://www.lemeizhai.com/