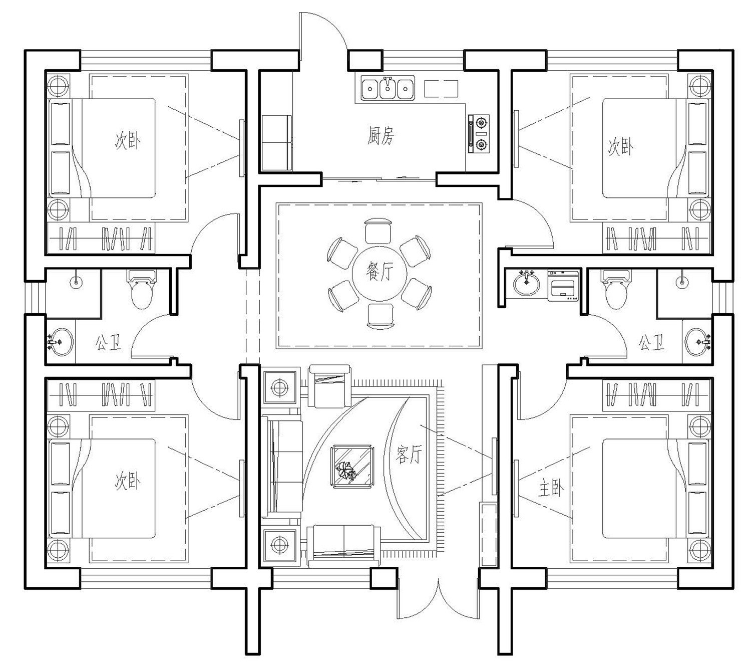
小宅基的福音12.4m×9.8m的新中式="://www.lemeizhai.com/Picture.asp?PicClassID=85" target="_self">一层农村自建房,这是一套不大不小的农村自建房,预留了一小点空间作为庭院虽然不大但也能种花种菜,还有车库,大门宽大适合进车,别墅比较平衡中间是客厅餐厅厨房,两侧是卧室和厕所。这套别墅主体价最高造价不超过30万。
效果图:

别墅层数: 一层
别墅风格: 新中式
占地面积:121㎡
开 间:12.4m
进 深:9.8m
建筑占地:12.4m×9.8m
建筑面积:140㎡
主体造价:21.0~26.0万
建筑结构:砖混结构
效果图:

主体设计:

客厅、餐厅、厨房、卧室、公卫、阳台、露台。

。
转载请注明出自轩鼎自建房:://www.lemeizhai.com/