以前的人绝对想象不到现在的生活,现代的人也想象不到未来的生活,智能手机和电视是以前的人想破天都想不出来,说的最多的是楼上楼下电灯电话,以前的人绝对想不到农村也能住上自建别墅。今天给大家推荐的是一款="://www.lemeizhai.com/Picture.asp?PicClassID=91" target="_self">三层别墅设计,大气漂亮有前后门,内部非常宽敞主体造价56。
效果图:


别墅风格: 中式
占地面积:192㎡
开 间:15.4m
进 深:12.5m
建筑占地:15.4m×12.5m
建筑面积:330㎡
主体造价:51.0~56.0万
建筑结构:框架结构
效果图:



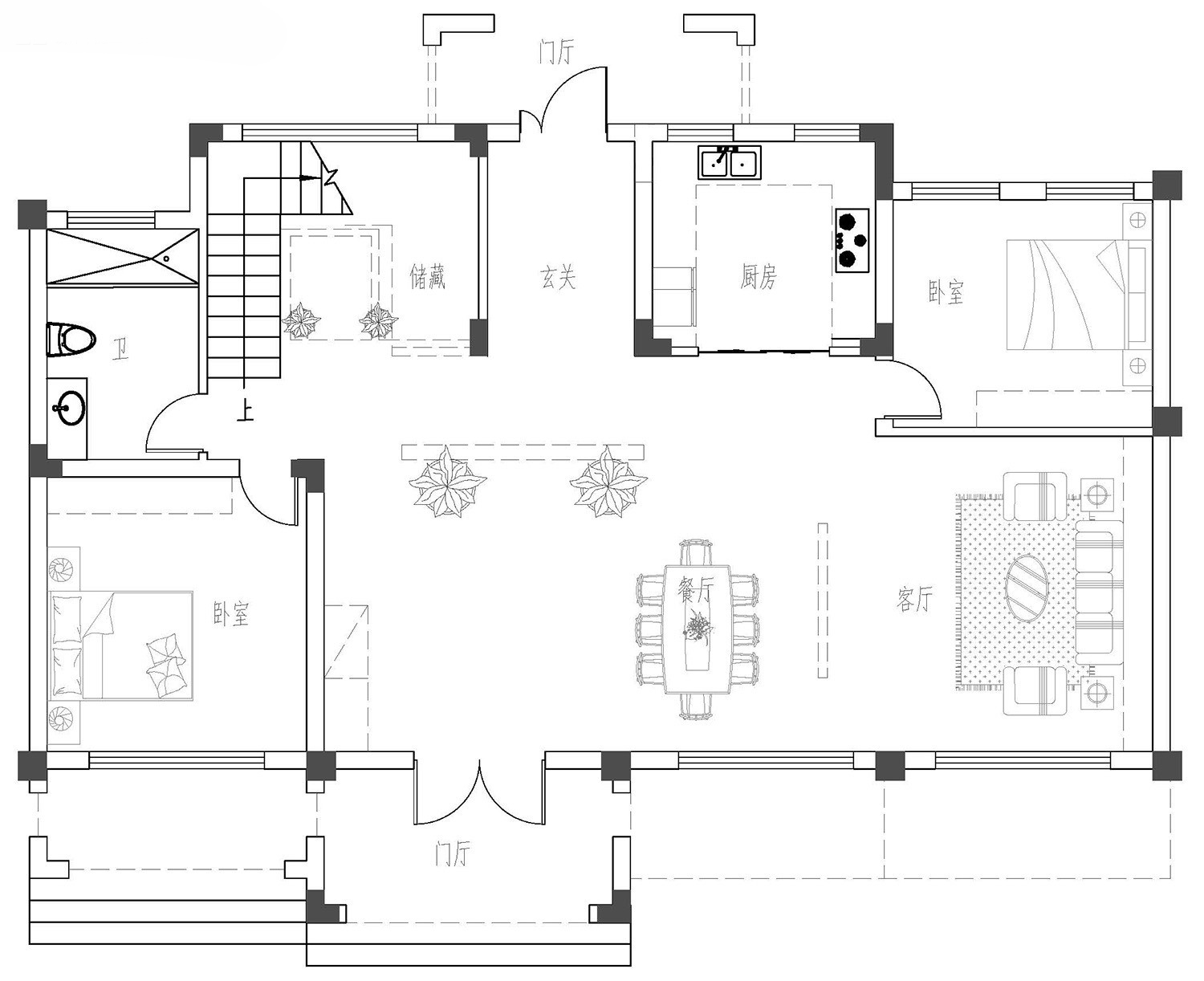
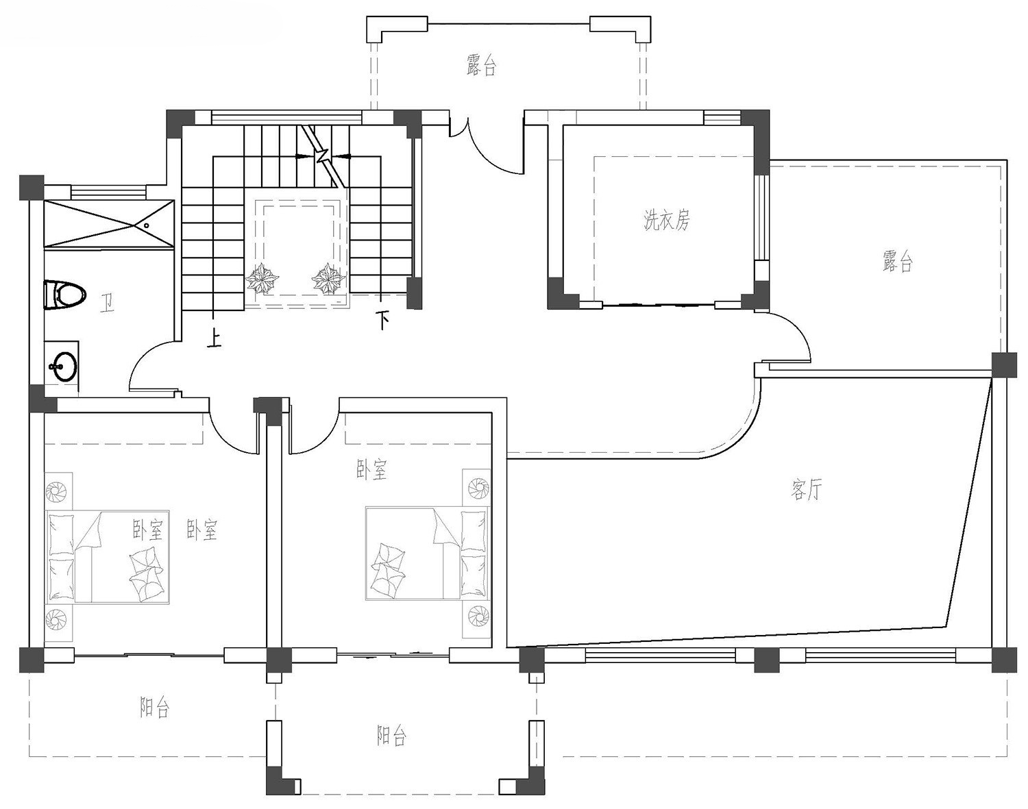
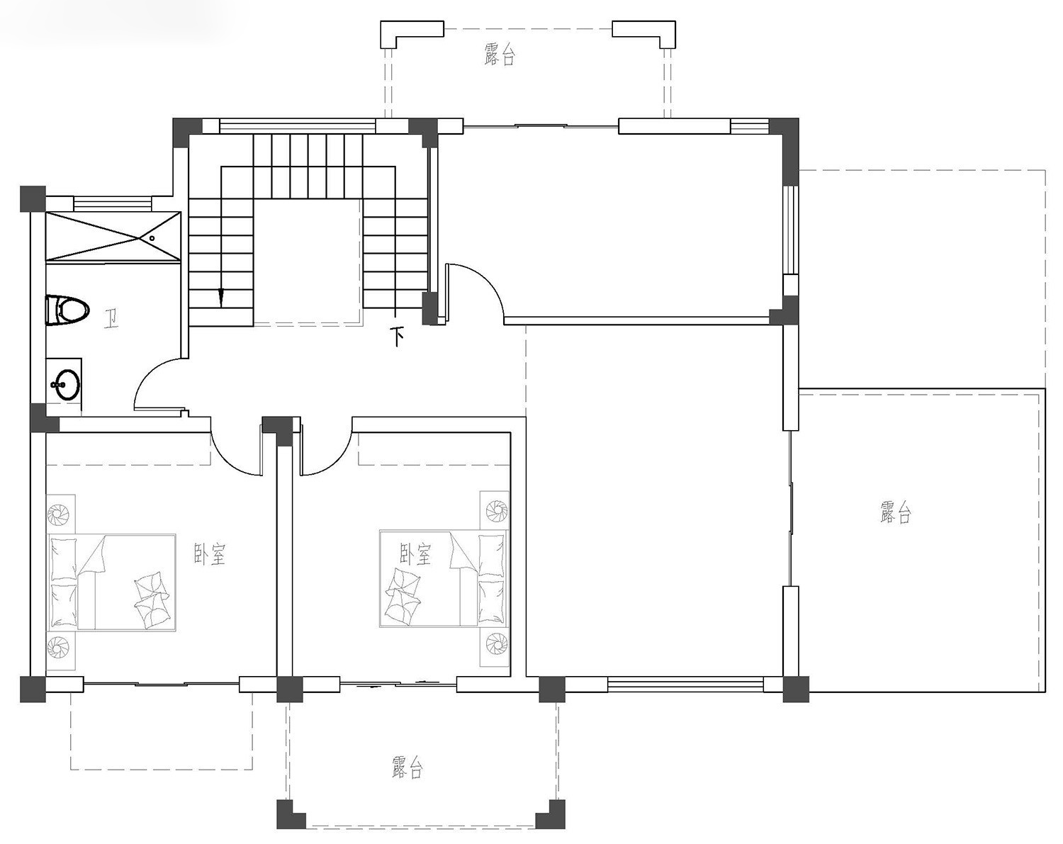
主体设计:

客厅、餐厅、厨房、卧室、公卫、阳台、露台。


。
转载请注明出自轩鼎自建房:://www.lemeizhai.com/