年轻人更有活力更会享受生活,有生活情趣,年轻人住房更讲究个性化,就好比这款李先生私人订制的="://www.lemeizhai.com/Picture.asp?PicClassID=85" target="_self">一层农村自建房,这套别墅非常有生活气息,李先生是个现代艺术家,这套自建房很有艺术感采光良好。造价25万
效果图:

模块化设计充满了年轻气息,底层的外墙白色真石漆,现代感非常棒这是一款年轻人喜爱的现代自建房,非常舒适。

别墅层数: 一层
别墅风格: 新中式
占地面积:187㎡
开 间:17.9m
进 深:10.5m
建筑占地:17.9m×10.5m
建筑面积:164㎡
主体造价:22.0~27.0万
建筑结构:砖混结构
效果图:


主体设计:

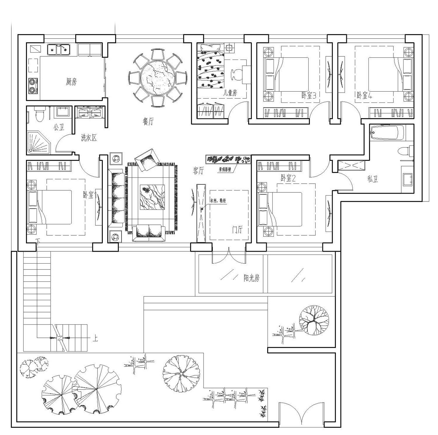
客厅、餐厅、厨房、卧室、公卫、阳台、露台。
。
转载请注明出自轩鼎自建房:://www.lemeizhai.com/