农村建别墅可以试试现代风,装饰少颜值高,就像这款赵总定制的="://www.lemeizhai.com/Picture.asp?PicClassID=88" target="_self" style="font-size: 20px; text-decoration: underline;">二层别墅设计一样,三个屋顶不易漏雨有美感,外墙是仿木结构和文化石,多开门设计窗口适中主体造价最高36万。这样的房子搭配小院绝对靠谱
效果图:

别墅层数: 二层
别墅风格: 现代
占地面积:160㎡
开 间:14.6m
进 深:11m
建筑占地:14.6m×11m
建筑面积:213㎡
主体造价:31.0~36.0万
建筑结构:框架结构
效果图:


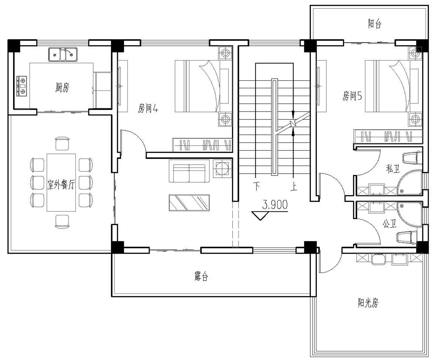
主体设计:。

客厅、餐厅、厨房、卧室、公卫、阳台、露台。

。
转载请注明出自轩鼎自建房:://www.lemeizhai.com/