农村老年人住不惯城里的房子,农自建房才是符合这一辈人的,建一栋一层自建房就很适合,就好比刘总定制的13.5m×10.4m的一层农村小院,这套="://www.lemeizhai.com/Picture.asp?PicClassID=85" target="_self">一层农村自建房漂亮好看,青砖为底红色墙体点缀非常现代,小台阶的设计有效的阻挡了雨水倒灌,自建房小院不大不小正合适,留出的空间日后可以搭建饲养棚或者菜棚,吃自己种植的粮食,门口可以安装可拆卸的玻璃围挡,别墅最高主体不超过30万。
效果图:


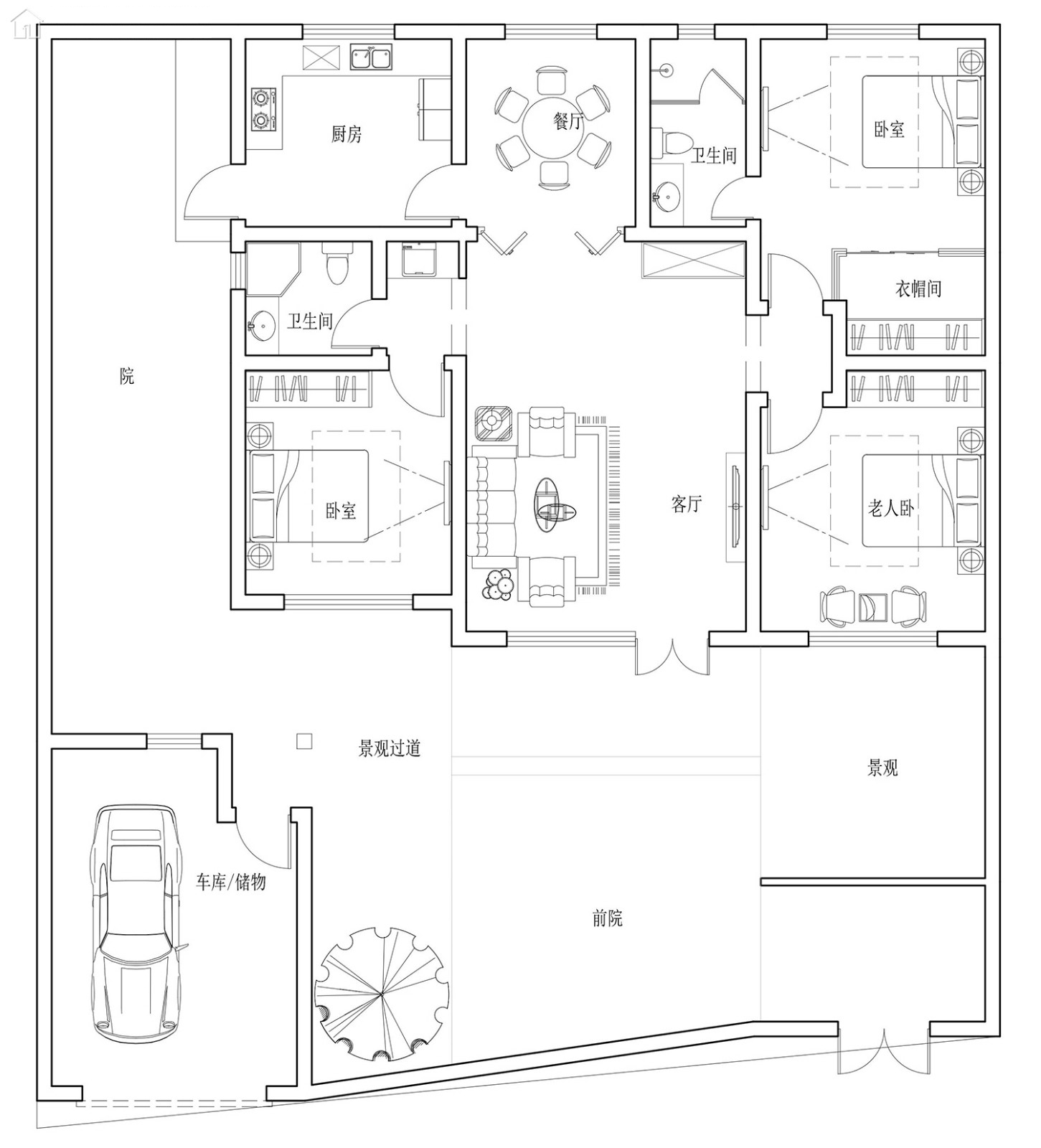
别墅层数: 一层
别墅风格: ?
占地面积:130㎡
开 间:12.5m
进 深:10.4m
建筑占地:13.5m×10.4m
建筑面积:152㎡
主体造价:18.0~23.0万
建筑结构:砖混结构
效果图:


主体设计:
客厅、餐厅、厨房、卧室、公卫、阳台、露台。

。
转载请注明出自轩鼎自建房:://www.lemeizhai.com/