农村盖二层的小别墅就很好了,现在盖三层可能很难了有些地区不允许,河北就这样,二层的房子就已经很不错了。今天推荐河北唐山王总私人订制的="://www.lemeizhai.com/Picture.asp?PicClassID=88" target="_self">二层别墅设计,这款别墅中间开门有影壁墙符合当地特色,车库开在了右侧小院预留的空间也比较大,别墅本体现代好看,围墙是白色别墅正面有文化石非常好看,门口是二进门,防止雨水倒灌是一栋好房子。

效果图:

别墅层数: 二层
别墅风格: 新式
占地面积:135㎡
开 间:13.5m
进 深:10m
建筑占地:13.5m×10m
建筑面积:233㎡
主体造价:38.0~43.0万
建筑结构:砖混结构
效果图:


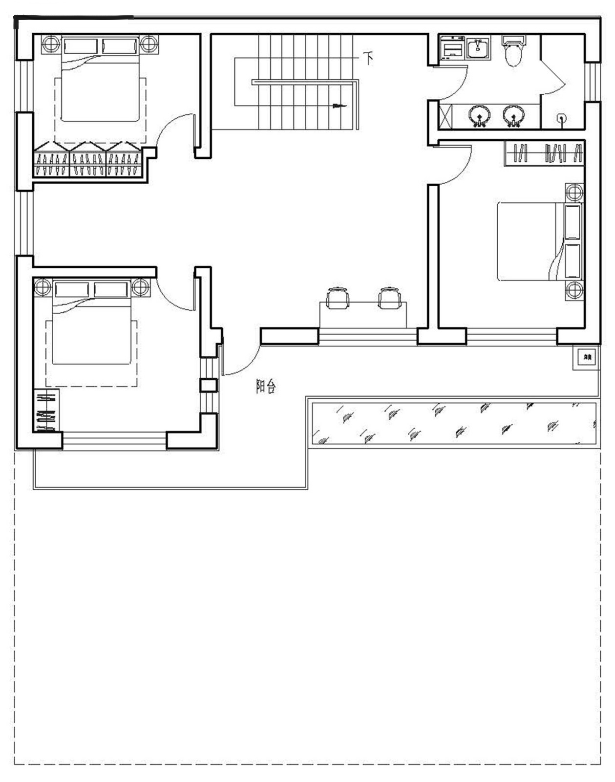
主体设计:

客厅、餐厅、厨房、卧室、公卫、阳台、露台。

。
转载请注明出自轩鼎自建房:://www.lemeizhai.com/