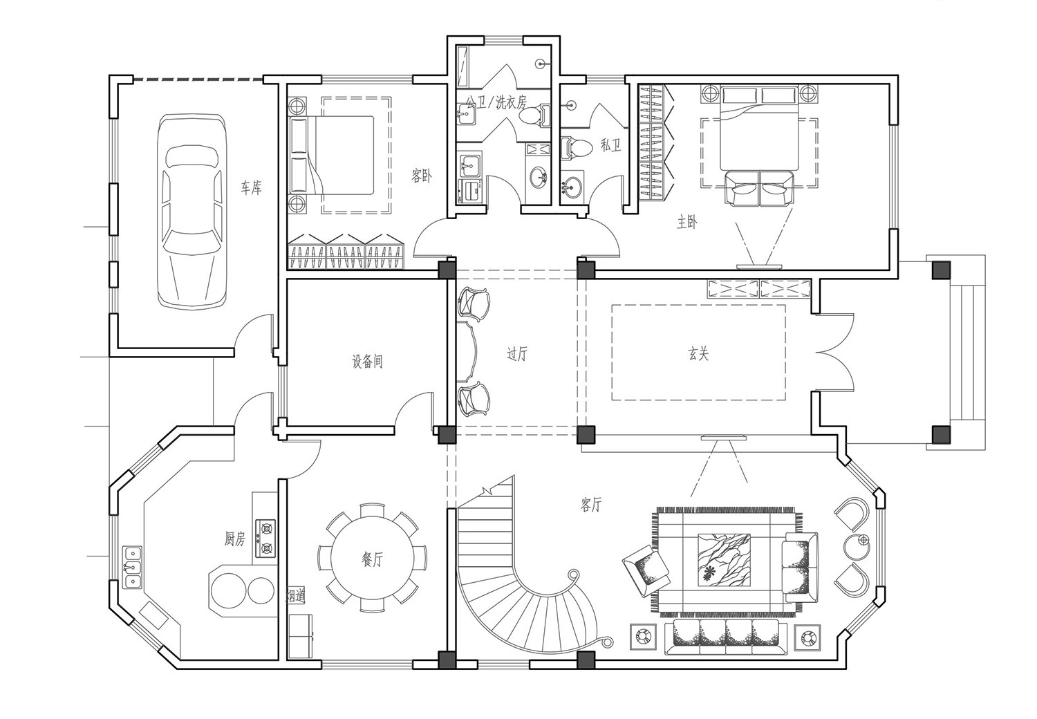
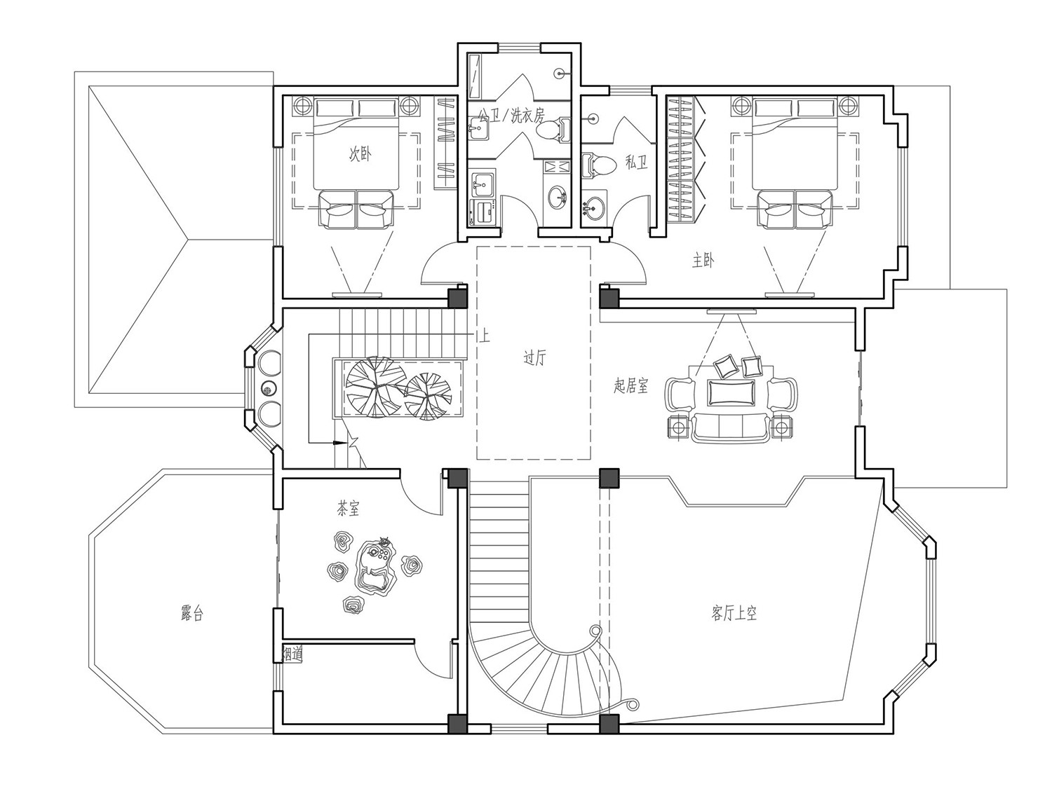
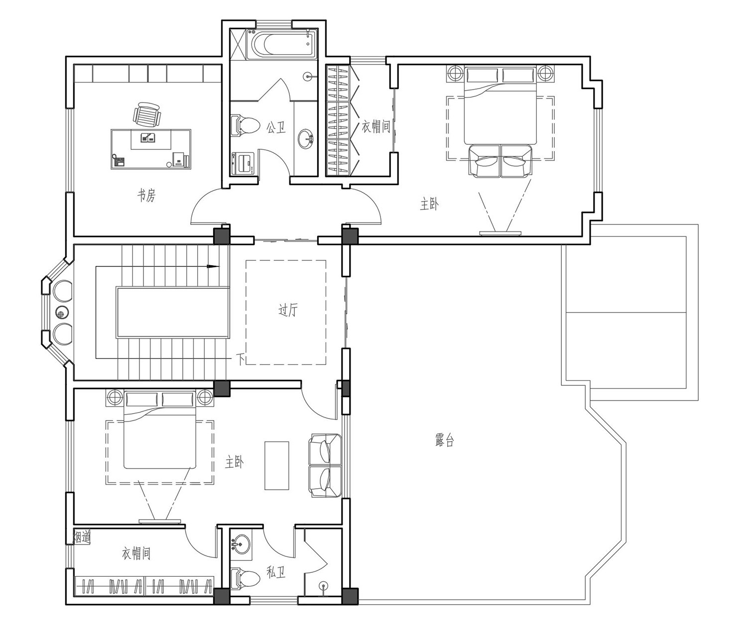
农村建房就应该建这样的房子,这是胡总="://www.lemeizhai.com/Picture.asp?PicClassID=91" target="_self">私人订制的农村三层别墅设计,欧式风格,底层是文化石包裹顶上是白色真石漆,搭配大落地窗设挑空客厅,大露台开阔视野,,进门就是玄关,室内厨房餐厅和客厅有隔断设计还有一个旋转楼梯,房子侧面有车库,最高价79万左右。
效果图:


别墅层数: 三层
别墅风格: 欧式
占地面积:261㎡
开 间:17.9m
进 深:14.6m
建筑占地:17.9m×14.6m
建筑面积:529㎡
主体造价:74.5~79.5万
建筑结构:框架结构
效果图:


主体设计:

客厅、餐厅、厨房、卧室、公卫、阳台、露台。


。
转载请注明出自轩鼎自建房:://www.lemeizhai.com/