农村以前老旧的的房子是有独立的外置厨房的,现在新式自建房把厨房搬到了室内,但有时你会觉得厨房的空间比较拥挤又占空间,最好办法是使用开放式厨房,这样做的好处是空间感好,不显得拥挤又能增大厨房面积,还有半封闭式厨房的模式,把有油烟的灶器封闭设西厨在外边。今天给大家推荐一款="://www.lemeizhai.com/Picture.asp?PicClassID=88" target="_self">二层别墅设计希望大家喜欢,这款别墅可以安装开放厨房。
效果图:

别墅层数: 二层
别墅风格: 欧式
占地面积:142㎡
开 间:13.6m
进 深:10.5m
建筑占地:13.6m×10.5m
建筑面积:281㎡
主体造价:41.0~46.0万
建筑结构:框架结构
效果图:


主体设计:。



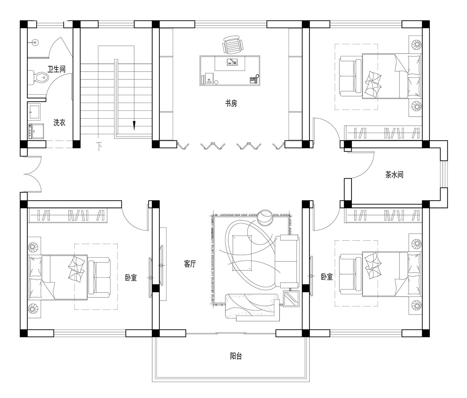
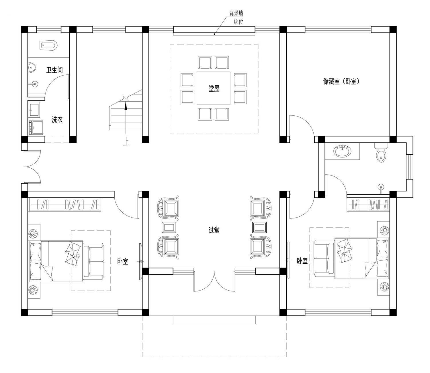
客厅、餐厅、厨房、卧室、公卫、阳台、露台。


。
转载请注明出自轩鼎自建房:://www.lemeizhai.com/