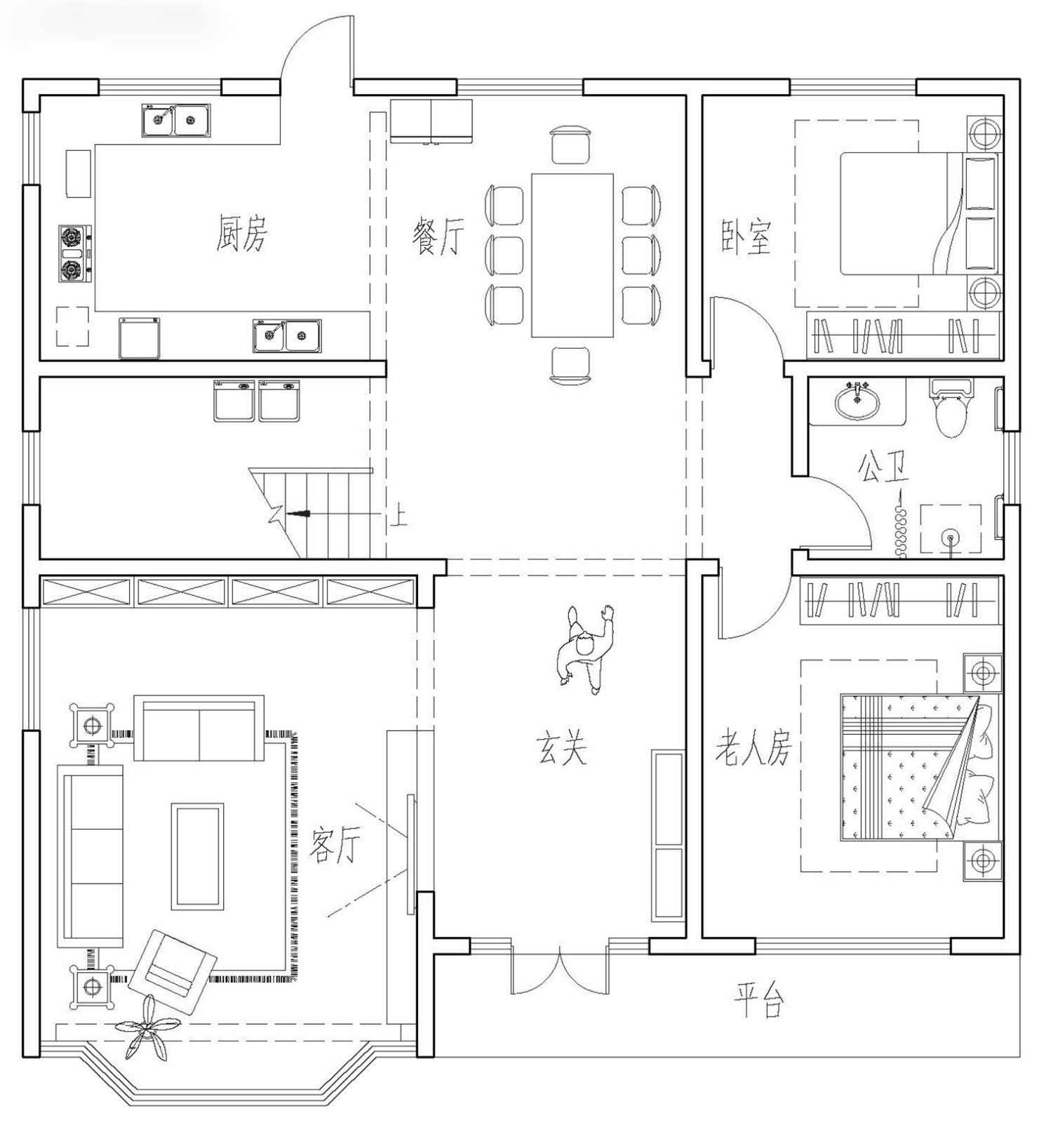
喜欢农村别墅的朋友,今天给大家推荐的是一款欧式别墅,典型的="://www.lemeizhai.com/Picture.asp?PicClassID=88" target="_self" style="font-size: 20px; text-decoration: underline;">二层别墅设计方案尽可能的符合农村需求,砖混结构外观简洁顺眼不突兀,斜坡道的助老设计大大增加老年人的安全感,进门就是玄关,客厅独立设计不挨着餐厅非常舒服,公卫设计巧妙避免直冲餐厅,这套别墅造价最高34万左右,户型漂亮简单实用。
效果图:


别墅层数: 二层
别墅风格: 欧式
占地面积:147㎡
开 间:12.3m
进 深:12m
建筑占地:12.3m×12m
建筑面积:249㎡
主体造价:29.0~34.0万
建筑结构:砖混结构
效果图:



主体设计:

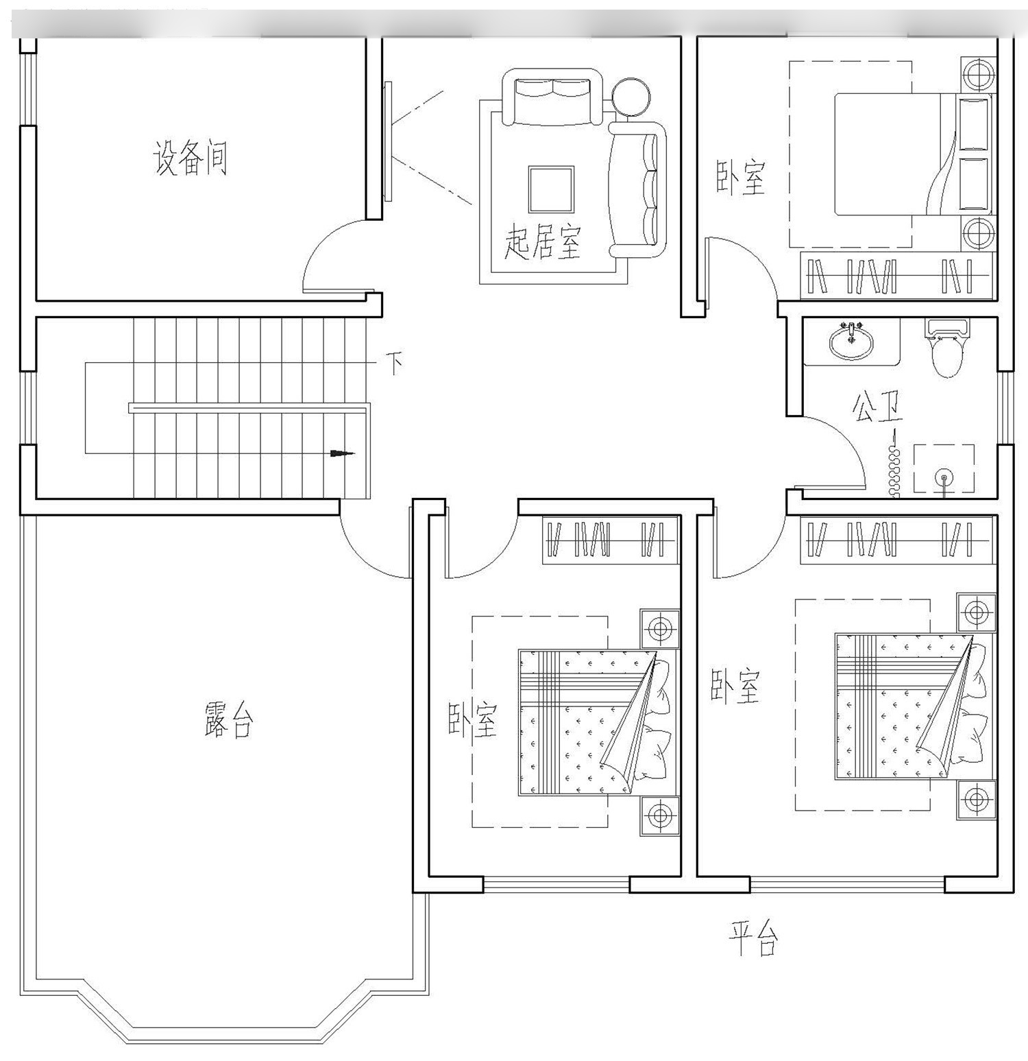
客厅、餐厅、厨房、卧室、公卫、阳台、露台。
。

转载请注明出自轩鼎自建房:://www.lemeizhai.com/