房子不需要太过复杂简简单单就很好,建一款二层别墅就符合大多数人的需求,就好比这款周总私人订制的欧式小洋楼,这是一款漂亮的="://www.lemeizhai.com/Picture.asp?PicClassID=88" target="_self">二层别墅设计方案,文化石的柱子和欧式别墅套件大大提升美感,窗口下有绿植,欧式的露台铁围栏增加别墅的质感,让其样貌美观。内部空间大有挑空设计。
效果图:

别墅层数: 二层
别墅风格: 欧式
占地面积:139㎡
开 间:11.7m
进 深:11.9m
建筑占地:11.7m×11.9m
建筑面积:253㎡
主体造价:35.4~40.4万
建筑结构:框架结构
效果图:



主体设计:

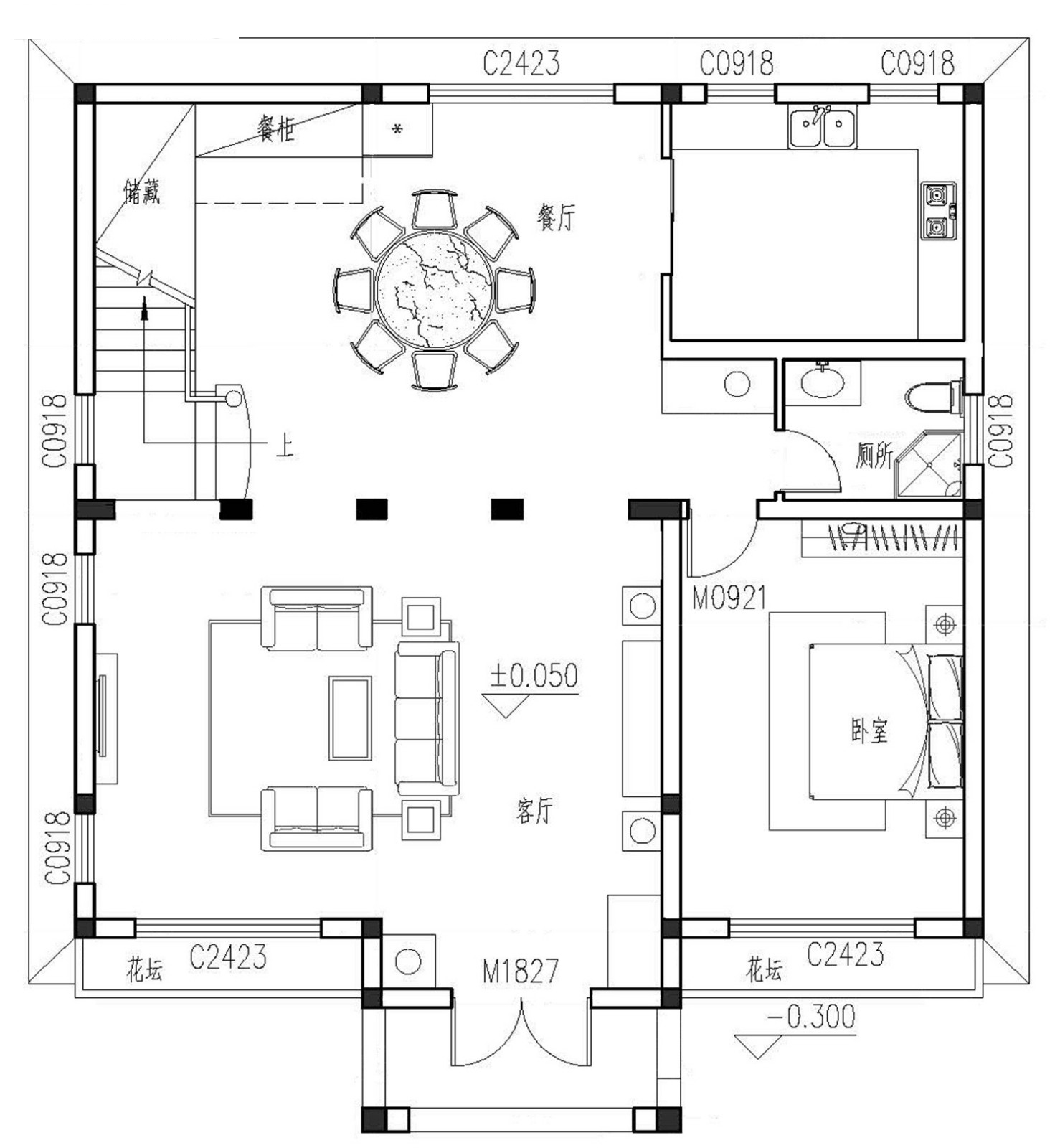
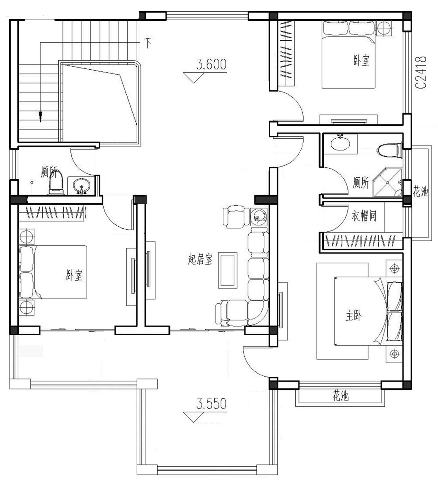
客厅、餐厅、厨房、卧室、公卫、阳台、露台。

。
转载请注明出自轩鼎自建房:://www.lemeizhai.com/