中国农村建小别墅现在都快成了主流,中式、现代、田园、巴洛克都很多,现代风格的别墅非常适合年轻一辈,简洁好看的房子任谁都喜欢。今天给大家推荐的是一款结构结实的="://www.lemeizhai.com/Picture.asp?PicClassID=91" target="_self">三层别墅设计,缺点就是有点贵,主体造价:47.0~60.0万左右,这别墅可以说是非常好看,室内布局请看效果图。
效果图:

别墅层数: 三层
别墅风格: 现代
占地面积:100㎡
开 间:11.8m
进 深:8.5m
建筑占地:11.8m×8.5m
建筑面积:229㎡
主体造价:47.0~60.0万
建筑结构:框架结构
效果图:


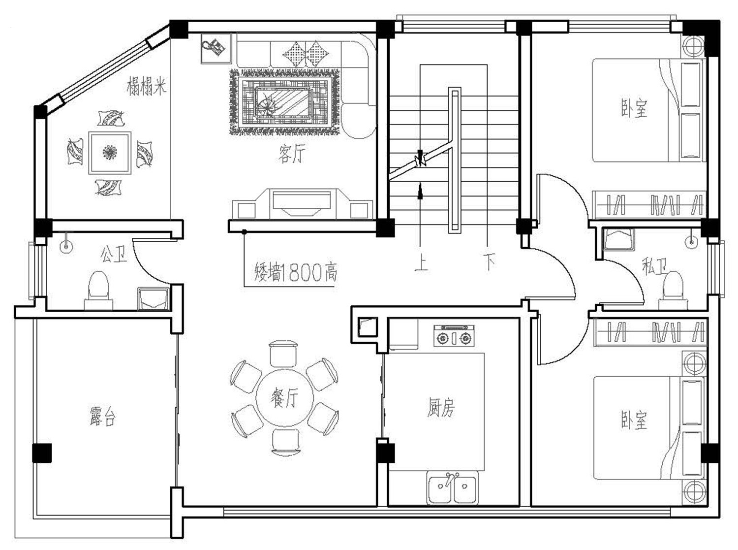
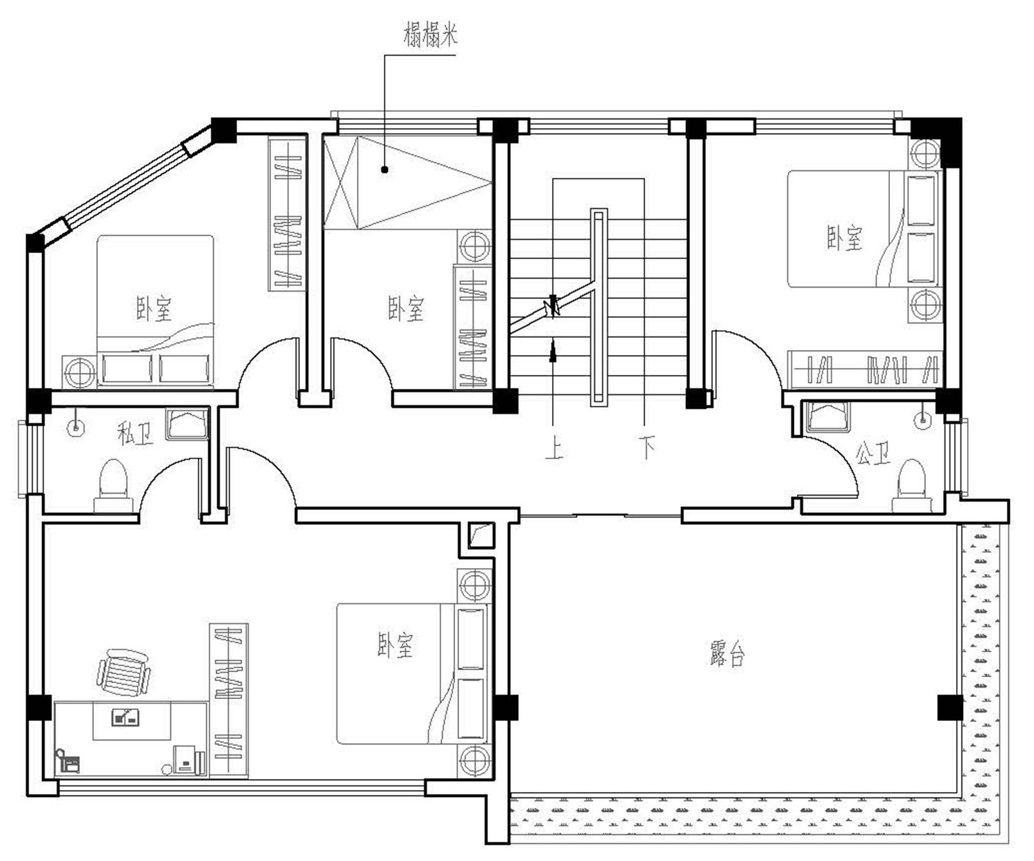
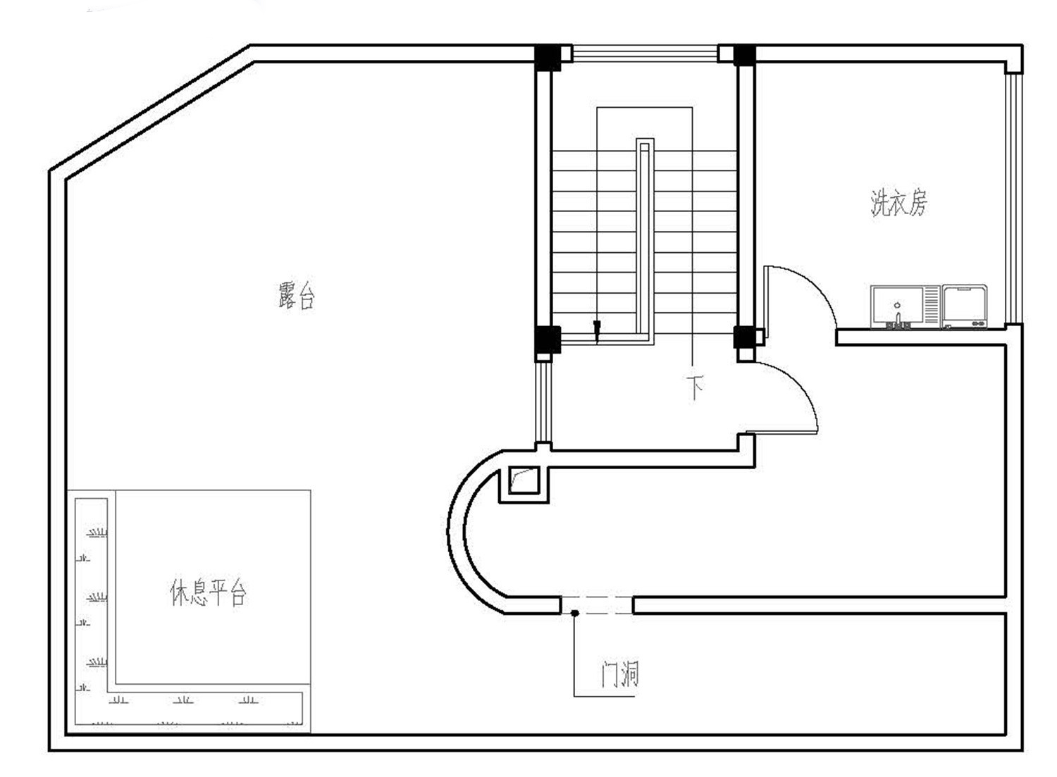
主体设计:

客厅、餐厅、厨房、卧室、公卫、阳台、露台。

。


转载请注明出自轩鼎自建房:://www.lemeizhai.com/