不是所有的地方都能建自建房的,还要看当地的允许不允许,允许建几层,有的地方不能超过3层和2层的,那就只能建一层的了,一层的自建房也能非常好看!今天推荐的是安徽孙总私人订制的="://www.lemeizhai.com/search.asp?SearchType=Software&imageField.x=31&imageField.y=42&SearchKey=%D0%C2%D6%D0%CA%BD" target="_self">新中式别墅设计,一款漂亮的一层农村自建房!来看看图纸质吧
效果图:


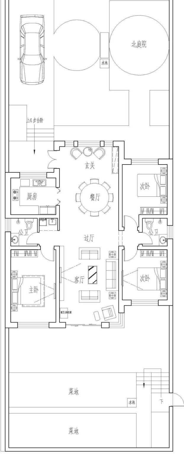
别墅层数: 一层
别墅风格: 新中式
占地面积:140㎡
开 间:11.2m
进 深:12.5m
建筑占地:11.2m×12.5m
建筑面积:125㎡
主体造价:16.0~21.0万
建筑结构:砖混结构
效果图:




主体设计:。
客厅、餐厅、厨房、卧室、公卫、阳台、露台。

。
转载请注明出自轩鼎自建房:://www.lemeizhai.com/