农村建小别墅不比城里买房香?!城市里的房子太贵了有宅基地的或危房重建的可以不在城里买房,在家建小别墅。今天给大家推荐的是山东孙总私人订制的="://www.lemeizhai.com/Picture.asp?PicClassID=88" target="_self">二层别墅设计,简洁漂亮的欧式风格绝对是你的菜!门口漂亮的石柱为房子添分不少,不管从什么角度看都适合我们,主体造价33万即可。
效果图:


别墅层数: 二层
别墅风格: 欧式
占地面积:90㎡
开 间:10.4m
进 深:8.7m
建筑占地:10.4m×8.7m
建筑面积:198㎡
主体造价:28.0~33.0万
建筑结构:砖混结构
效果图:


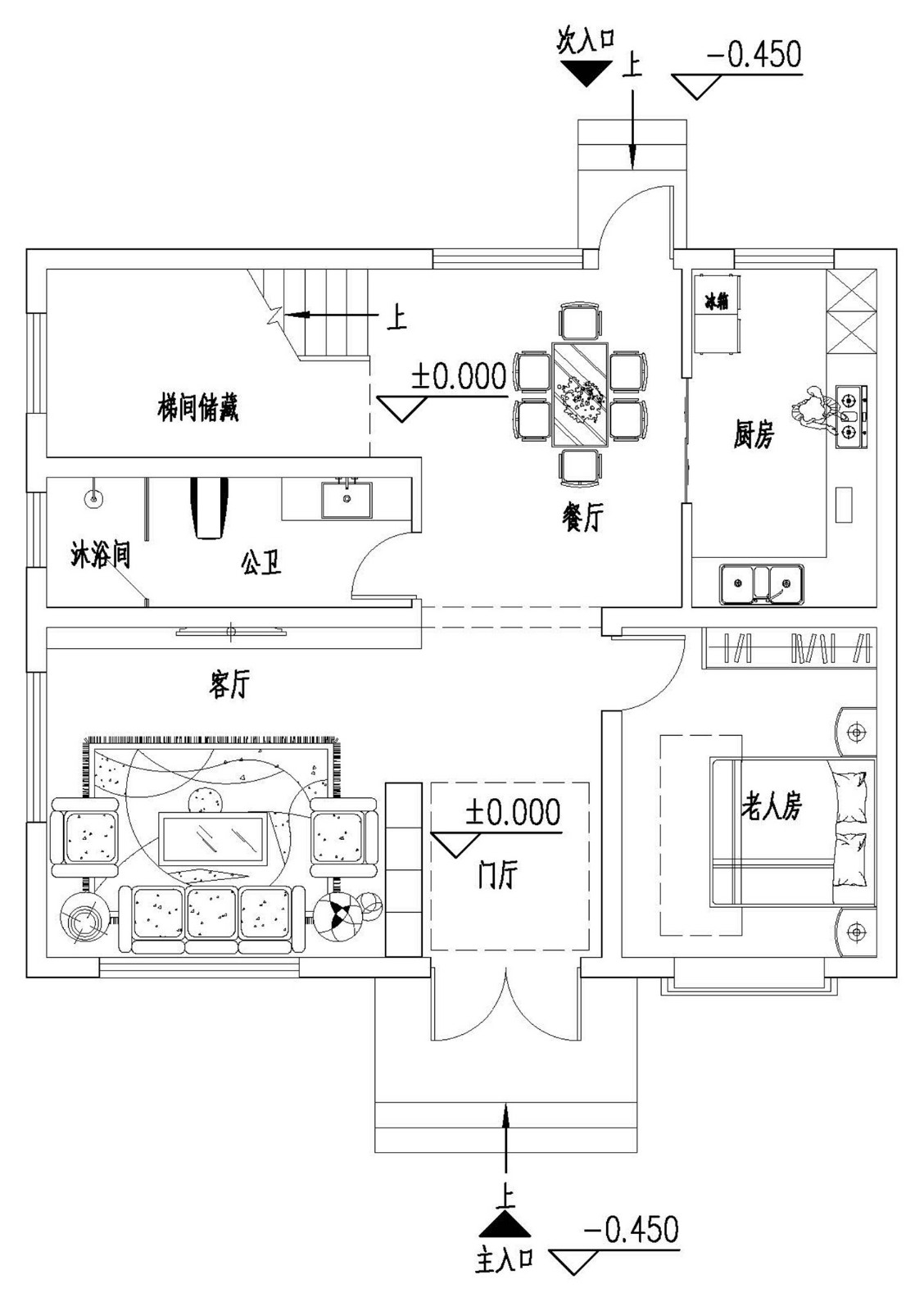
主体设计:

客厅、餐厅、厨房、卧室、公卫、阳台、露台。


。
转载请注明出自轩鼎自建房:://www.lemeizhai.com/