农村自建别墅现在开始多了起来,南方是内卷,北方是渐渐兴起,如果能建一栋漂亮的别墅,我相信很多人都会笑醒的,那好看的别墅要怎么建呢?看好了,今天推荐吴总私人订制的这款="://www.lemeizhai.com/Picture.asp?PicClassID=91" target="_self">三层别墅设计会给你答案,温馨漂亮的身影绝对能进入你的内心,建别墅就照这样建错不了!让你一眼就能爱上的别墅设计方案。
效果图:

别墅层数: 三层
别墅风格: 欧式
占地面积:135㎡
开 间:12m
进 深:11.3m
建筑占地:12m×11.3m
建筑面积:410㎡
主体造价:75.2~80.2万
建筑结构:框架结构
效果图:



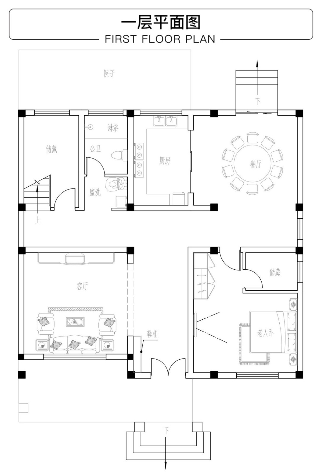
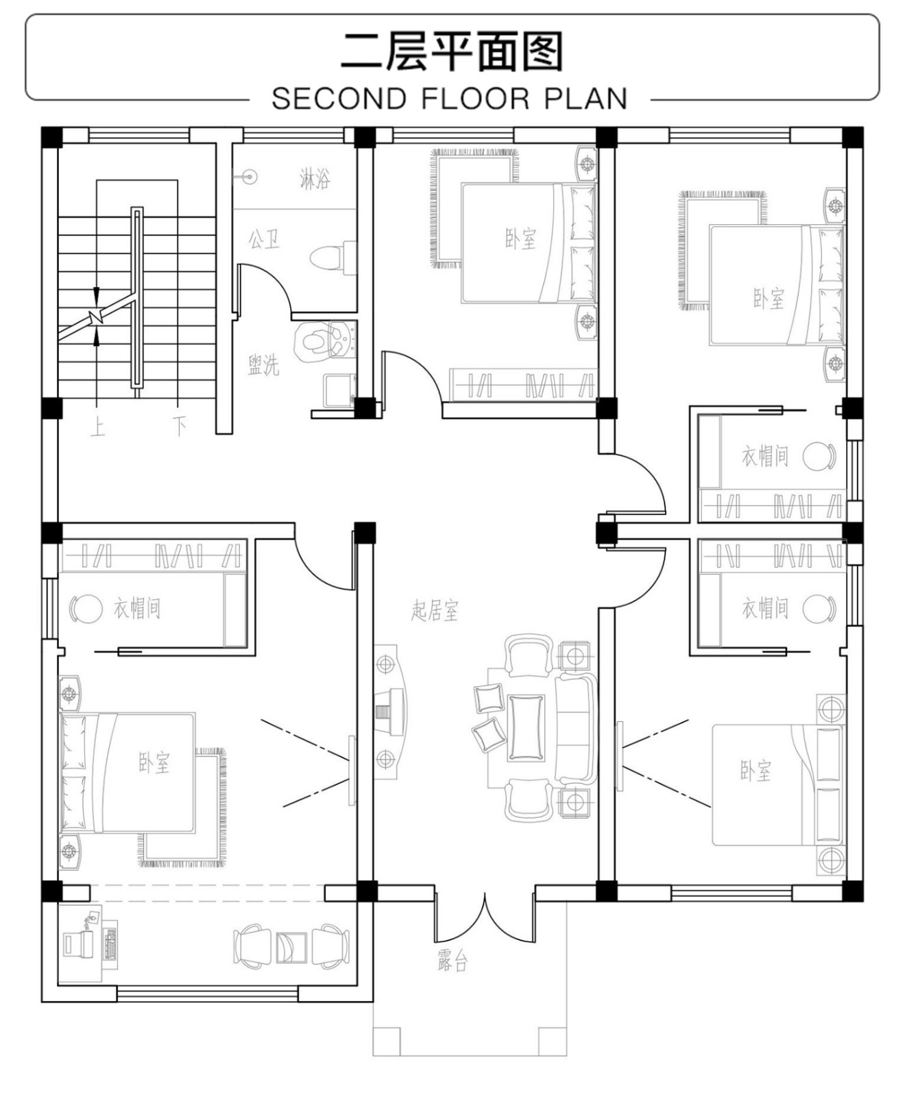
主体设计:。

客厅、餐厅、厨房、卧室、公卫、阳台、露台。


。
转载请注明出自轩鼎自建房:://www.lemeizhai.com/