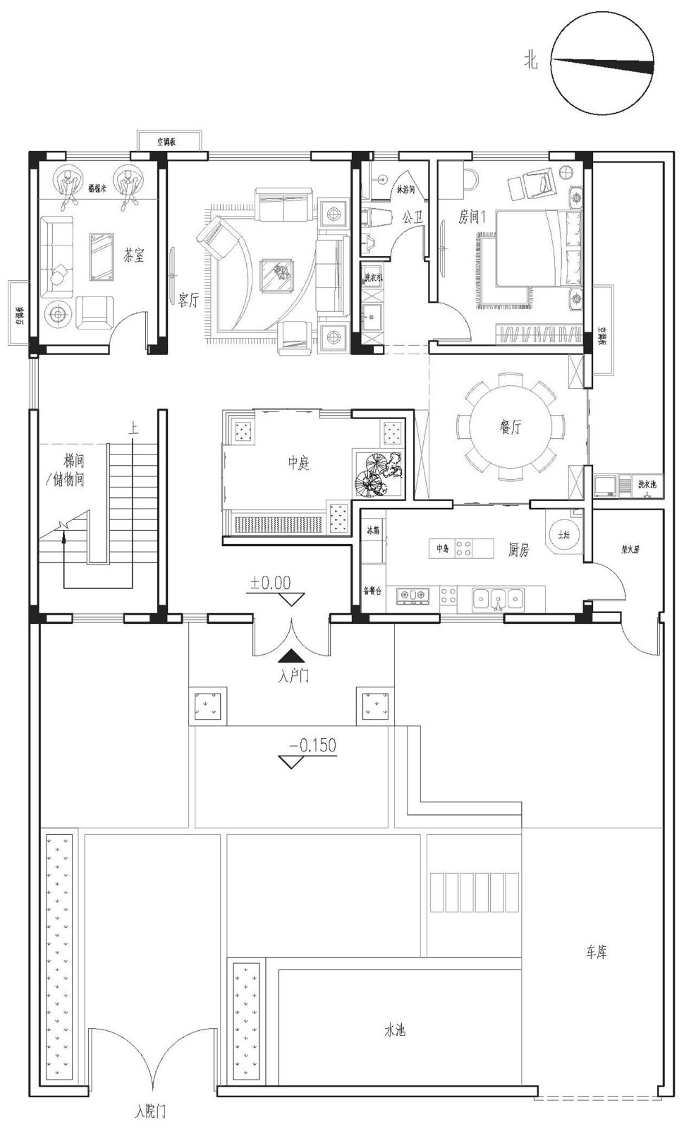
农村自建别墅中新中式最适合农村环境,比那些不土不洋的假欧式别墅强多了,更加有人文与乡土气息。今天给大家推荐的是你此生不能错过的="://www.lemeizhai.com/search.asp?SearchType=Software&imageField.x=10&imageField.y=30&SearchKey=%D0%C2%D6%D0%CA%BD" target="_self">新中式别墅设计,这是一款高三层占地面积142平方米的好别墅,青砖灰瓦大气漂亮,进门是映入眼帘的是影壁强,中间的中庭摆放观赏植物和假山景,别墅空间大非常适合宅基地大的人家。
效果图:

别墅层数: 三层
别墅风格: 中式
占地面积:142㎡
开 间:13.1m
进 深:10.9m
建筑占地:13.1m×10.9m
建筑面积:358㎡
主体造价:52.2~57.2万
建筑结构:框架结构
效果图:




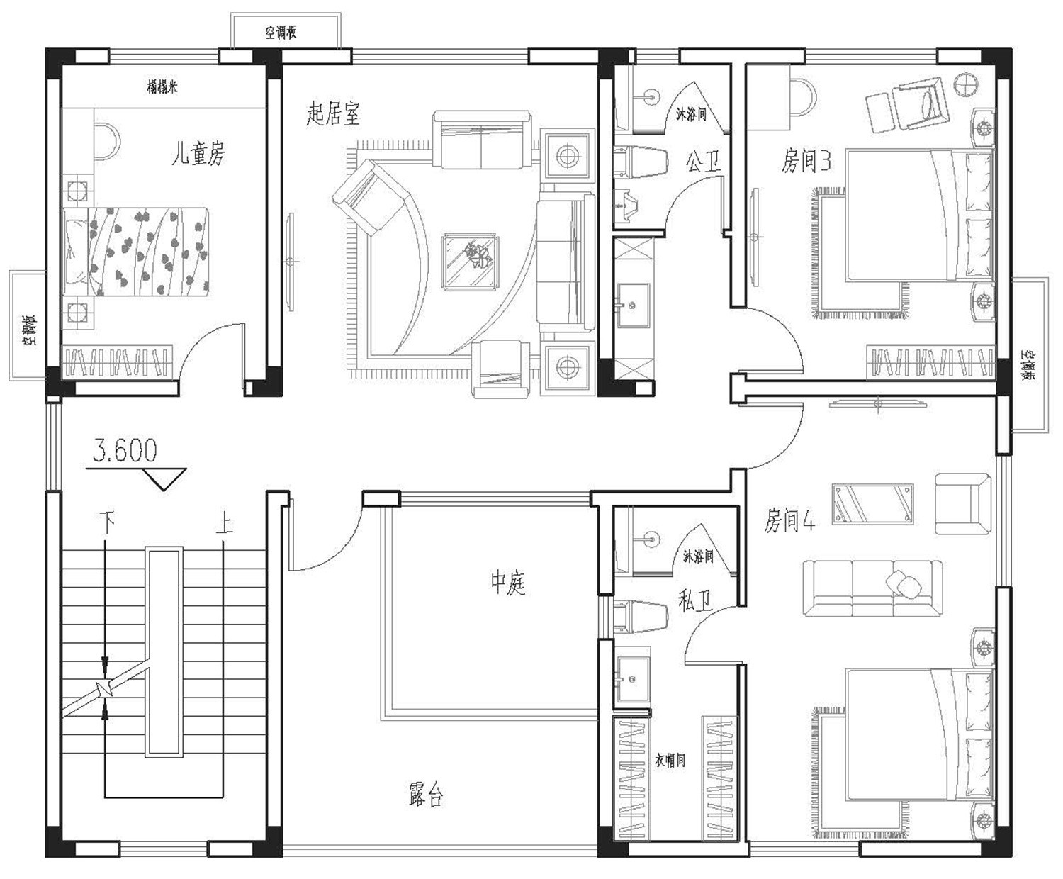
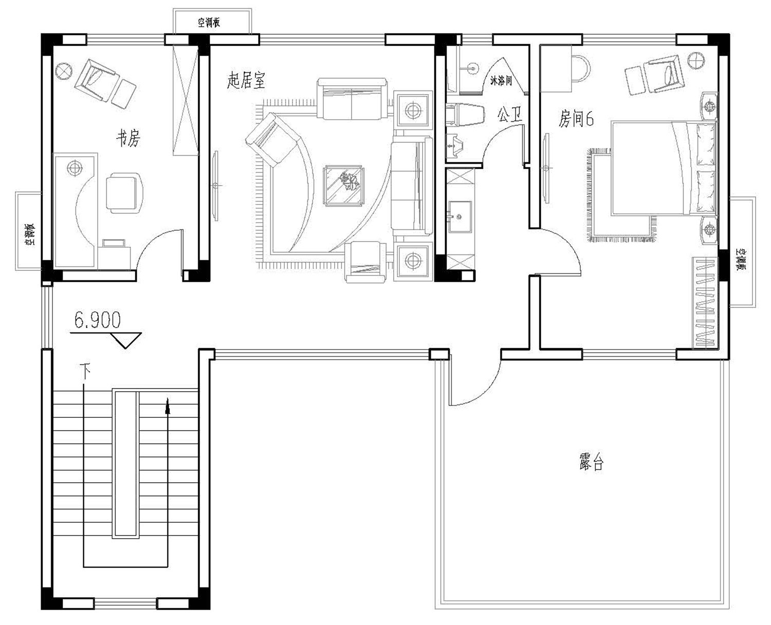
主体设计:

客厅、餐厅、厨房、卧室、公卫、阳台、露台。

。

转载请注明出自轩鼎自建房:://www.lemeizhai.com/