最适合南方的自建房是新中式自建房,依水而建优雅好看,院内再种上樱花别提多优雅质了。今天给大家推荐涂云飞先生私人订制的二层="://www.lemeizhai.com/search.asp?SearchType=Software&imageField.x=32&imageField.y=38&SearchKey=%D0%C2%D6%D0%CA%BD" target="_self">新中式别墅设计,这套别墅非常漂亮,有种江南水乡的味道,木质大门很有年代感,最高造价不超100万还是可以的。
效果图:

别墅层数: 二层
别墅风格: 中式
占地面积:196㎡
开 间:14m
进 深:14m
建筑占地:14m×14m
建筑面积:306㎡
主体造价:63.0~68.0万
建筑结构:砖混结构
效果图:


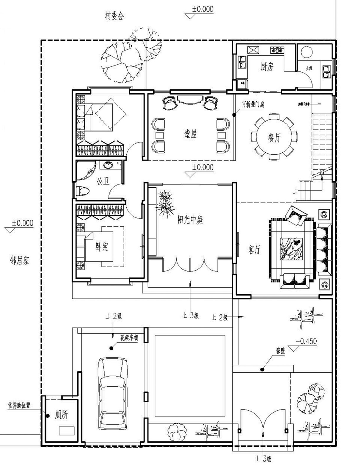
主体设计:。

客厅、餐厅、厨房、卧室、公卫、阳台、露台。

。
转载请注明出自轩鼎自建房:://www.lemeizhai.com/