自建别墅就是图一个舒服自在,别墅不需要繁琐的外表,只要自己觉得顺眼管别人怎么看,自己舒服才是硬道理!今天给大家推荐的别墅设计方案是山东吴总私人订制的="://www.lemeizhai.com/Picture.asp?PicClassID=88" target="_self">二层别墅设计,这是典型的新式欧风别墅, 别看是小小二层却气势非凡。
效果图:

别墅层数: 二层
别墅风格: 欧式
占地面积:128㎡
开 间:15.3m
进 深:8.4m
建筑占地:15.3m×8.4m
建筑面积:258㎡
主体造价:36.2~41.2万
建筑结构:砖混结构
效果图:



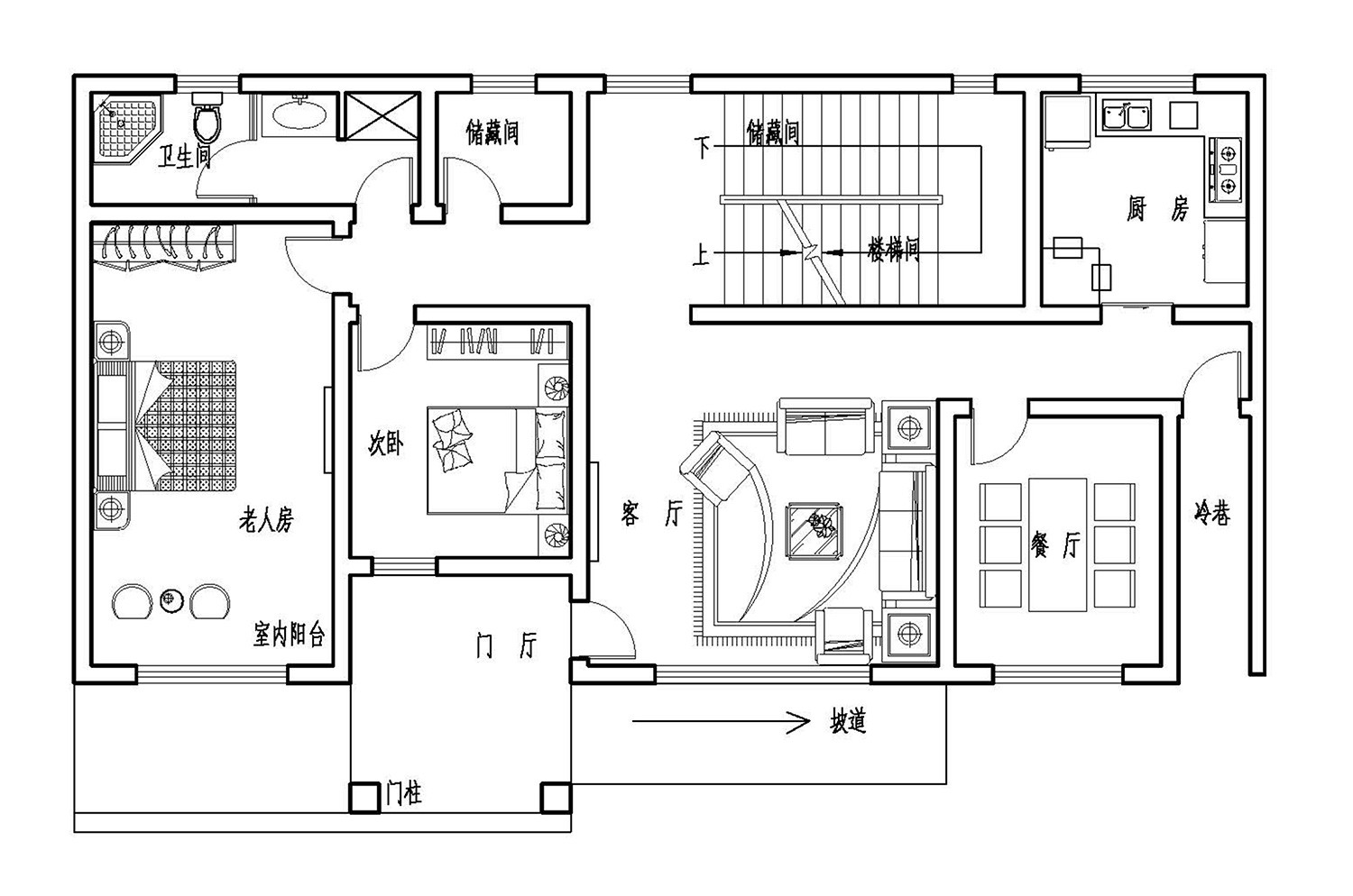
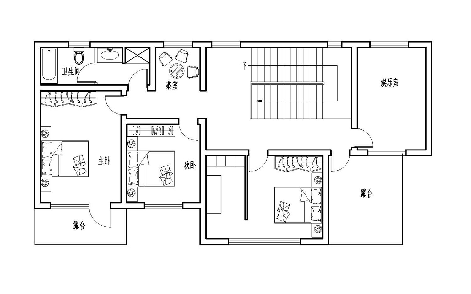
主体设计:

客厅、餐厅、厨房、卧室、公卫、阳台、露台。

。
转载请注明出自轩鼎自建房:://www.lemeizhai.com/