在南方建别墅都是攀比的,谁要是建别墅那就是光宗耀祖,那些赚了钱的都会在老家建别墅的,别墅建的最豪华的地方是福建莆田,当地流传着“中国别墅看福建,福建别墅看莆田”可见哪儿的别墅是有多豪华。今天给大家推荐的是刘总私人订制的现代="://www.lemeizhai.com/Picture.asp?PicClassID=88" target="_self">二层别墅设计。
效果图:


建筑面积:394.61㎡
基地面积:590㎡
建筑尺寸:16.5mX17m
占地面积:202.39㎡
建筑结构:砖混结构
效果图:



主体设计:

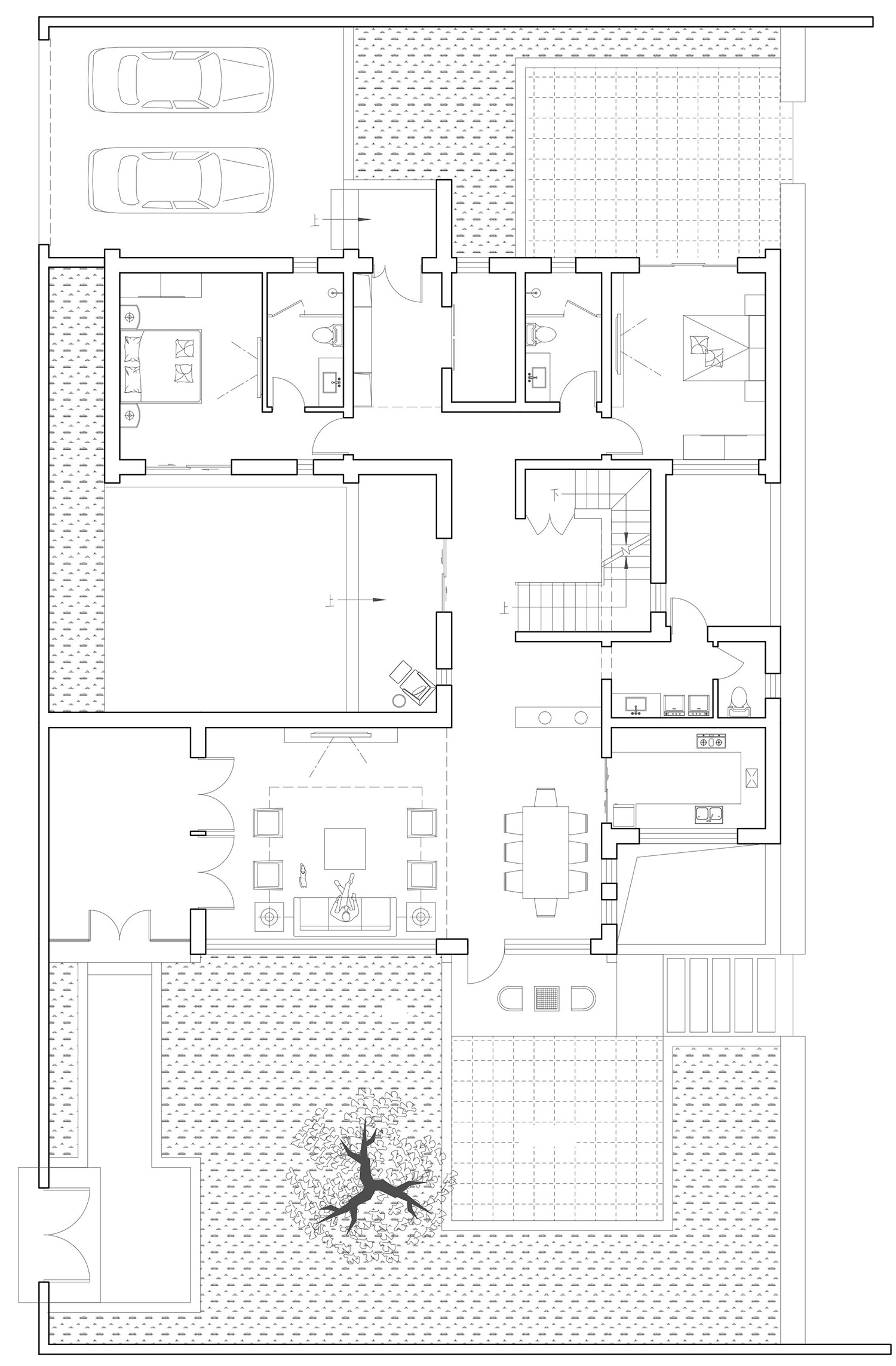
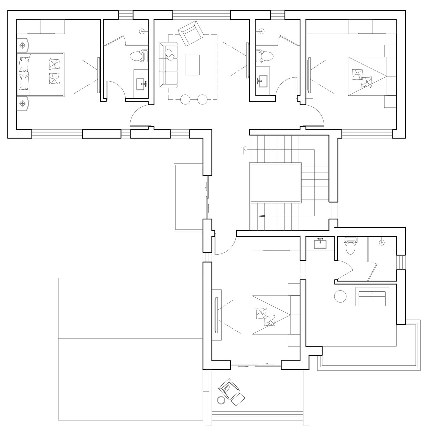
客厅、餐厅、厨房、卧室、公卫、阳台、露台。
。
转载请注明出自轩鼎自建房:://www.lemeizhai.com/