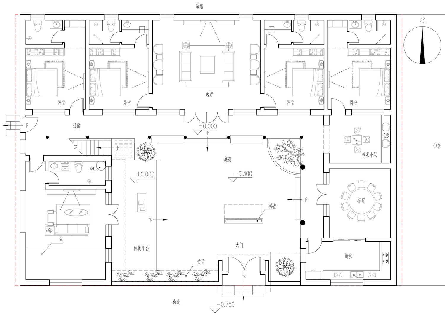
传统户型依然能打!!今天给大家推荐的是孙总私人订制的一层中式="://www.lemeizhai.com/" target="_self">农村自建房设计图,这套房子主打复古,一般的农村地区都适合这样的户型影壁墙的位置都紧跟乡村,在说说室内,一层的正中间是堂屋兼会客厅,两侧四个卧室,东屋是餐厅厨房,西屋是厕所。
效果图:


建筑面积:294.11㎡
基地面积:436.8㎡
建筑尺寸:24.96m×17.5m
占地面积:294.11㎡
图纸编号:929
户型概况:4室2厅5卫1厨1多功能室
建筑结构:砖混结构
土建参考造价:51万元(不包含室内装修费用)
效果图:


主体设计:
客厅、餐厅、厨房、卧室、公卫、阳台、露台。

。
转载请注明出自轩鼎自建房:://www.lemeizhai.com/