有钱人的生活你想象不到,就拿福建的有钱人来说他们的别墅都不输美国白宫,特别豪华,动辄6、7层。今天给大家推荐福建欧总私人订制的现代四层="://www.lemeizhai.com/" target="_self">别墅设计,时尚的户型采光极好,欧总是个年轻人对这款别墅非常喜爱,现实生活中的能建这样别墅的人少之又少。
效果图:

建筑面积:500.77㎡
基地面积:300㎡
建筑尺寸:11.46m×13.5m
占地面积:134.7㎡
效果图:




主体设计:

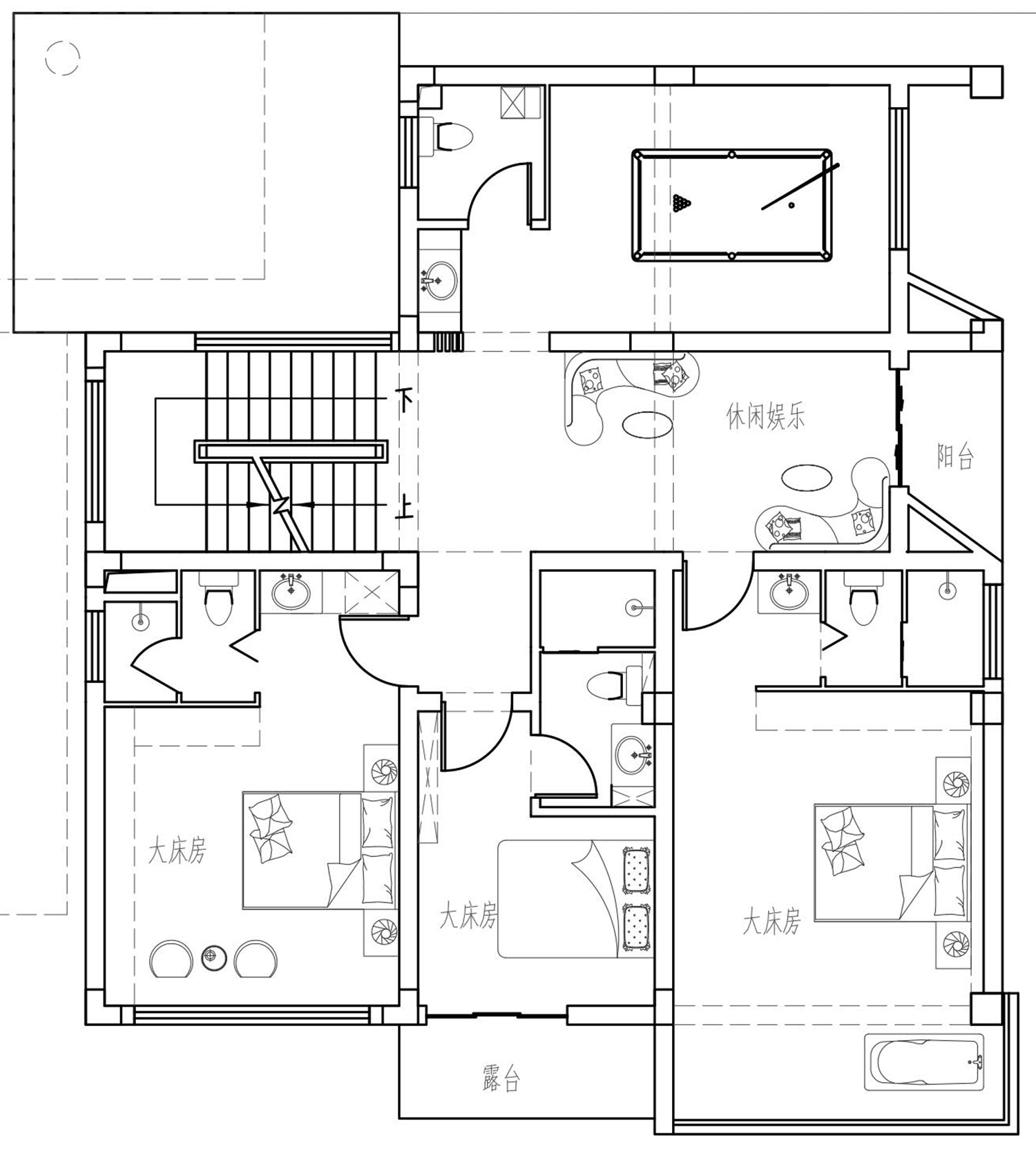
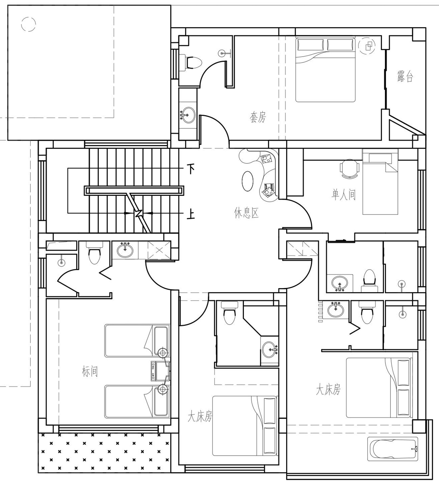
客厅、餐厅、厨房、卧室、公卫、阳台、露台。

。


转载请注明出自轩鼎自建房:://www.lemeizhai.com/