四合院和古宅一般人住不起,随着仿古建筑的出现满足了很多人住古宅的愿望,住上一栋仿古别墅也是一件美事。今天给大家推荐的是安徽万老板私人订制的="://www.lemeizhai.com/search.asp?SearchType=Software&imageField.x=30&imageField.y=23&SearchKey=%D6%D0%CA%BD" target="_self">中式别墅设计,白墙灰瓦大气漂亮,独属于中国人审美的二层中式豪宅,心动不如行动!!
效果图:



别墅层数: 二层
别墅风格: 中式
占地面积:375㎡
开 间:25m
进 深:15m
建筑占地:25m×15m
建筑面积:584㎡
主体造价:82.0~87.0万
建筑结构:框架结构
效果图:




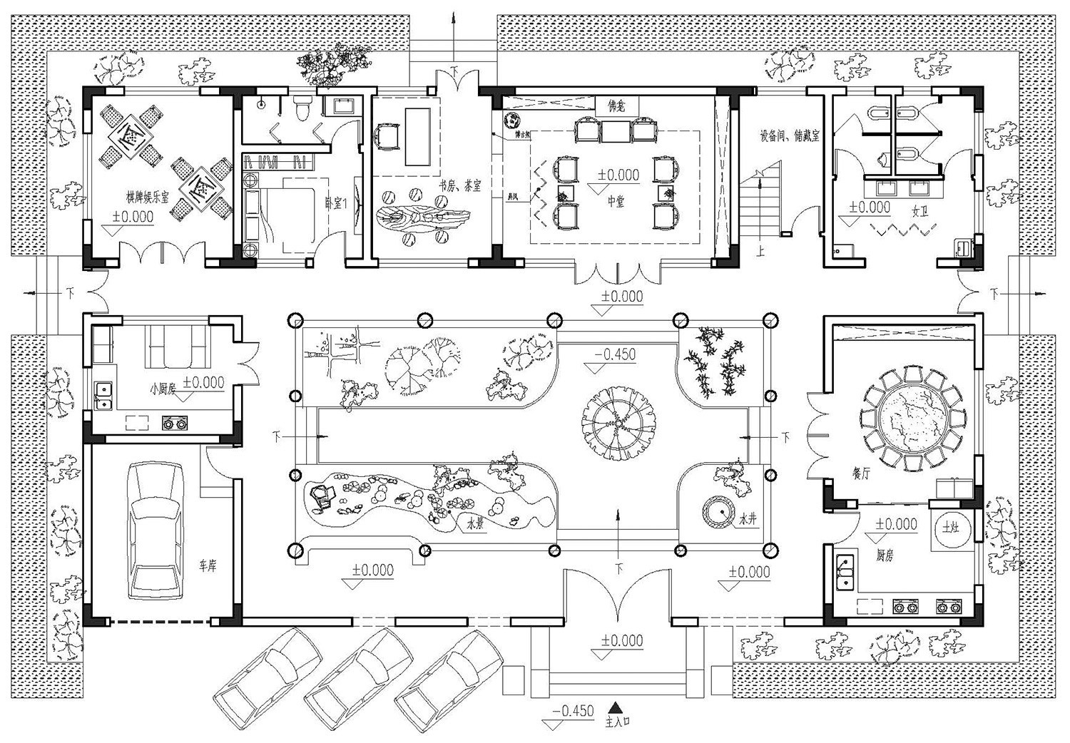
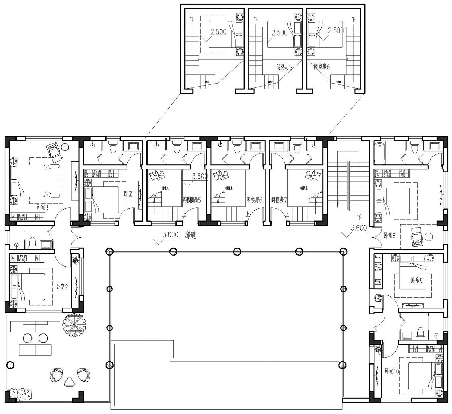
主体设计:

客厅、餐厅、厨房、卧室、公卫、阳台、露台。

。
转载请注明出自轩鼎自建房:://www.lemeizhai.com/