建房政策可能一个地方一个政策,有不允许建二,三层的,但总归是能建房,二层三层建不了,那就建一层的农村自建房,合院式自建房就适合我们。今天给大家推荐的是山东刘总私人订制的一层="://www.lemeizhai.com/search.asp?SearchType=Software&imageField.x=40&imageField.y=32&SearchKey=%D0%C2%D6%D0%CA%BD" target="_self">新中式自建房设计,这样的房子最适合农村环境了,像这样的四合院你心动吗。
效果图:

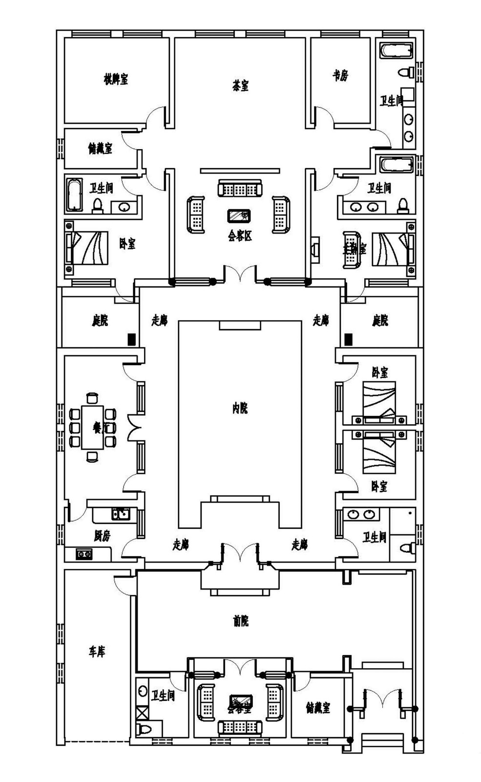
别墅层数: 一层
别墅风格: 中式
占地面积:624㎡
开 间:16m
进 深:39m
建筑占地:16m×39m
建筑面积:460㎡
主体造价:45.6~50.6万
建筑结构:砖混结构
效果图:


主体设计:。

客厅、餐厅、厨房、卧室、公卫、阳台、露台。
。
转载请注明出自轩鼎自建房:://www.lemeizhai.com/