农村自建别墅虽然很不错,但也要考虑当地的情况,不建议家里有孩子上学的家庭建房,因为一些好资源全都在城里,学习一旦落下就拼不过别人了,而且还要看医疗条件有没有,这要生个病还得往县城跑。农村自建别墅适合孩子成家立业的家庭,而且村里的基础设施全面。进入正题今天给大家推荐一款="://www.lemeizhai.com/Picture.asp?PicClassID=88" target="_self">欧式二层别墅设计希望大家喜欢。
效果图:

别墅层数: 二层
别墅风格: 欧式
占地面积:198㎡
开 间:13.7m
进 深:14.5m
建筑占地:13.7m×14.5m
建筑面积:330㎡
主体造价:47.8~52.8万
建筑结构:砖混结构
效果图:


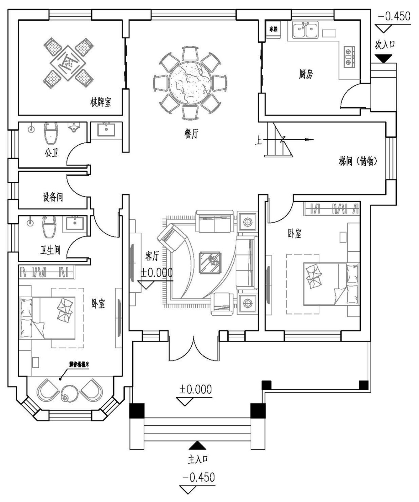
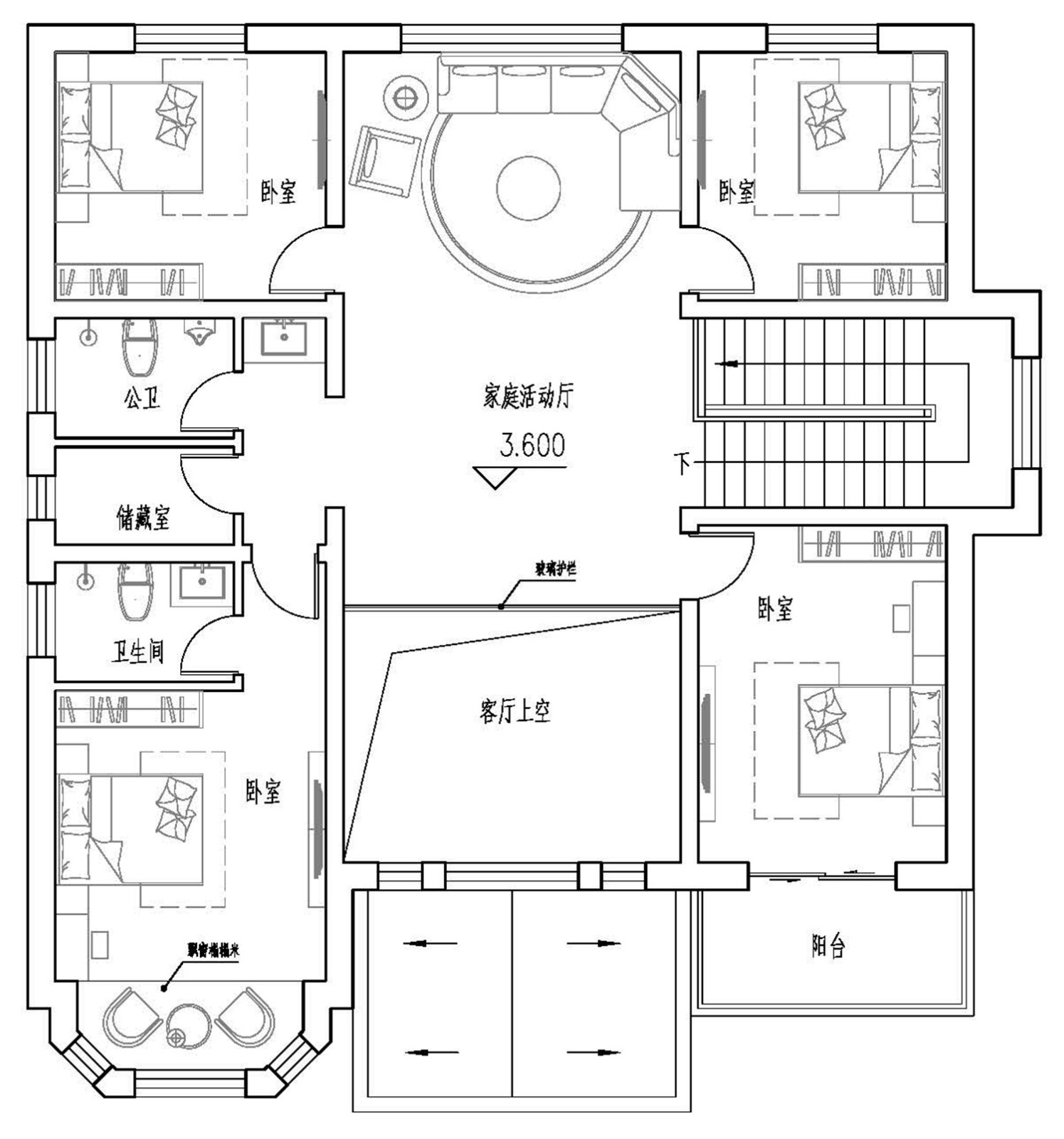
主体设计:

客厅、餐厅、厨房、卧室、公卫、阳台、露台。

。
转载请注明出自轩鼎自建房:://www.lemeizhai.com/