随着农村自建房的兴起,越来越多的经济水平提高的家庭,开始建自建别墅了,就拿浙江为例部分农村地区几乎家家都是小别墅,好的别墅要有好图纸,今天给大家介绍吕总私人订制的="://www.lemeizhai.com/Picture.asp?PicClassID=88" target="_self">二层别墅设计图,这套别墅是欧式风格,外表就看设计图,今天来聊室内布局。
效果图:

设计功能:
别墅风格: 欧式
占地面积:159㎡
开 间:12.5m
进 深:13.7m
建筑占地:12.5m×13.7m
建筑面积:400.15㎡
主体造价:63.0~68.0万
建筑结构:砖混结构
效果图:



主体设计:

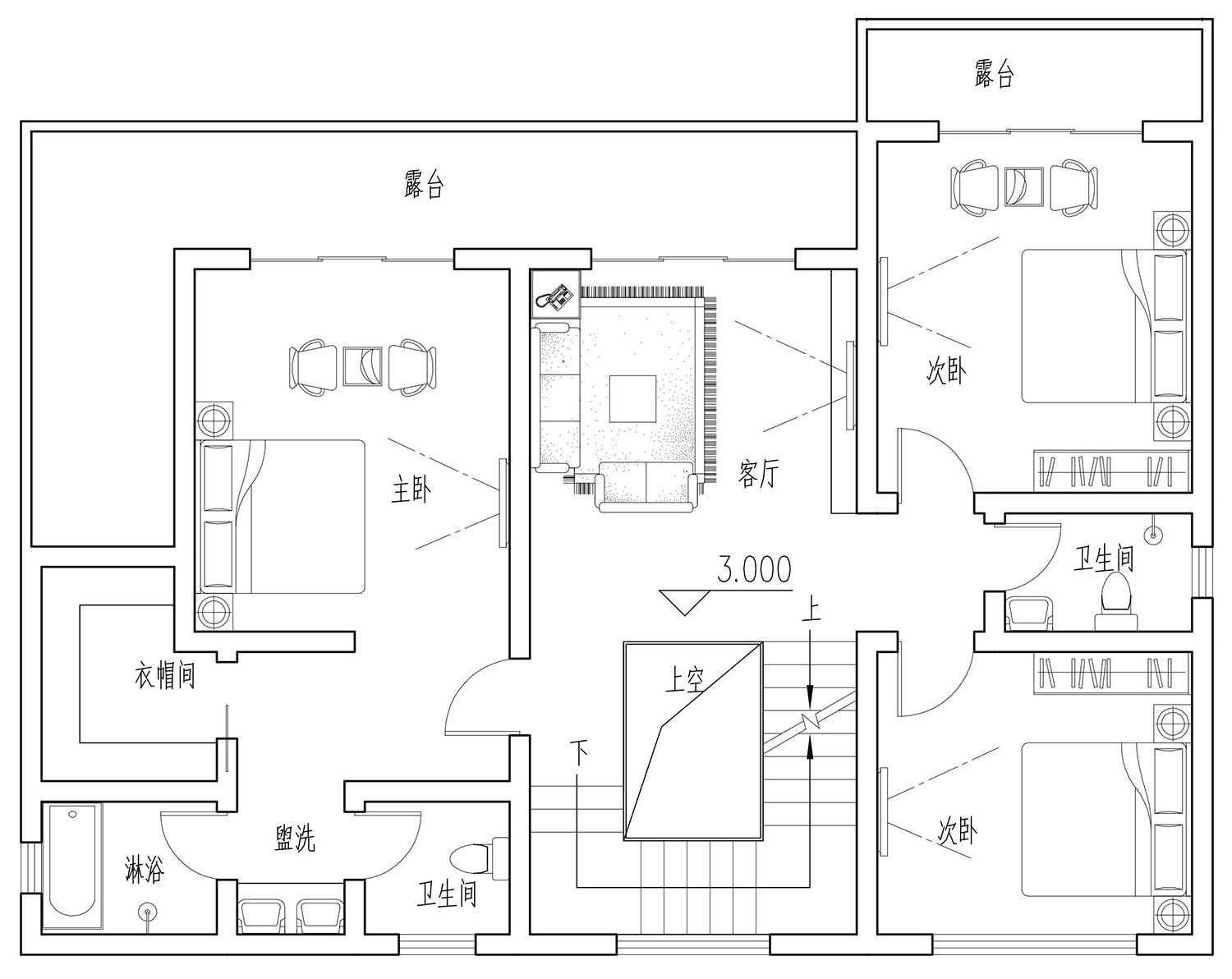
客厅、餐厅、厨房、卧室、公卫、阳台、露台。
一层的主要入口在右边,进门是玄关,前面是厕所正南是大卧室,客厅和卧室餐厅并列中间墙体隔断,厨房在餐厅北侧。二层是主要卧室区。

。
转载请注明出自轩鼎自建房:://www.lemeizhai.com/