新中式的农村自建房绝对是适合农村环境的,有的地区几乎家家户户都是新中式别墅,那样二层的房子非常漂亮,老百姓住着也满意。今天给大家推荐一款真实符合农村环境的="://www.lemeizhai.com/search.asp?SearchType=Software&imageField.x=49&imageField.y=13&SearchKey=%D0%C2%D6%D0%CA%BD" target="_self">新中式别墅设计,这套别墅最注重内部的舒适度,看看设计图就知道了。
效果图:

别墅层数: 二层
别墅风格: 中式
占地面积:175㎡
开 间:15.3m
进 深:11.5m
建筑占地:15.3m×11.5m
建筑面积:318㎡
主体造价:45.8~50.8万
建筑结构:砖混结构
效果图:


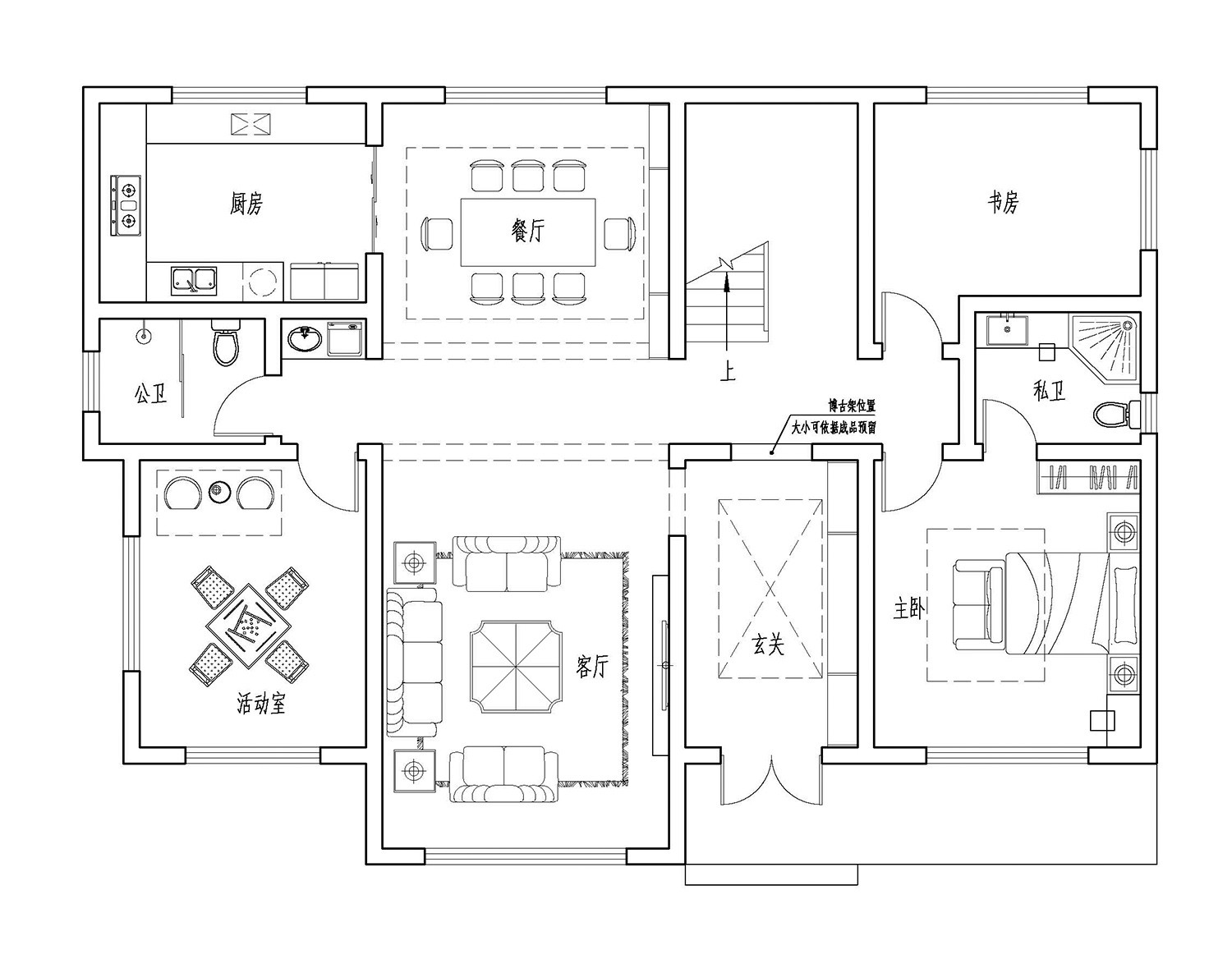
主体设计:。

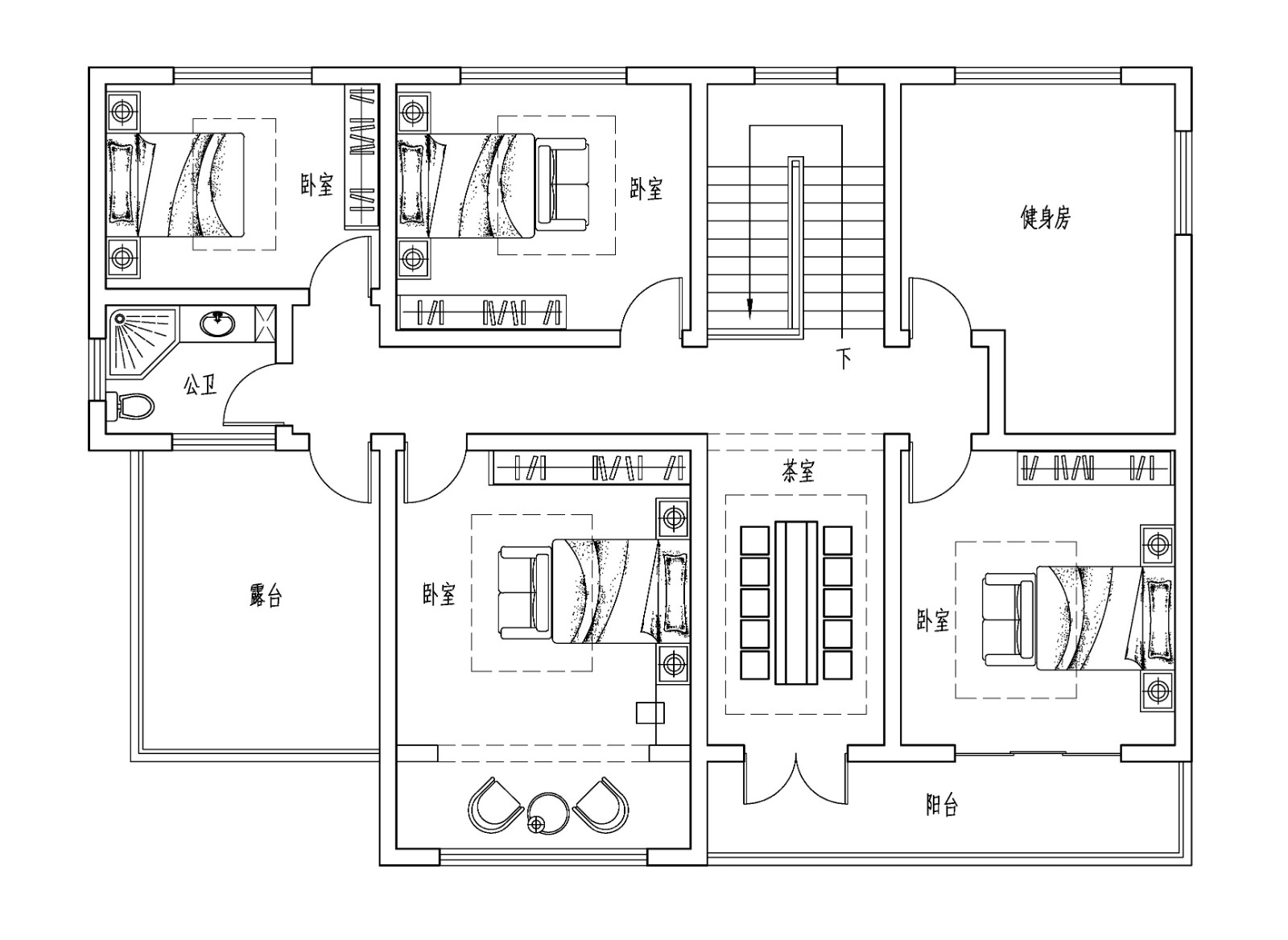
客厅、餐厅、厨房、卧室、公卫、阳台、露台。

。
转载请注明出自轩鼎自建房:://www.lemeizhai.com/