二层的自建别墅适合大多数人,三层四层的有些地方建不了,但具体怎么样还要看实际情况和当地政策,建一套二层别墅只要宅基大就不输三层的,二层的只适合家里人口不多家庭建造。今天给大家推荐王总私人订制的="://www.lemeizhai.com/Picture.asp?PicClassID=88" target="_self">二层新中式别墅设计,这套别墅非常均衡内部空间大。
效果图:

别墅层数: 二层
别墅风格: 中式
占地面积:197㎡
开 间:18.5m
进 深:10.7m
建筑占地:18.5m×10.7m
建筑面积:393㎡
主体造价:55.0~60.0万
建筑结构:砖混结构
效果图:


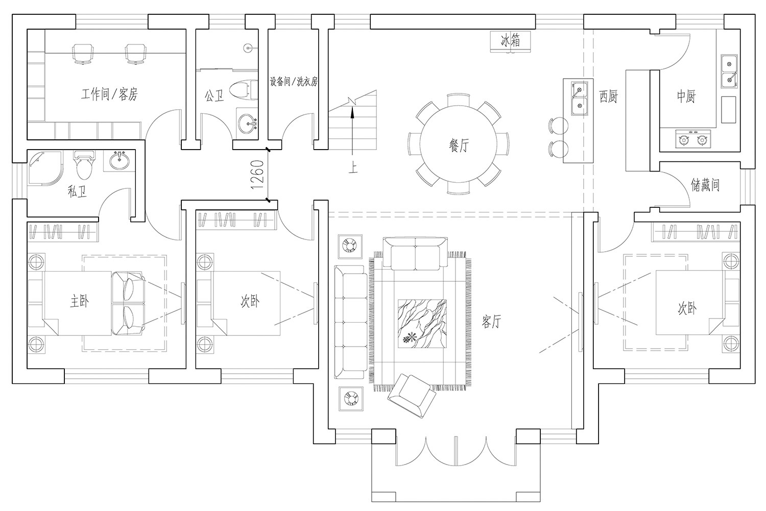
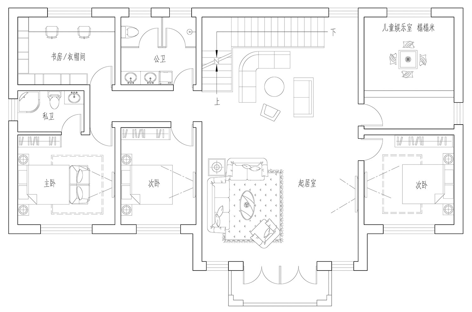
主体设计:

客厅、餐厅、厨房、卧室、公卫、阳台、露台。

。
转载请注明出自轩鼎自建房:://www.lemeizhai.com/