对于宅基小的用户来说把房子叠起来才适合他们,跟日本的小型别墅一样,都是地块小演化出的房屋设计,而且还有更小的房子,比如说越南的小楼他们那有很多那样的小楼。今天给大家推荐一款三层小别墅设计,非常现代感的="://www.lemeizhai.com/Picture.asp?PicClassID=91" target="_self">三层农村自建房深受年轻人喜欢,有前后门非常适合小宅基的客户建造。
效果图:


建筑面积:384.3㎡
基地面积:432㎡
建筑尺寸:10.8m×13.74m
占地面积:158.32㎡
效果图:



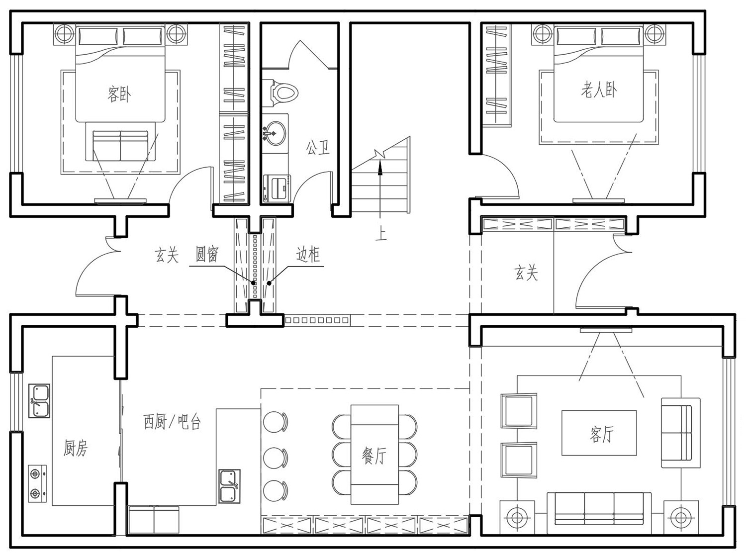
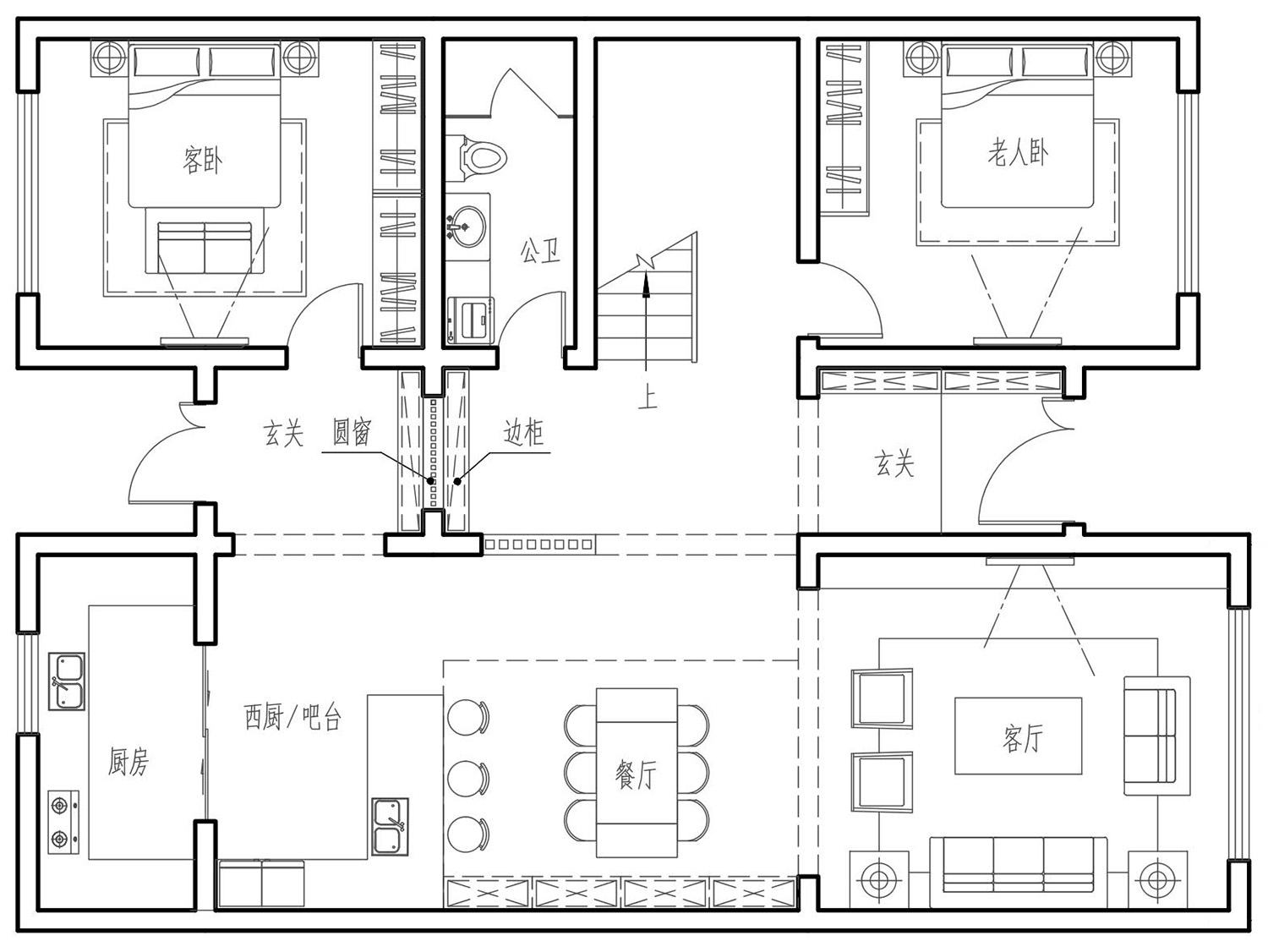
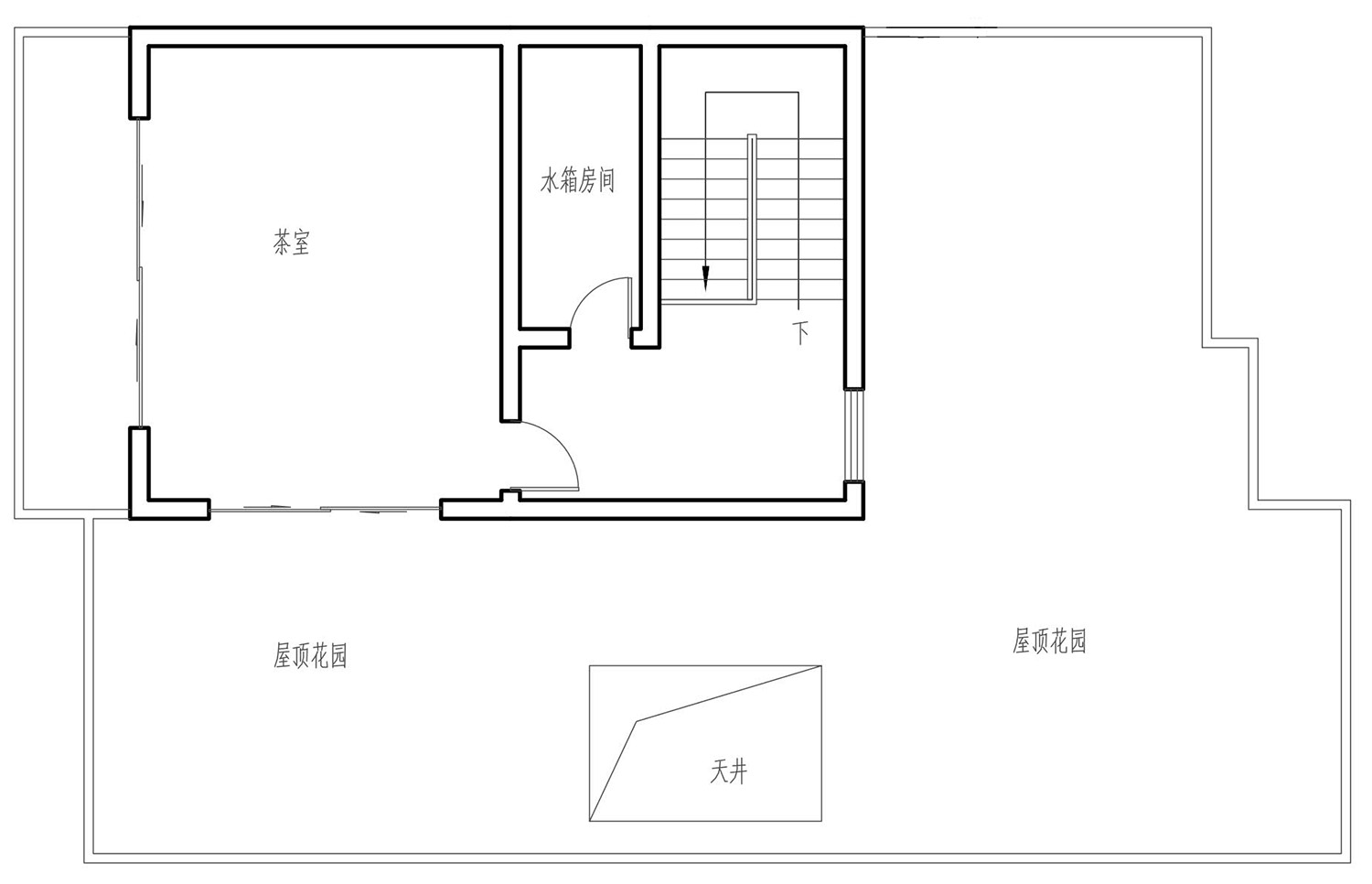
主体设计:

客厅、餐厅、厨房、卧室、公卫、阳台、露台。


。
转载请注明出自轩鼎自建房:://www.lemeizhai.com/