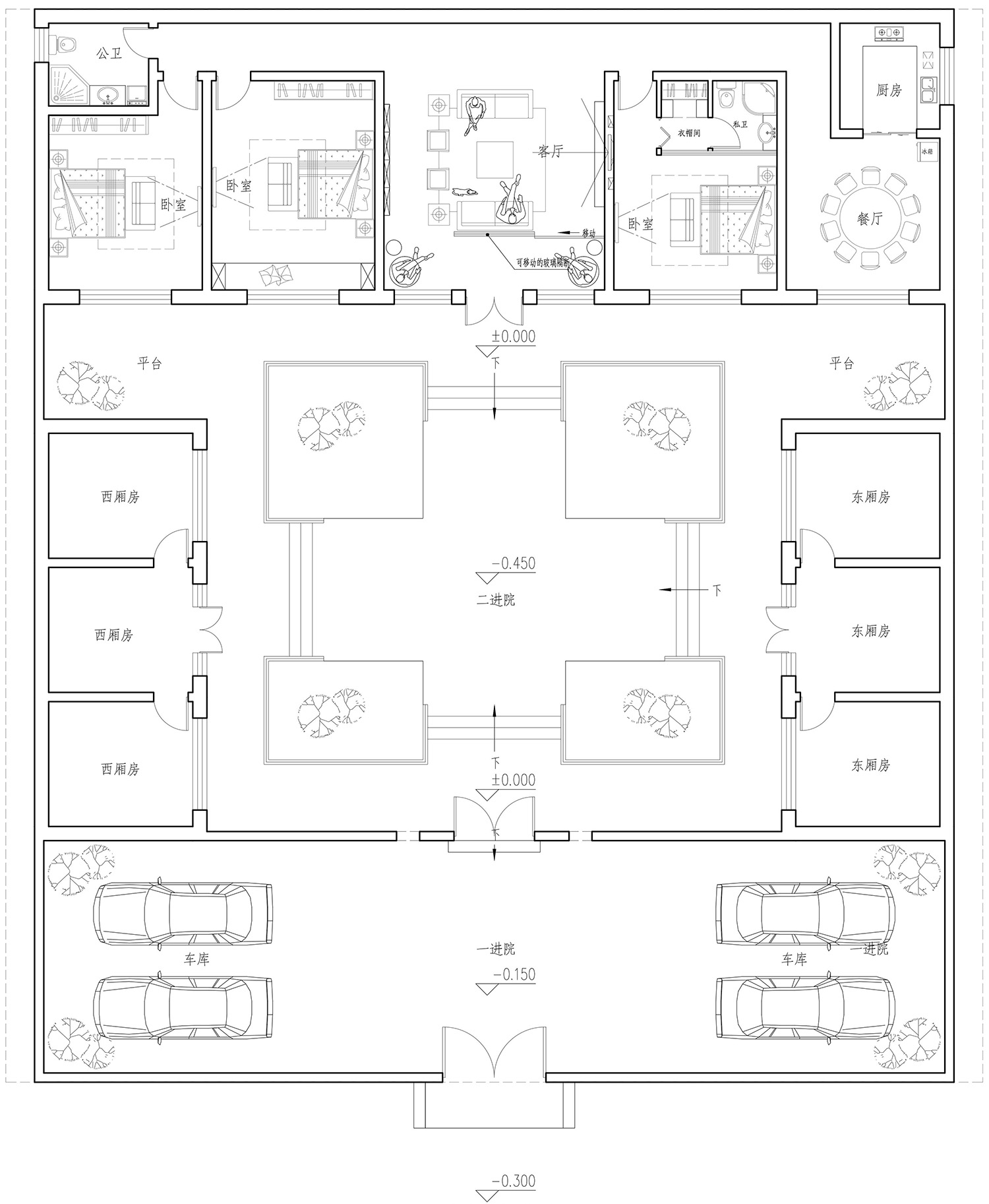
院子大的用户可以建造一个二进院的农村自建房,就比如今天介绍的一款="://www.lemeizhai.com/search.asp?SearchType=Software&imageField.x=26&imageField.y=32&SearchKey=%D0%C2%D6%D0%CA%BD" target="_self">新中式自建房设计,双开门双庭院的自建房,外面的庭院可以停车增加车辆安全性,内院隔断增加私密性正中间是影壁墙,再说说房屋有北屋和东西厢房,厢房可以做杂物间和客房,又能存杂物又能保障宾客隐私,北屋整体贯通特别适合安装供暖设备,总之这房子特别适合农村建造。
效果图:


建筑面积:283.8㎡(不包含保温)
占地面积:283.8㎡
建筑尺寸:25.5m×21.7m
建筑结构:砖混结构
效果图:



主体设计:
客厅、餐厅、厨房、卧室、公卫、阳台、露台。

。
转载请注明出自轩鼎自建房:://www.lemeizhai.com/