自建房越来越多,内卷是不可避免的,某些土豪建的别墅不亚于美国白宫,那些房子的一堵墙可能都能买一栋楼了,今天给大家推荐浙江刘总私人订制的="://www.lemeizhai.com/Picture.asp?PicClassID=91" target="_self">三层现代别墅设计,住这套房子非常享受,采用三位一体的采光模式住这样的房子屋子不发黑,白天不用增加照明,好了具体怎么样看看图纸吧。
效果图:


别墅层数: 三层
别墅风格: 现代
占地面积:407㎡
开 间:21.7m
进 深:18.8m
建筑占地:21.7m×18.8m
建筑面积:1200㎡
主体造价:155.0~160.0万
建筑结构:砖混结构
效果图:


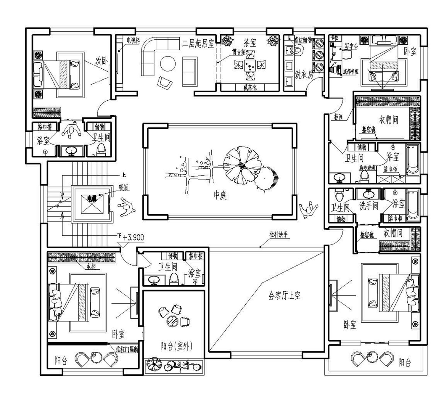
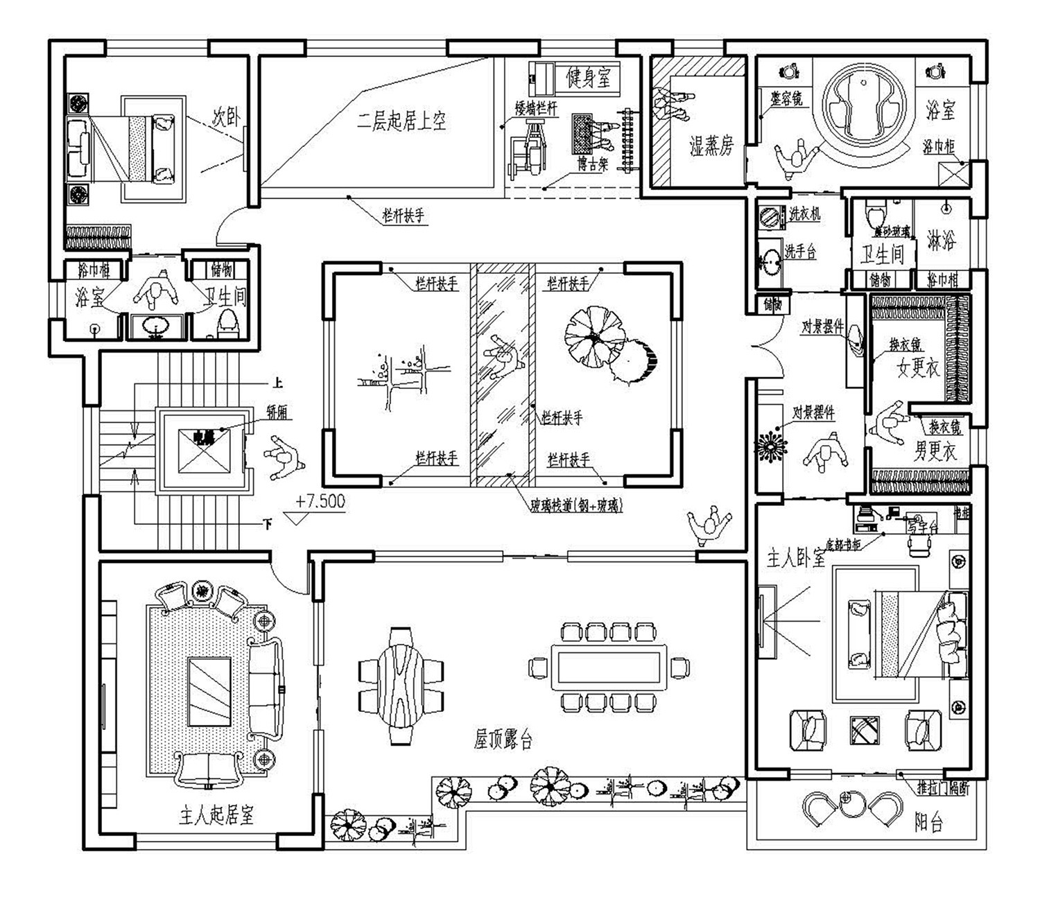
主体设计:。

客厅、餐厅、厨房、卧室、公卫、阳台、露台。


。
转载请注明出自轩鼎自建房:://www.lemeizhai.com/