看看别国的别墅很少有多层的,就拿美国来说一般的家庭住的都是二层的,美国家庭养孩子多但二层的就足够,可以说二层的自建房就能满足需求,农村的朋友二层的非常适合我们。今天给大家推荐的是一款有前后院的="://www.lemeizhai.com/Picture.asp?PicClassID=88" target="_self">二层别墅设计,这套别墅和美国的二层别墅一样,前后院车库都不少,相信大部分地区的朋友都能建造这样的二层农村自建房。
效果图:


建筑面积:286.31㎡
基地面积:294㎡
建筑尺寸:14m×11.94m
占地面积:158.57㎡
效果图:



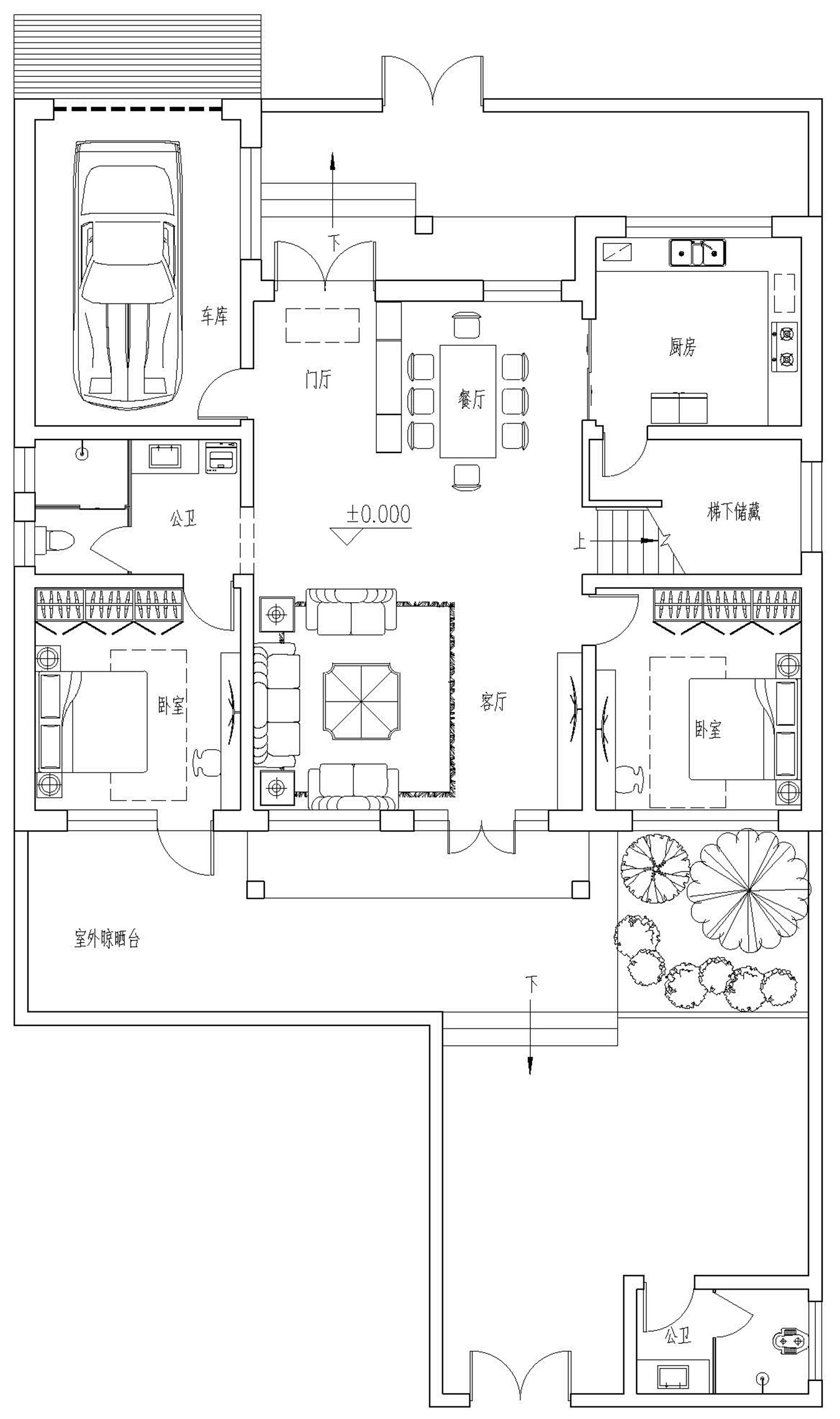
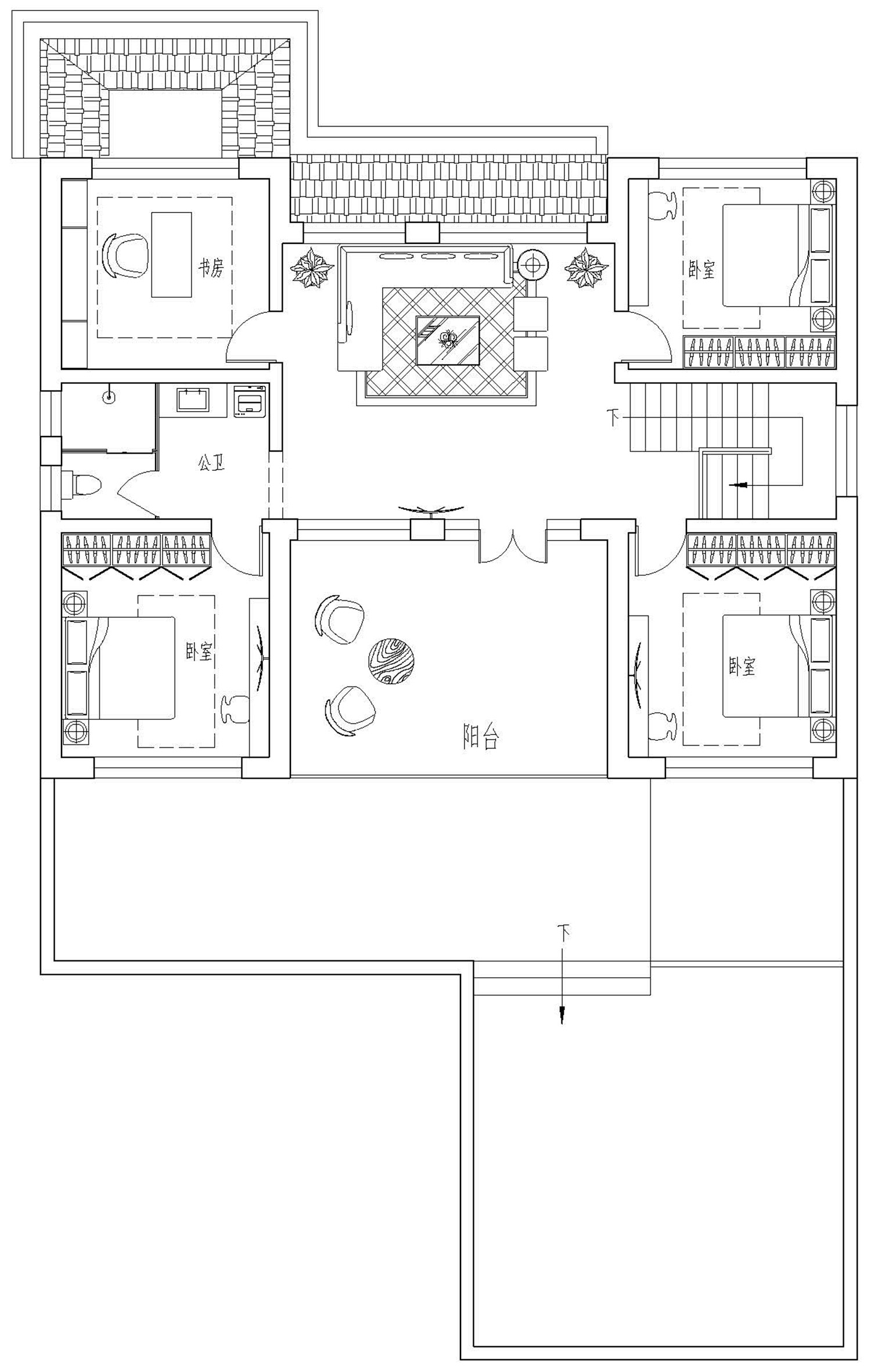
主体设计:

客厅、餐厅、厨房、卧室、公卫、阳台、露台。

。
转载请注明出自轩鼎自建房:://www.lemeizhai.com/