一年四季就期盼一个家庭和睦儿孙满堂,不求儿女有多大的成就,只求他们平平安安的,一家人团团圆圆的比啥都好,有钱了就回乡建一栋别墅平平安安的安度余生吧。今天给大家介绍的是湖北吴总私人订制的="://www.lemeizhai.com/Picture.asp?PicClassID=91" target="_self">三层别墅设计,这套别墅有点现代古典有种不一样的气质,共三层房间多但空间大住着特舒服。
效果图:

别墅层数: 三层
别墅风格: 现代
占地面积:132㎡
开 间:13.2m
进 深:10m
建筑占地:13.2m×10m
建筑面积:363㎡
主体造价:53.0~58.0万
建筑结构:框架结构
效果图:


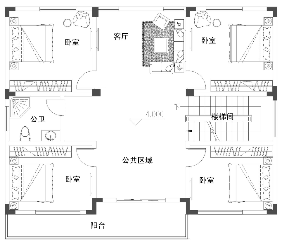
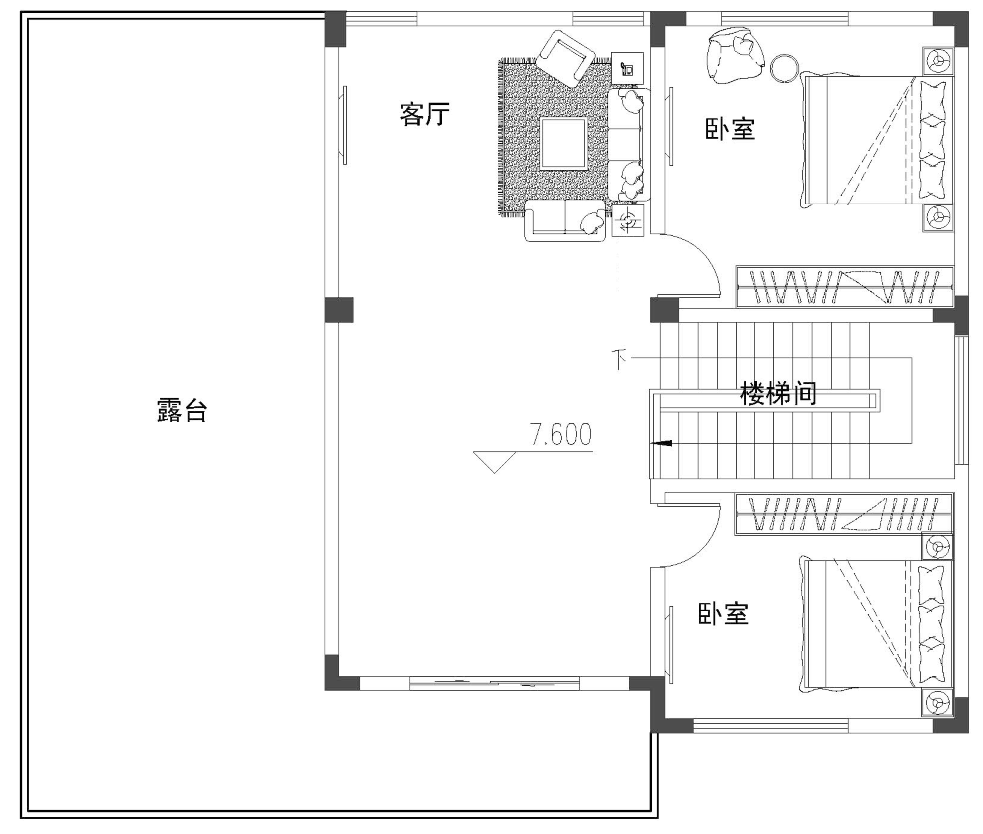
主体设计:。

客厅、餐厅、厨房、卧室、公卫、阳台、露台。

。

转载请注明出自轩鼎自建房:://www.lemeizhai.com/