农村人生活不易在城里买房可太难了,不如在农村花二三十万建一套二层小洋楼把剩下的钱给花在刀刃上,花钱买房不如把钱花在孩子身上让他有个好前程,。今天给大家推荐的是一款="://www.lemeizhai.com/Picture.asp?PicClassID=88" target="_self">二层欧式别墅设计图,这套别墅价格实惠二十到30万左右非常亲民,非常适合农村朋友建造。
效果图:

别墅层数: 二层
别墅风格: 欧式
占地面积:185㎡
开 间:12.8m
进 深:14.5m
建筑占地:12.8m×14.5m
建筑面积:338㎡
主体造价:23.0~34.0万
建筑结构:砖混结构
效果图:


主体设计:

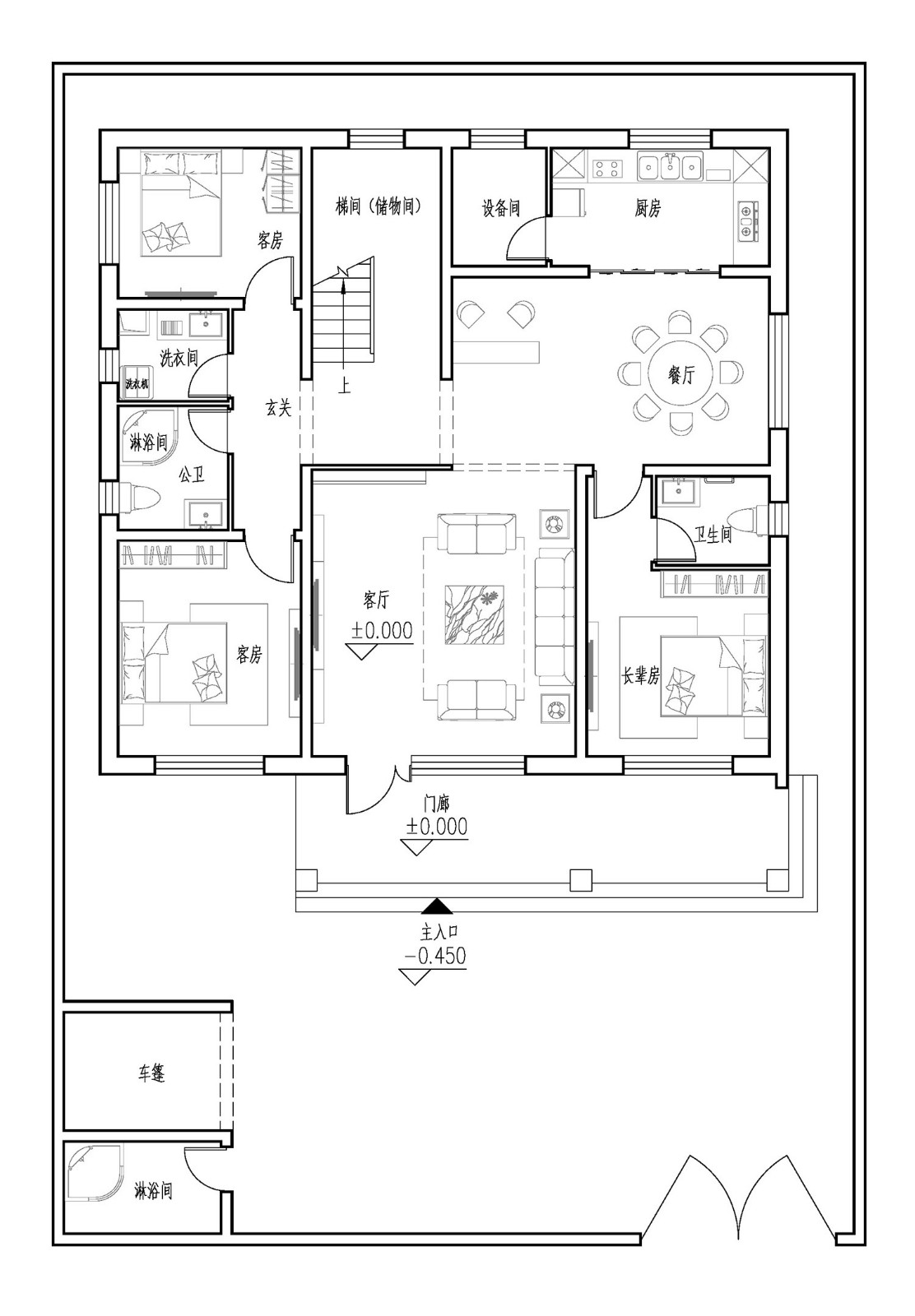
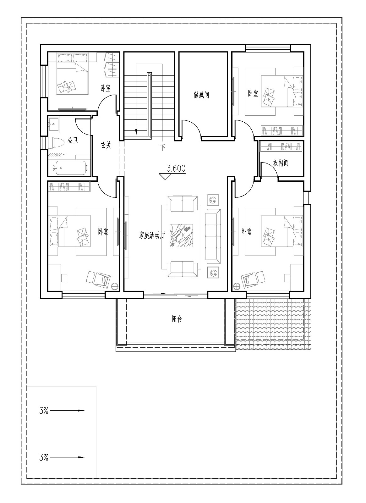
客厅、餐厅、厨房、卧室、公卫、阳台、露台。

。
转载请注明出自轩鼎自建房:://www.lemeizhai.com/