不要小看农村人农村可是卧虎藏龙,别提起农村就是贫穷老土的刻板印象,没有农民您吃什么呢?农村人住的可能都比城里人住得舒服,有些地方家家户户都住小洋楼,更别说有钱的富豪住的大豪宅了。今天给大家推荐的是浙江蔺总私人订制的农村="://www.lemeizhai.com/search.asp?SearchType=Software&imageField.x=39&imageField.y=21&SearchKey=%D0%C2%D6%D0%CA%BD" target="_self">新中式四层别墅设计图,这套别墅漂亮好看浓浓的徽派风格,非常适合南方农村。
效果图:


别墅层数: 四层
别墅风格: 中式
占地面积:193㎡
开 间:14.3m
进 深:13.5m
建筑占地:14.3m×13.5m
建筑面积:624㎡
主体造价:89.0~94.0万
建筑结构:框架结构
效果图:


主体设计:

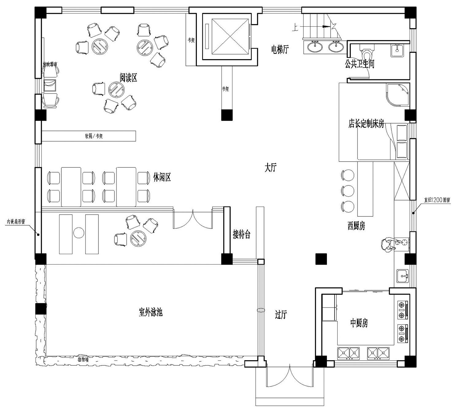
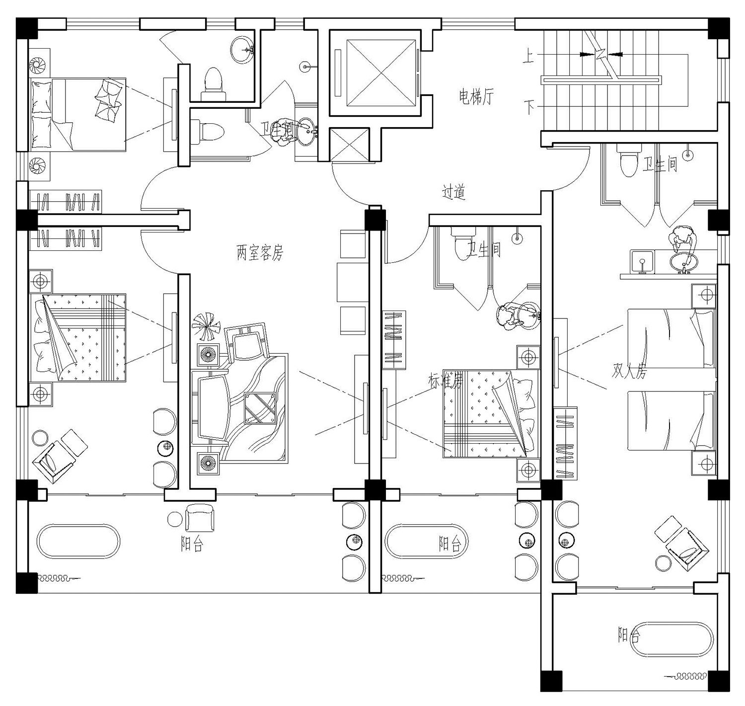
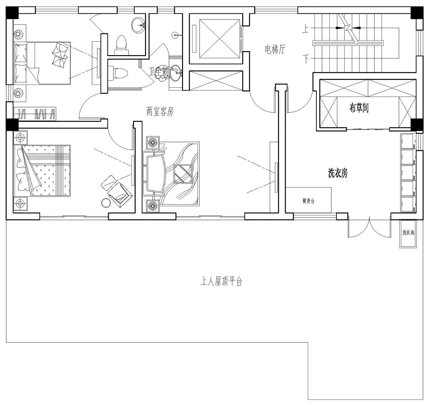
客厅、餐厅、厨房、卧室、公卫、阳台、露台。

。


转载请注明出自轩鼎自建房:://www.lemeizhai.com/