房子的寿命很短你不修缮绝对住不了,而且房子变成危房了必须建新的,农村现在很多都在旧房建新,大多都会选择建小别墅,农村小别墅将会越来越多。今天给大家推荐的是孙总私人订制的="://www.lemeizhai.com/Picture.asp?PicClassID=88" target="_self">二层别墅设计,是一个经典的欧式风格的农村自建房,这房子很便宜主体造价不超过50万,很是惠民。
效果图:


别墅层数: 二层
别墅风格: 欧式
占地面积:113㎡
开 间:13m
进 深:8.7m
建筑占地:13m×8.7m
建筑面积:236㎡
主体造价:30.0~35.0万
建筑结构:砖混结构
效果图:


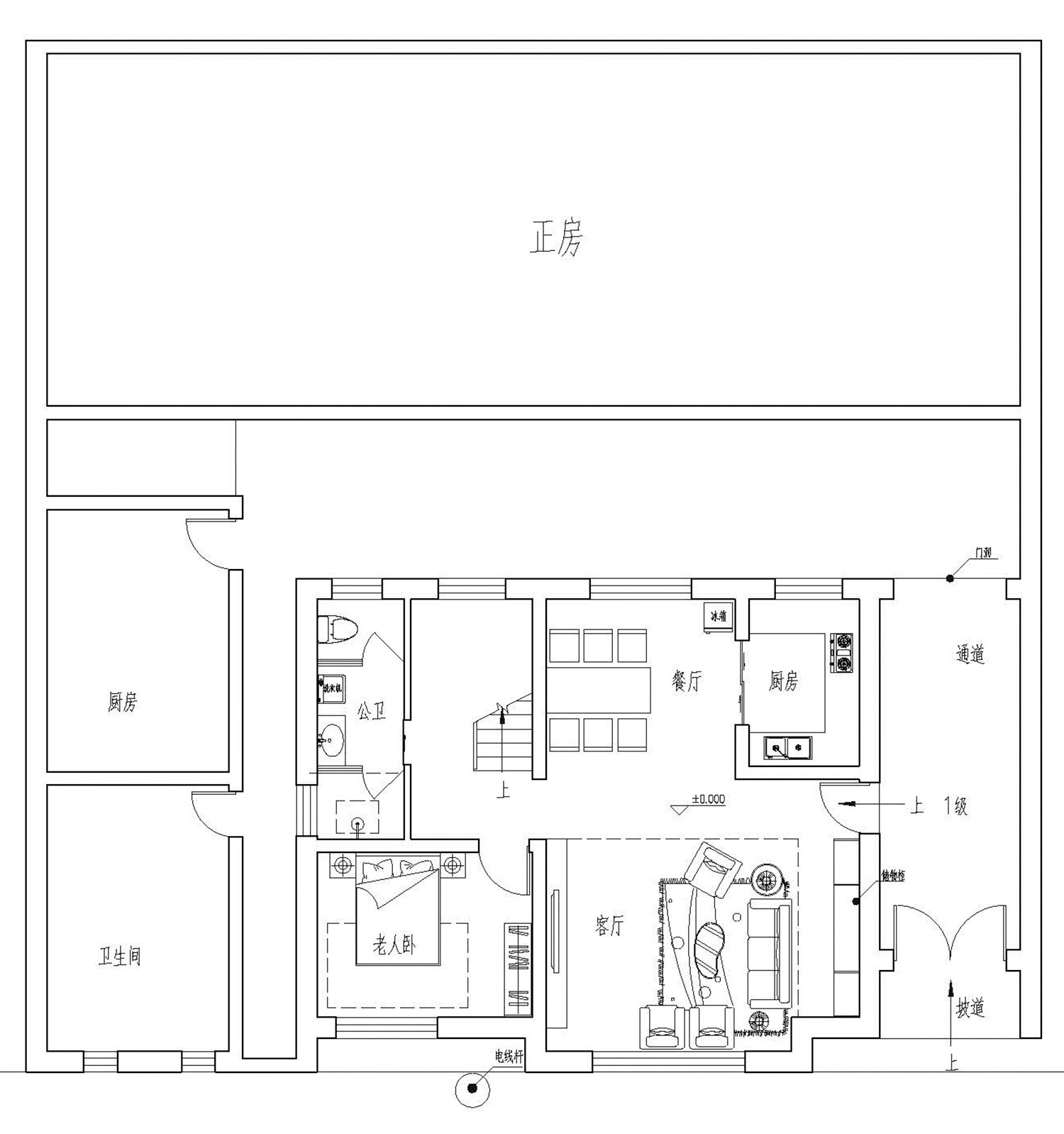
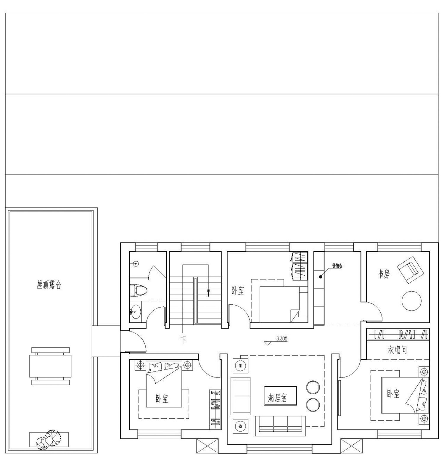
主体设计:

客厅、餐厅、厨房、卧室、公卫、阳台、露台。

。
转载请注明出自轩鼎自建房:://www.lemeizhai.com/