欧美和日本建小别墅的历史很长了,而我们中国也是在近几年才开始的,自建别墅中国刚刚起步但气势比欧美国家的强,有的跟美国白宫似的很是霸气,当然在农村地区小别墅还是比较低调的。今天给大家推荐的是一款欧式风格的="://www.lemeizhai.com/Picture.asp?PicClassID=88" target="_self">二层别墅设计,这样的自建房绝对是农村自建房的精品
效果图:


别墅层数: 二层
别墅风格: 欧式
占地面积:275㎡
开 间:25m
进 深:11m
建筑占地:25m×11m
建筑面积:511㎡
主体造价:75.0~80.0万
建筑结构:砖混结构
效果图:



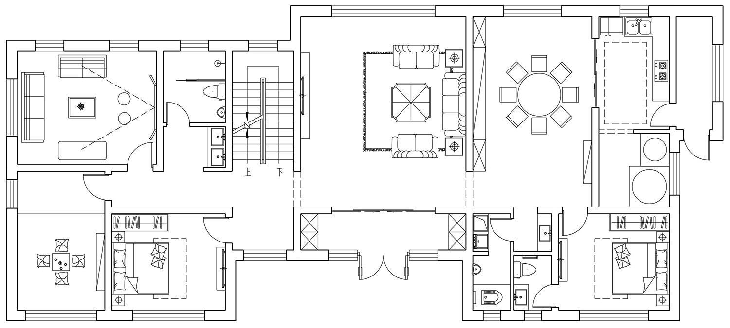
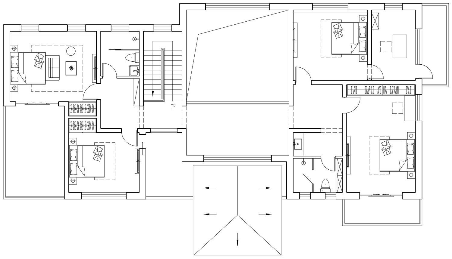
主体设计:

客厅、餐厅、厨房、卧室、公卫、阳台、露台。

。
转载请注明出自轩鼎自建房:://www.lemeizhai.com/