在农村建一套别墅是不容易的,要建别墅就建最好的,人生在世不过好一点不就白来这世上了吗?所以建一栋别墅不要后悔,说干就干!今天给大家推荐的是安徽芜湖孙总私人订制的欧式="://www.lemeizhai.com/Picture.asp?PicClassID=91" target="_self">三层别墅设计,这套别墅非常好看喜庆,有着不输豪宅的气势,价格在80多万左右。
效果图:

别墅层数: 三层
别墅风格: 欧式
占地面积:338㎡
开 间:19m
进 深:17.8m
建筑占地:19m×17.8m
建筑面积:676㎡
主体造价:76.2~81.2万
建筑结构:框架结构
效果图:


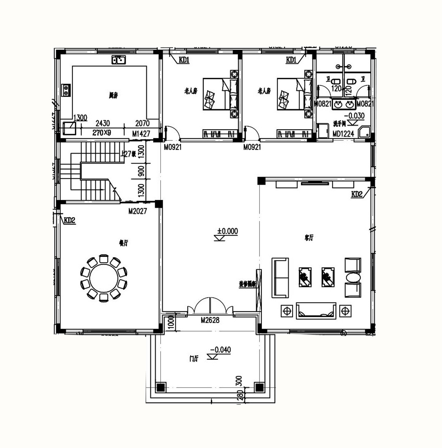
主体设计:。

客厅、餐厅、厨房、卧室、公卫、阳台、露台。


。
转载请注明出自轩鼎自建房:://www.lemeizhai.com/