在农村自建别墅的人越来越多,就有人说农村人越来越会享受了,其实就只是住的房子看起来比城里好一点住的舒服一点而已,农村建别墅的火热原因是因为现在农村人想开了,与其累死累活不如早点享受享受!今天给大家推荐的是山东郓城郭先生私人订制的="://www.lemeizhai.com/Picture.asp?PicClassID=88" target="_self">二层别墅设计,这是一套紧凑的农村自建别墅希望你们喜欢。
效果图:

别墅层数: 二层
别墅风格: 欧式
占地面积:132㎡
开 间:12m
进 深:11m
建筑占地:12m×11m
建筑面积:240㎡
主体造价:30.4~35.4万
建筑结构:砖混结构
效果图:

主体设计:

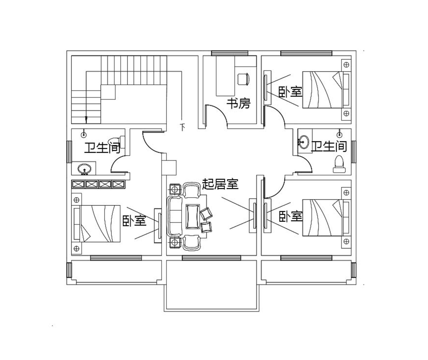
客厅、餐厅、厨房、卧室、公卫、阳台、露台。
。

转载请注明出自轩鼎自建房:://www.lemeizhai.com/