上面这栋别墅,还未彻底完工,就已初具规模。而如果最终建成下面效果图的样子,平整完场地,做过多绿化,院子里有辆车,养只狗。高品质的生活气息顿时凸显出来。在这样的房子里,呆两个月不出门也不会觉得心烦。

来看平面图吧,这样大的别墅,内里布局却很简单。因此每个房间都很宽敞。厨房旁边是杂物间,单独开门通往室外,其实也可以用来储藏粮食,挨着厨房,又通风,这个布局很不错。进出货物都可以由此处进行,而不影响室内其他房间。做饭的油烟也进不到其它房间,保持了室内的清洁。
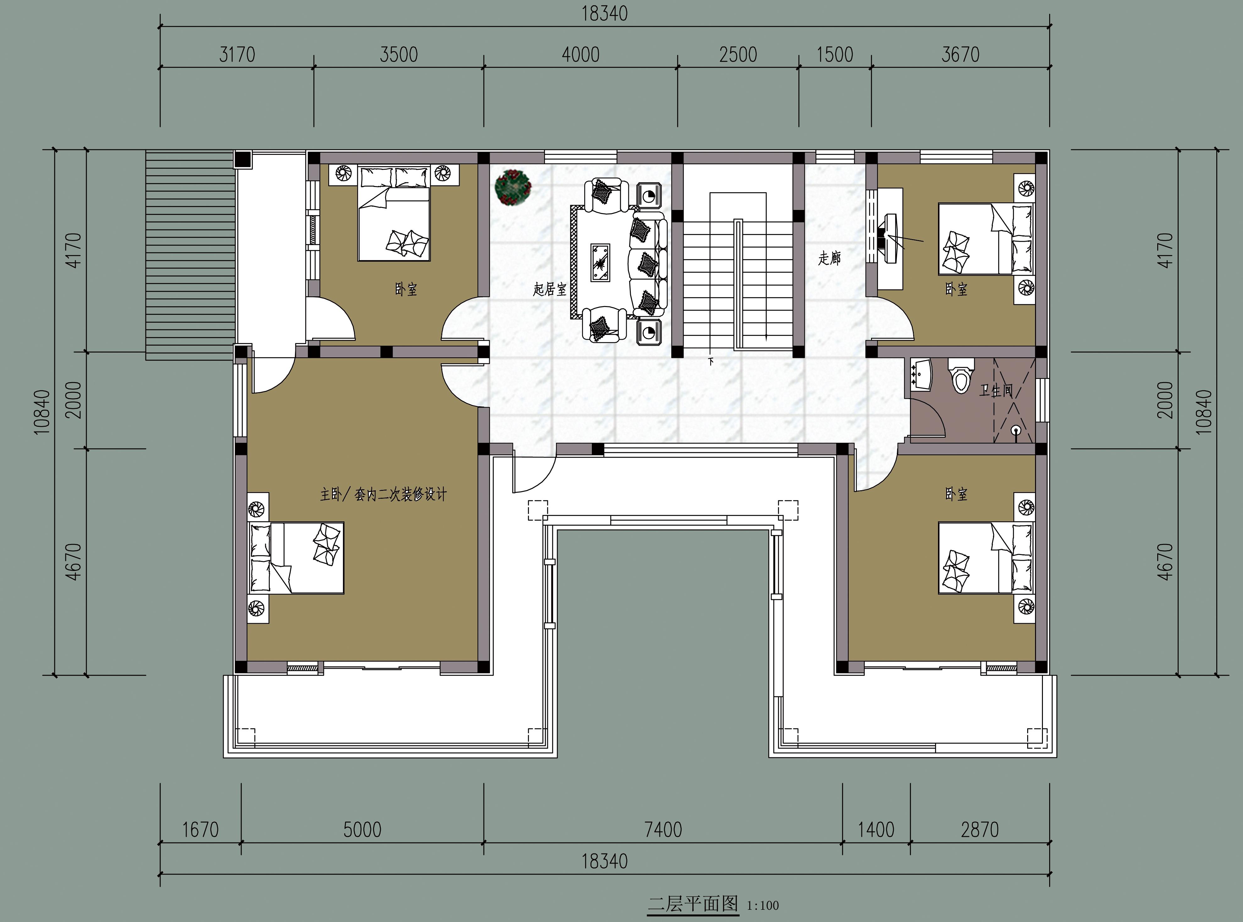
二层平面图上,主要是四个卧室,加上楼下的,一共有5个卧室。原则卧室的数量不用太多,够用就好。

这栋别墅宽敞大气,气质出众,您觉得怎么样?很多人心里都有一个梦想,趁年轻努力挣钱,到老了回老家建栋像样的别墅,安静生活。了解更多自建房设计图,关注轩鼎建筑网。








