轩鼎小编和大家一起来看一栋带院子的乡村二层别墅小楼。如下农村别墅效果图展示,这座白墙黑瓦的小院是不是让你最有家的感觉?外墙线条硬朗,院内干净整洁,门上还挂着过去的门环,让人一下子回到了过去。家里如果建这样一栋房子,真是会让人欣喜。

从一层平面图上来看,进门后穿过院子正对客厅,客厅里也有杂物间和公共卫生间。右手边首先是厨房和餐厅,沿用了我们过去的传统习惯,这样安置厨房的好处有两个,一是客厅和卧室绝对没有油烟,二是厨房里可以方便建柴火房,不像其它欧式别墅里厨房里建柴火房很不方便。 这种也可以挨着厨房建个锅炉房,给所有屋子供暖而不会把其它房屋弄脏。老人房里也有卫生间,出门就院子,生活很是方便 。

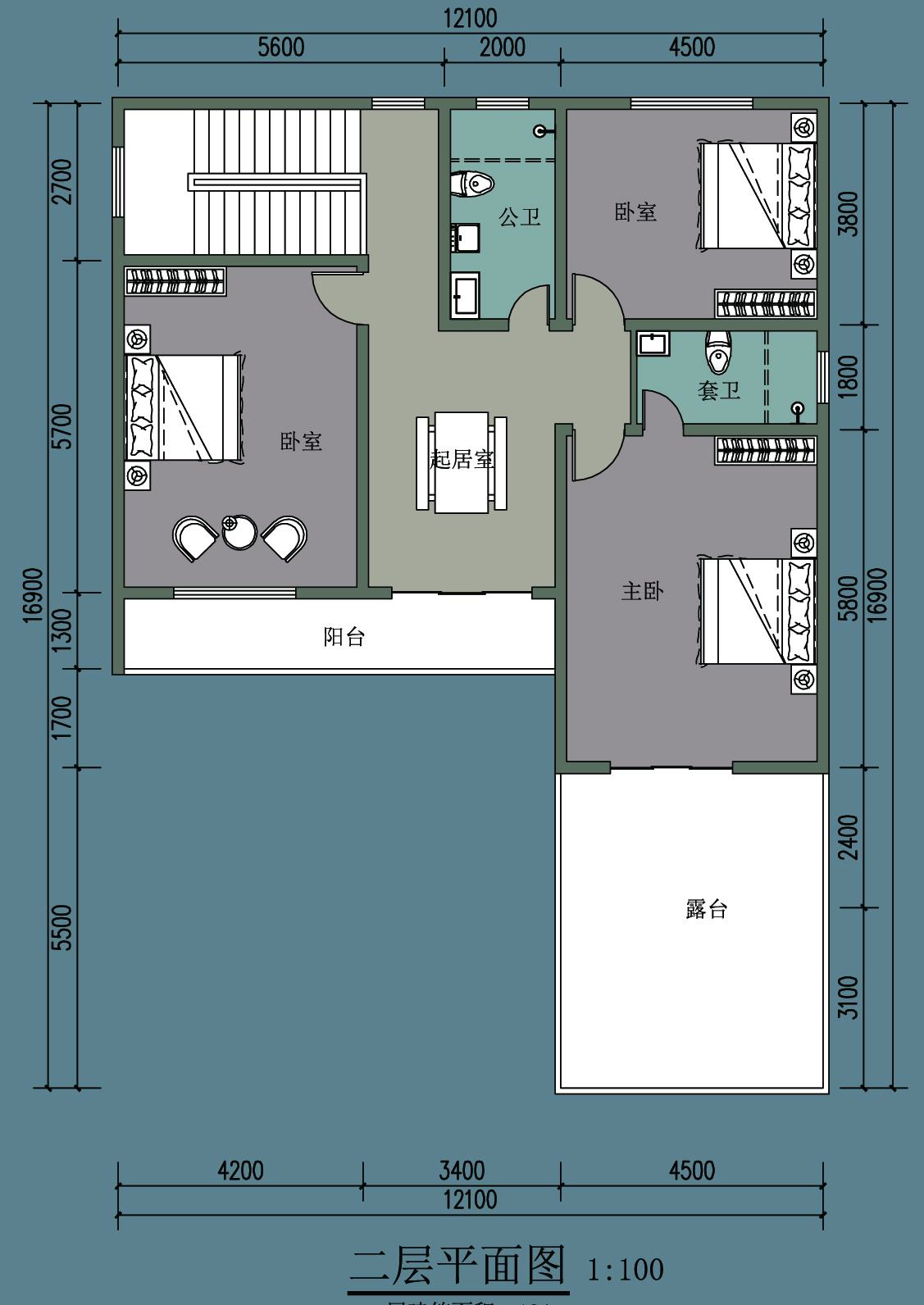
二层是三间卧室和露台,一带独立卫生间的主卧和二间有公共卫生间的次卧。露台上晾晒粮食,看书喝茶,下棋都没有问题。

如今,虽然说农村都盖起了各式各样的新房别墅,但是有小院的房屋生活还是最方便的之一,尤其是对于行动不便的老人来说。您看到这样的中式小院有什么感觉呢?