农村建别墅建一栋二层的就能满足大多数人的需求,大部分人拥有的宅基地都比较大,而且某些地区还不允许建超过三层自建房,二层的自建别墅就很符合部分地区政策。今天给大家推荐的是孙总私人订制的="://www.lemeizhai.com/Picture.asp?PicClassID=88" target="_self">二层农村自建房设计图,户型经典,内部布局实用可靠,人口多的家庭完全够住。
效果图:

别墅层数: 二层
别墅风格: 欧式
占地面积:233㎡
开 间:14.9m
进 深:15.9m
建筑占地:14.9m×15.9m
建筑面积:436.29㎡
主体造价:44.0~49.0万
建筑结构:砖混结构
效果图:


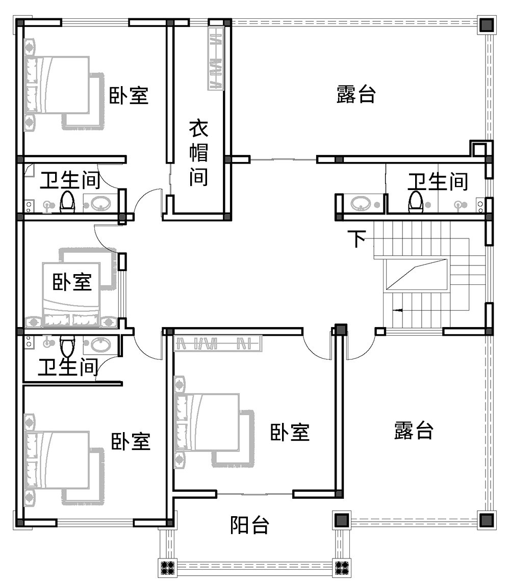
主体设计:。

客厅、餐厅、厨房、卧室、公卫、阳台、露台。

。
转载请注明出自轩鼎自建房:://www.lemeizhai.com/