中式自建房非常符合中国人的气质,家住河北的吴老板就很喜欢中式风格的自建房,找到了本公司,刘工给吴老板设计了一款="://www.lemeizhai.com/search.asp?SearchType=Software&imageField.x=35&imageField.y=42&SearchKey=%D0%C2%D6%D0%CA%BD" target="_self">中式自建农村房屋,这套房子青砖黑瓦浓重的中式古建风,木质的建筑配件非常有年代感和艺术感,这套自建房就像四合院一样,虽没有四合院价值高但住在里面绝对很值!
效果图:

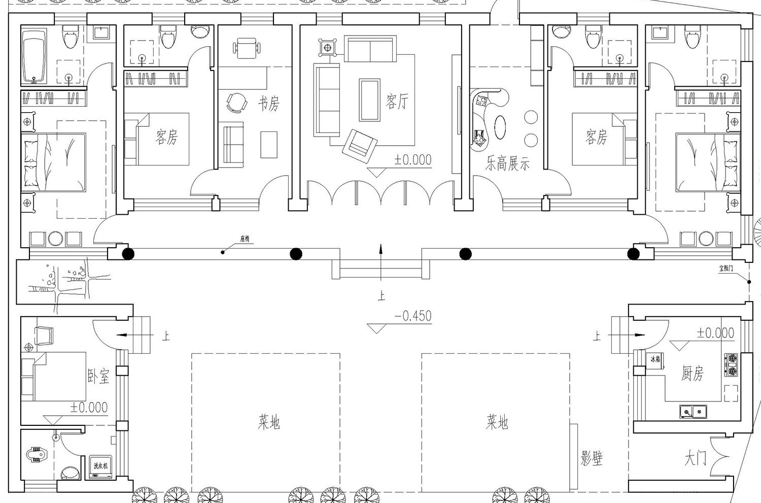
别墅层数: 一层
别墅风格: 中式
占地面积:328㎡
开 间:22.8m
进 深:14.4m
建筑占地:22.8m×14.4m
建筑面积:196㎡
主体造价:27.0~32.0万
建筑结构:砖混结构
效果图:



主体设计:

客厅、餐厅、厨房、卧室、公卫、阳台、露台。
。
转载请注明出自轩鼎自建房:://www.lemeizhai.com/