农村传统的自建房已经不符合现代人们的需求,随着农村自建别墅的兴起,自建别墅成了现在的主流,农村建别墅最适合二层的,有的村子重新规划后集体选择了二层自建房,农民家家户户住小别墅的日子不远了,拭目以待吧。今天给大家推荐的是刘总给父母私人订制的="://www.lemeizhai.com/Picture.asp?PicClassID=88" target="_self">欧式二层别墅图纸,造价实惠有不超过50万,虽然不是多么便宜。
效果图:

别墅层数: 二层
别墅风格: 欧式
占地面积:142㎡
开 间:13.6m
进 深:10.5m
建筑占地:13.6m×10.5m
建筑面积:281㎡
主体造价:41.0~46.0万
建筑结构:框架结构
效果图:



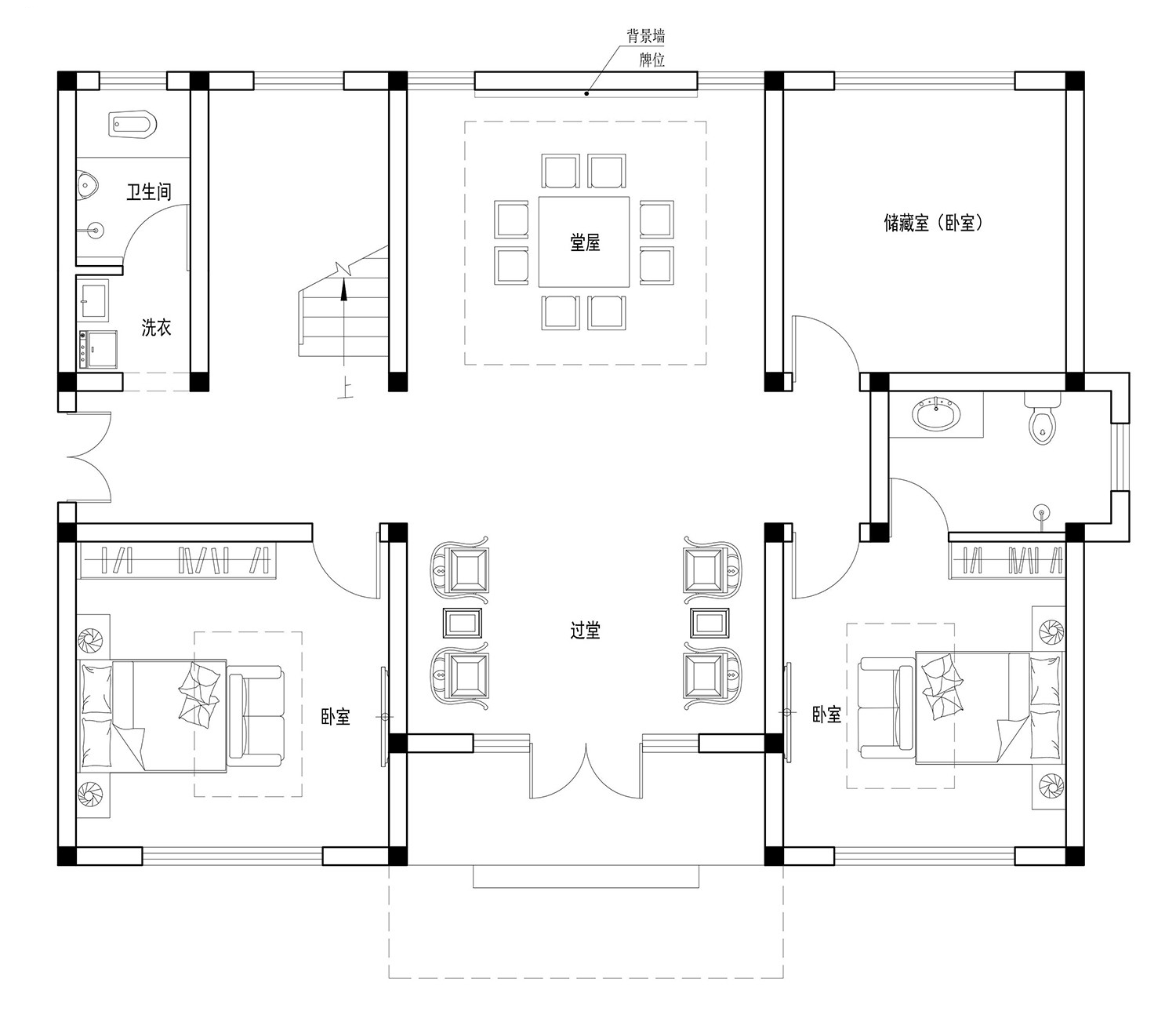
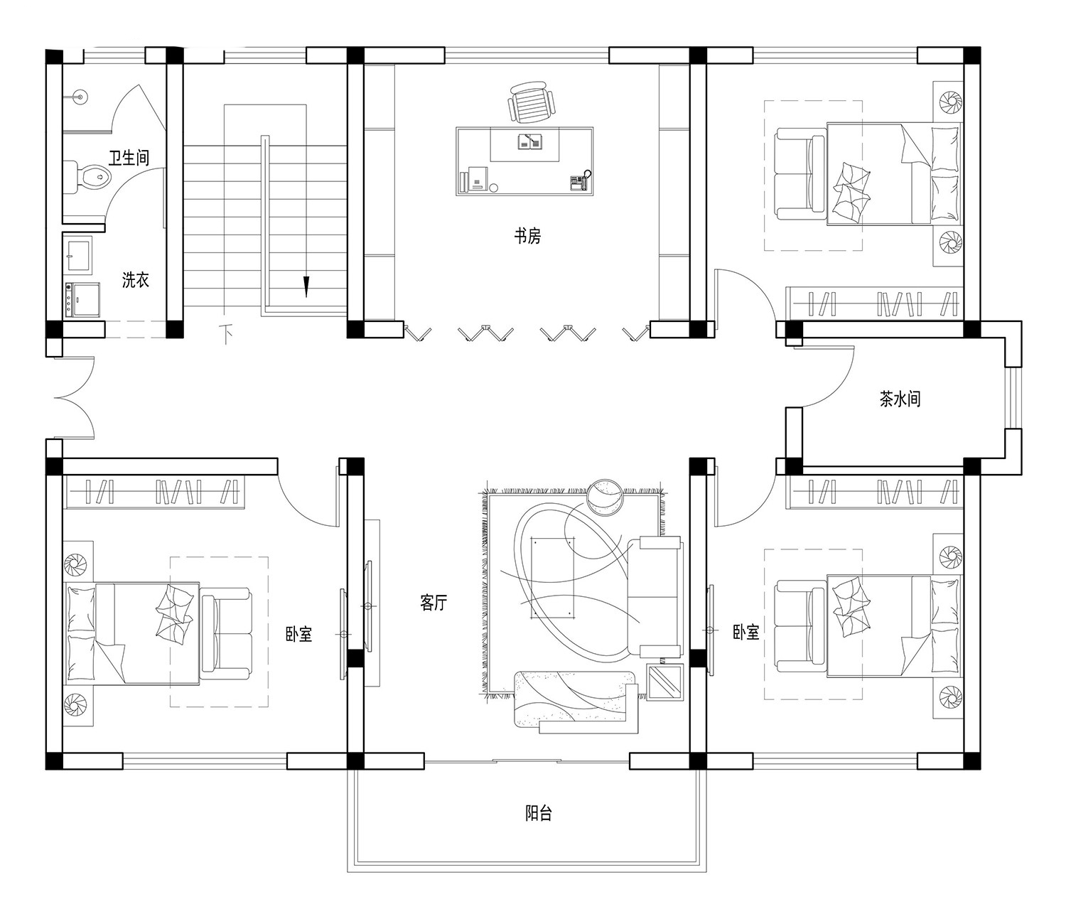
主体设计:

客厅、餐厅、厨房、卧室、公卫、阳台、露台。

。
转载请注明出自轩鼎自建房:://www.lemeizhai.com/