农村建别墅的越来越多,在农村有一套属于自己的房子就有了立足之地,过日子就要对家人和自己好一点,人生短暂要好好过好每一天。今天给大家推荐山东蔺总定制的="://www.lemeizhai.com/Picture.asp?type=4&par4=12.0-13.0m&flag=y&par2=&par3=&par5=&PicClassID=88&par7=&sort=" target="_self">12.6m×13.7m的二层农村别墅设计,别墅功能分明房间充足,室内不阴暗只要有一点阳光屋子就非常明亮,作为现代户型比较合格。
效果图:


别墅层数: 二层
别墅风格: 现代
占地面积:172㎡
开 间:12.6m
进 深:13.7m
建筑占地:12.6m×13.7m
建筑面积:305㎡
主体造价:45.0~50.0万
建筑结构:砖混结构
效果图:


主体设计:

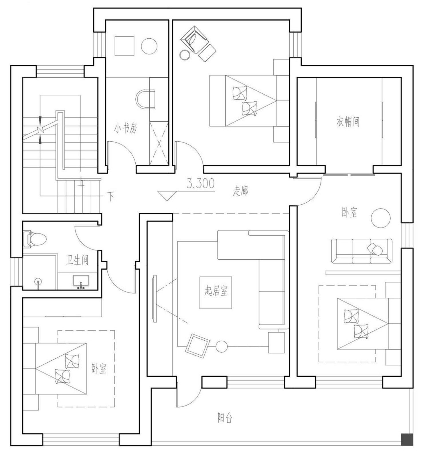
客厅、餐厅、厨房、卧室、公卫、阳台、露台。

。
转载请注明出自轩鼎自建房:://www.lemeizhai.com/