在农村建房子实用才重要,一般的房屋划分已经不符合现代人们的需求,尤其是农村房屋!新房子不仅仅要考虑住的问题,还要考虑杂物粮食和农机具的问题。今天给大家推荐一款="://www.lemeizhai.com/search.asp?SearchType=Software&imageField.x=45&imageField.y=32&SearchKey=%D0%C2%D6%D0%CA%BD" target="_self">新中式农村一层自建房,这套很适合农村用户有专门的存放粮食农机具的地方,有晾晒平台平时晾晒粮食也很方便,另外这种风格的也非常好看
效果图:


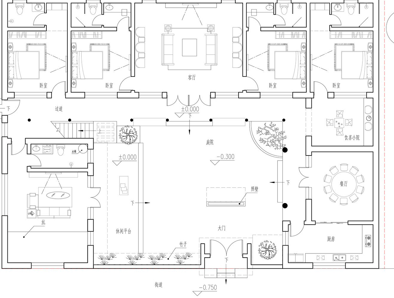
别墅层数: 一层
别墅风格: 中式
占地面积:437㎡
开 间:25m
进 深:17.5m
建筑占地:25m×17.5m
建筑面积:294㎡
主体造价:46.0~51.0万
建筑结构:砖混结构
效果图:




主体设计:

客厅、餐厅、厨房、卧室、公卫、阳台、露台。
。
转载请注明出自轩鼎自建房:://www.lemeizhai.com/