农村自建房最火的地方是沿海地区,就拿福建来说,他们那儿的别墅一个比一个豪华,最高的也就6层。一个大门说不定都好几十万,有钱人的世界真牛啊!今天给大家推荐赵总私人订制的豪华="://www.lemeizhai.com/Picture.asp?PicClassID=94" target="_self">四层农村自建别墅设计,这套别墅把豪放在了脸上看起来金碧辉煌的,主体造价不超过90万,内部布局舒适房间充裕。
效果图:

别墅层数: 四层
别墅风格: 欧式
占地面积:162㎡
开 间:13.3m
进 深:11.8m
建筑占地:13.3m×11.8m
建筑面积:590.9㎡
主体造价:84.0~89.0万
建筑结构:砖混结构
效果图:


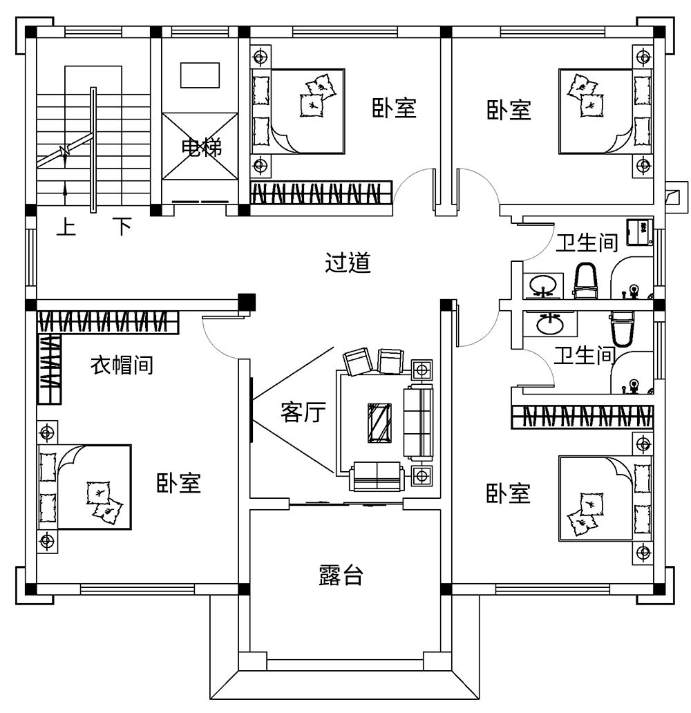
主体设计:。

客厅、餐厅、厨房、卧室、公卫、阳台、露台。



。
转载请注明出自轩鼎自建房:://www.lemeizhai.com/