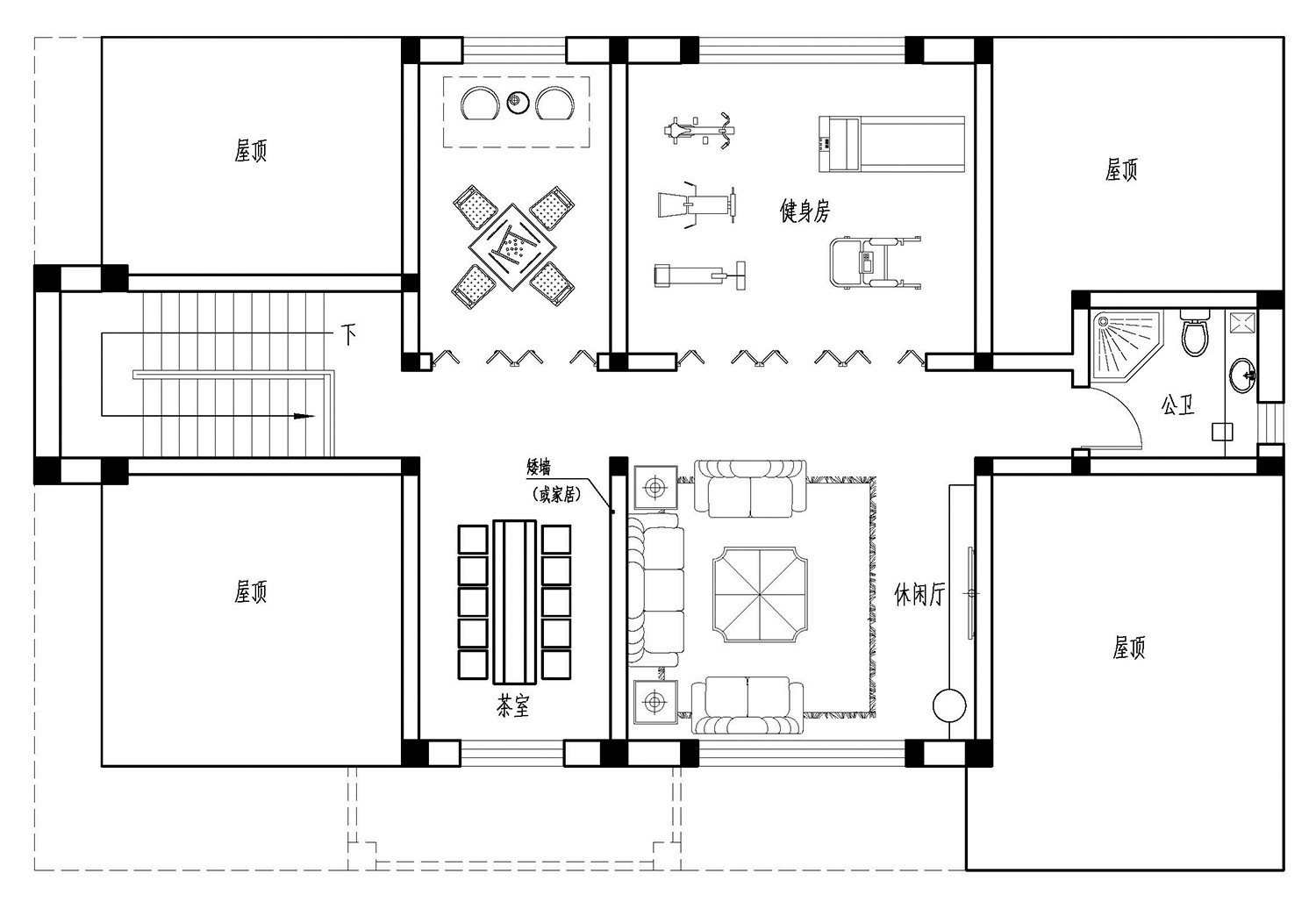
寒冬快要来了,今年的冬天可能比以往更寒冷,小编将继续给大家推荐优质农村自建房希望大家满意。今天给大家推荐的是一款欧式="://www.lemeizhai.com/Picture.asp?PicClassID=91" target="_self">三层别墅设计,这是轩鼎的经典设计,三层居住舒适建在农村也很贴切,外观也很美。再说说内部布局区域分明隐私安全,公卫的设计远离卧室充分的保护了户主的隐私,三层是娱乐区农村健身区。造价不超过80万。
效果图:



别墅层数: 三层
别墅风格: 欧式
占地面积:216㎡
开 间:18m
进 深:12m
建筑占地:18m×12m
建筑面积:490㎡
主体造价:69.0~74.0万
建筑结构:砖混结构
效果图:


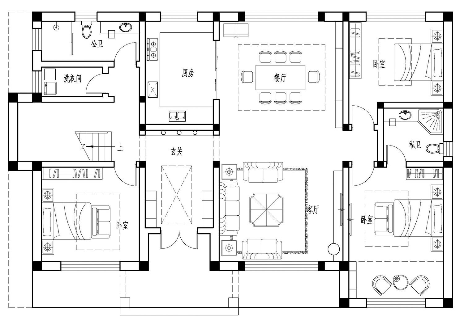
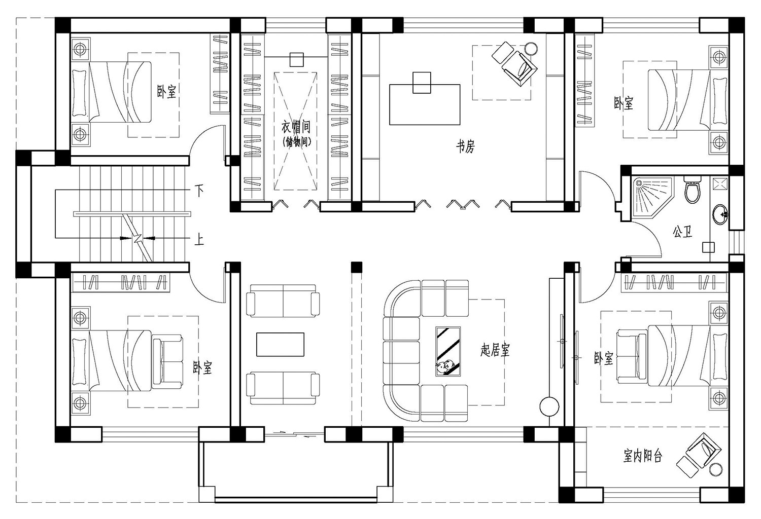
主体设计:

客厅、餐厅、厨房、卧室、公卫、阳台、露台。

。

转载请注明出自轩鼎自建房:://www.lemeizhai.com/